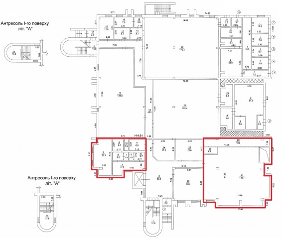
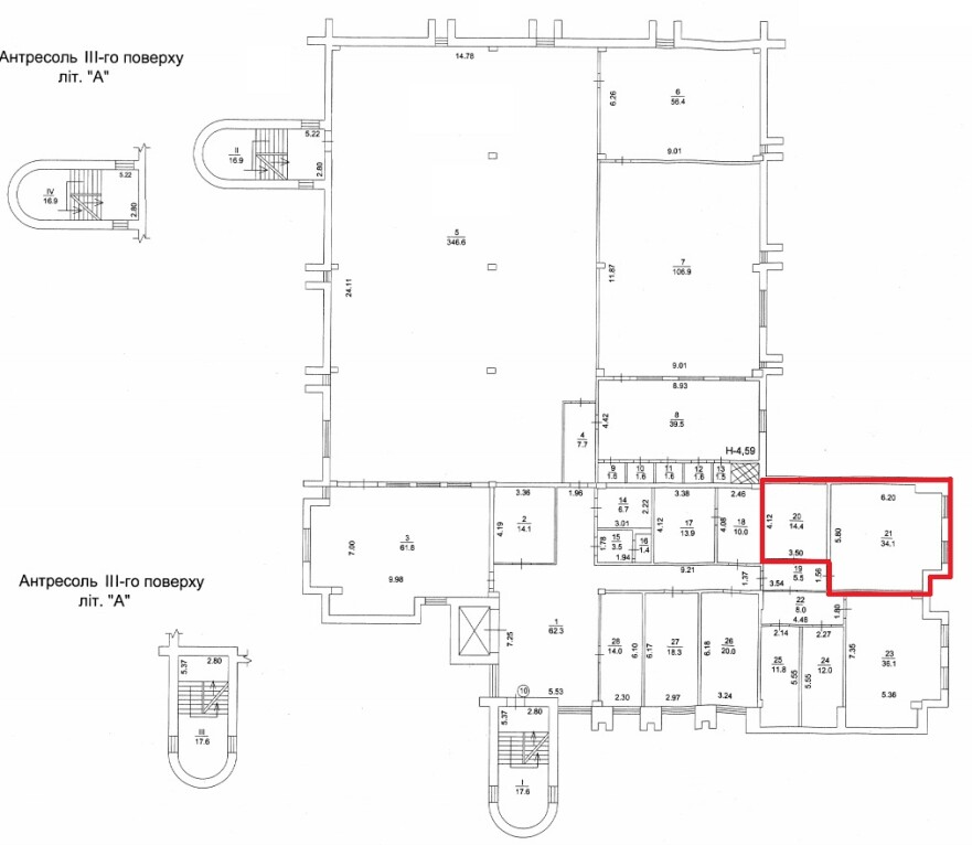
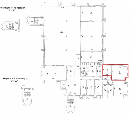
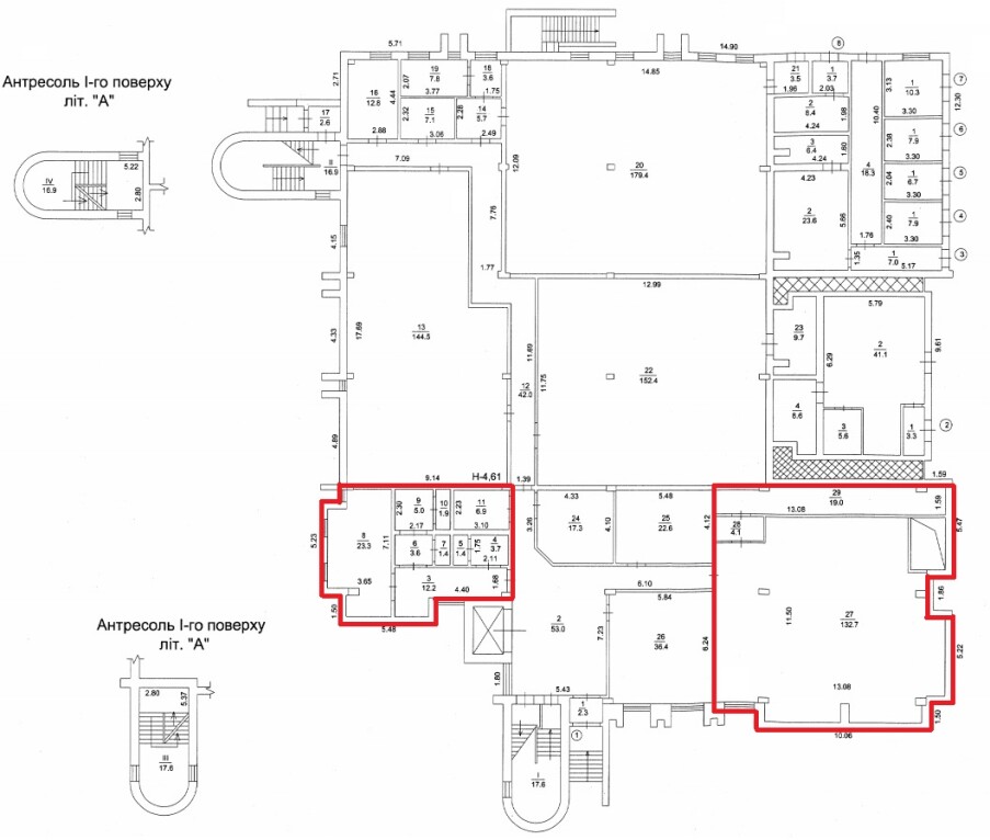
м. Київ, вул. Архітектора Вербицького, 3. Оренда – приміщення 1-го та 3-го поверху площею 263,70 м2 (В)

36 074.16 грн
136.80 грн / м2
Україна, м.Київ, Київ, вулиця Архітектора Вербицького, 3
Перейти до аукціону на сайті
  • Інформація
  • Опис
  • Документи
Дата оголошення пропозиції:
18 листопада 2022
Площа:
263.70 м2
Тип об’єкта:
Приміщення
Тип аукціону:
Англійський аукціон
Статус аукціону:
Аукціон не відбувся
Тип угоди:
Оренда
Розмір мінімального кроку:
400.00 ₴
Розмір гарантійного внеску:
21 644.50 ₴
Початок прийому пропозицій:
18.11.2022 15:36:45
Завершення прийому пропозицій:
19.12.2022 20:00:00
Проведення аукціону:
20.12.2022 11:45:00
Лот:
CLE001-UA-20221118-05649
№ лоту (УТК):
UTK181122_01T
Лот виставляється на торги (раз):
1
Стислий опис майна:
Пропонується до оренди приміщення 1-го та 3-го поверху площею 263,70 м2 . Будівля знаходиться в Дарницькому районі міста Києва, житловий масив Харківський. Зупинки маршрутного транспорту, супермаркети, торгово-розважальні центри. Найближчі станції метро «Харківська», «Вирлиця». Вхід з двору. Характеристики: • загальна площа будівлі – 4804,70 м2 ; • кількість поверхів – 5; • опалення централізоване (міське); • земельна ділянка – 0,5530 га; • каналізація, водозабезпечення, сан. вузол – присутні
Адреса місцезнаходження майна:
Україна, м.Київ, Київ, вулиця Архітектора Вербицького, 3
Схожі пропозиції
21.12.2022
м. Київ, вул. Дегтярівська, 28-А. Оренда – приміщення 3-го поверху площею 853,34 кв.м. (В)
39 424.31 грн
46.20 грн / м2
Приміщення
м. Київ, вул. Дегтярівська, 28-А. Оренда – приміщення 3-го поверху площею 853,34 кв.м. (В)
Україна, м.Київ, Київ, вулиця Дегтярівська, 28А
09.06.2023
м. Київ, вул. Антоновича, 40. Оренда – приміщення підвалу площею 77,0 кв.м. (В)
13 630.54 грн
177.02 грн / м2
Приміщення
м. Київ, вул. Антоновича, 40. Оренда – приміщення підвалу площею 77,0 кв.м. (В)
Україна, м.Київ, Київ, вул. Антоновича, 40
м. Київ, вул. Феодори Пушиної, 27-А, оренда – приміщення 3-го поверху, площею 17,00 кв.м. (В)
4 065.72 грн
239.16 грн / м2
Приміщення
м. Київ, вул. Феодори Пушиної, 27-А, оренда – приміщення 3-го поверху, площею 17,00 кв.м. (В)
Україна, м.Київ, Київ, вул. Феодори Пушиної, 27
30.07.2025
м. Київ, вулиця Академіка Шалімова, 39/8, літ. «Е» (Солом’янський р-н). Оренда – приміщення 1-го поверху, площею 74,40 м. кв. (В)
9 601.32 грн
129.05 грн / м2
Приміщення
м. Київ, вулиця Академіка Шалімова, 39/8, літ. «Е» (Солом’янський р-н). Оренда – приміщення 1-го поверху, площею 74,40 м. кв. (В)
Україна, м.Київ, Київ, вулиця Академіка Шалімова, 39/8