Полтавська обл., Миргородський р-н., смт. Велика Багачка, вул. Чекалових, 17. Оренда – Приміщення 1-го поверху, загальною площею 113,90 кв.м. (В)

1 658.38 грн
14.56 грн / м2
Україна, Полтавська обл., Миргородський р-н., смт. Велика Багачка, вул. Чекалових, 17
Перейти до аукціону на сайті
  • Інформація
  • Опис
  • Документи
Дата оголошення пропозиції:
23 листопада 2022
Площа:
113.90 м2
Тип об’єкта:
Приміщення
Тип аукціону:
Англійський аукціон
Статус аукціону:
Аукціон не відбувся
Тип угоди:
Оренда
Розмір мінімального кроку:
50.00 ₴
Розмір гарантійного внеску:
995.03 ₴
Початок прийому пропозицій:
23.11.2022 11:34:56
Завершення прийому пропозицій:
21.12.2022 20:00:00
Проведення аукціону:
22.12.2022 12:30:00
Лот:
CLE001-UA-20221123-49979
№ лоту (УТК):
UTK080722_06P
Лот виставляється на торги (раз):
5
Стислий опис майна:
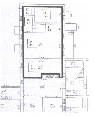
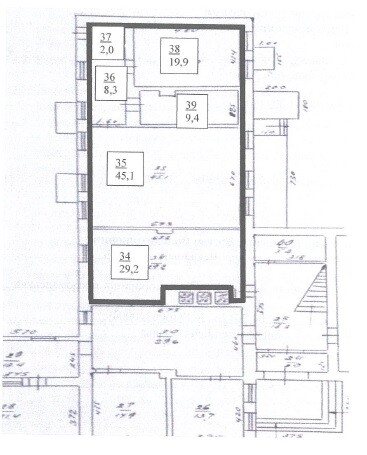
Пропонується до оренди приміщення 1-го поверху, загальною площею 113,90 кв.м., будівля знаходиться в центральній частині смт.Велика Багачка. Характеристики кількість поверхів – 2 загальна площа – 856,40 кв.м.; площа запропонована до оренди 113,90 кв.м.; опалення – наявне; електропостачання – дозволена потужність до 3 кВт; земельна ділянка – 0, 2926 га
Адреса місцезнаходження майна:
Україна, Полтавська обл., Миргородський р-н., смт. Велика Багачка, вул. Чекалових, 17
Схожі пропозиції
25.02.2025
Полтавська обл., Кременчуцький р-н, с. Великі Кринки, вулиця Полтавська, 29. Оренда – приміщення 2-го поверсі загальною площею 99,70 кв.м. (В)
1 830.49 грн
18.36 грн / м2
Приміщення
Полтавська обл., Кременчуцький р-н, с. Великі Кринки, вулиця Полтавська, 29. Оренда – приміщення 2-го поверсі загальною площею 99,70 кв.м. (В)
Україна, Полтавська обл., Кременчуцький р-н, с. Великі Кринки, вул. Полтавська, 29
31.07.2024
Полтавська обл., Кременчуцький район, м. Кременчук, вулиця Л. Дніпрова, 70;  Оренда – приміщення 1-го поверху загальною площею 233,20 кв.м. (В)
32 078.99 грн
137.56 грн / м2
Приміщення
Полтавська обл., Кременчуцький район, м. Кременчук, вулиця Л. Дніпрова, 70; Оренда – приміщення 1-го поверху загальною площею 233,20 кв.м. (В)
Україна, Полтавська обл., Кременчук, вул. Лейтенанта Дніпрова, 70
12.07.2024
Полтавська обл., Кременчуцький р-н, м. Кременчук, вулиця В. Пугачова, 12. Оренда – приміщення площею 666,40 кв.м. (В)
3 645.21 грн
5.47 грн / м2
Приміщення
Полтавська обл., Кременчуцький р-н, м. Кременчук, вулиця В. Пугачова, 12. Оренда – приміщення площею 666,40 кв.м. (В)
Україна, Полтавська обл., Кременчуцький р-н, м. Кременчук, вул. В. Пугачова, 12
16.06.2023
Полтавська обл., Кременчуцький р-н., м. Кременчук, вулиця Вадима Пугачова, буд. 12. Оренда – Приміщення 4-го поверху площею 688,20 кв.м.
3 578.64 грн
5.20 грн / м2
Приміщення
Полтавська обл., Кременчуцький р-н., м. Кременчук, вулиця Вадима Пугачова, буд. 12. Оренда – Приміщення 4-го поверху площею 688,20 кв.м.
Україна, Полтавська обл., Кременчуцький р-н., м. Кременчук, вулиця Вадима Пугачова, буд. 12
Переглянуті пропозиції
23.07.2025
Довгострокова м. Рівне, вул. Міцкевича,2 Оренда – приміщення 4-го поверху площею 865,60 кв.м   (В)
92 324.90 грн
106.66 грн / м2
Приміщення
Довгострокова м. Рівне, вул. Міцкевича,2 Оренда – приміщення 4-го поверху площею 865,60 кв.м (В)
Україна, Рівненська обл., Рівне, вулиця Міцкевича, 2
12.01.2023
Полтавська обл., Лубенський р-н, с. Козубівка, вул. Шевченка, буд. 25. Оренда – частина будівлі площею 42,4 кв.м. (В)
267.97 грн
6.32 грн / м2
Будівля
Полтавська обл., Лубенський р-н, с. Козубівка, вул. Шевченка, буд. 25. Оренда – частина будівлі площею 42,4 кв.м. (В)
Україна, Полтавська обл., с. Козубівка, вул. Шевченка, буд. 25
21.01.2025
Полтавська обл., Лубенський р-н, м. Хорол, вулиця Небесної Сотні, 17/2; Оренда – приміщення 2-х поверхової будівлі площею 355,20 кв.м. (В)
9 032.74 грн
25.43 грн / м2
Приміщення
Полтавська обл., Лубенський р-н, м. Хорол, вулиця Небесної Сотні, 17/2; Оренда – приміщення 2-х поверхової будівлі площею 355,20 кв.м. (В)
Україна, Полтавська обл., Хорол, вулиця Небесної Сотні, 17/2
24.03.2023
Чернігівська обл., м. Чернігів, проспект Миру, 35Б. Оренда – офісні приміщення 1 та 2 поверхів загальною площею 242,8 кв.м. (В)
26 950.80 грн
111.00 грн / м2
Офіс
Чернігівська обл., м. Чернігів, проспект Миру, 35Б. Оренда – офісні приміщення 1 та 2 поверхів загальною площею 242,8 кв.м. (В)
Україна, Чернігівська обл., м. Чернігів, проспект Миру, 35Б