Рівненська обл., м. Острог, пр-т. Незалежності, 7. Оренда – приміщення 1-го та 2-го поверху площею 21,6 кв.м. (В)

500.04 грн
23.15 грн / м2
Україна, Рівненська обл., Острог, Острог
Перейти до аукціону на сайті
  • Інформація
  • Опис
  • Документи
Дата оголошення пропозиції:
18 грудня 2022
Площа:
21.60 м2
Тип об’єкта:
Приміщення
Тип аукціону:
Англійський аукціон
Статус аукціону:
Аукціон не відбувся
Тип угоди:
Оренда
Розмір мінімального кроку:
50.00 ₴
Розмір гарантійного внеску:
300.02 ₴
Початок прийому пропозицій:
18.12.2022 19:12:16
Завершення прийому пропозицій:
23.01.2023 20:00:00
Проведення аукціону:
24.01.2023 11:25:00
Лот:
CLE001-UA-20221218-55608
№ лоту (УТК):
UTK050822_2T
Лот виставляється на торги (раз):
5
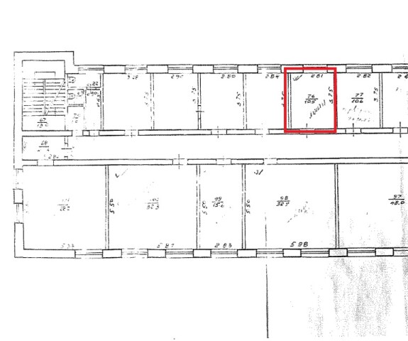
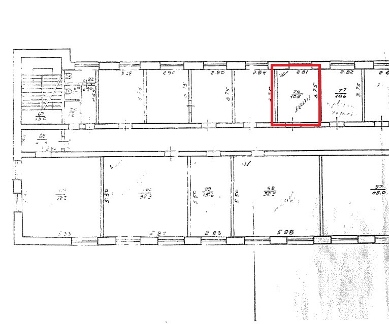
Стислий опис майна:
Пропонуються до оренди приміщення 1-го та 2-го поверху площею 21,6 кв.м. Будівля знаходиться в центральній частині міста. Розвинена інфраструктура, високі автомобільний та пішохідний потоки. Поряд стоянка для автомобілів, центральна площа. Приміщення потребують реконструкції електромережі. Характеристики: • Кількість поверхів – 4; • Загальна площа – 2549 кв.м; • Площа, запропонована до оренди – 21,6 кв.м; • Опалення – відсутнє; • Земельна ділянка - площа 0,291 га. (договір оренди)
Адреса місцезнаходження майна:
Україна, Рівненська обл., Острог, Острог
Схожі пропозиції
26.10.2022
Рівненська обл., м. Рівне, вул. В. Чорновола, 1. Оренда – приміщення 5-го поверху загальною площею 331,7 кв.м. (В)
23 069.74 грн
69.55 грн / м2
Приміщення
Рівненська обл., м. Рівне, вул. В. Чорновола, 1. Оренда – приміщення 5-го поверху загальною площею 331,7 кв.м. (В)
Україна, Рівненська обл., м. Рівне, вул. В. Чорновола, 1
15.04.2025
Рівненська обл., Рівненський р-н, с. Глажова,  вул. Шевченка, 35;   Оренда – нежитлові  приміщення  площею 36,9  кв.м. (В)
516.60 грн
14.00 грн / м2
Приміщення
Рівненська обл., Рівненський р-н, с. Глажова, вул. Шевченка, 35; Оренда – нежитлові приміщення площею 36,9 кв.м. (В)
Україна, Рівненська обл., Глажова, вул. Шевченка,35
14.05.2024
Рівненська обл., Дубенський р-н. с. Верба вул. Грушевського ,4 . Оренда – виробничі приміщення площею 146,7 кв.м. (В)
2 316.39 грн
15.79 грн / м2
Приміщення
Рівненська обл., Дубенський р-н. с. Верба вул. Грушевського ,4 . Оренда – виробничі приміщення площею 146,7 кв.м. (В)
Україна, Рівненська обл., Дубенський р-н. с. Верба, вул. Грушевського ,4
02.08.2023
Рівненська обл., Вараський р-н, с. Більська Воля, вул. Шкільна, 14. Оренда – нежитлові приміщення площею 62,8 кв.м. (В)
553.27 грн
8.81 грн / м2
Приміщення
Рівненська обл., Вараський р-н, с. Більська Воля, вул. Шкільна, 14. Оренда – нежитлові приміщення площею 62,8 кв.м. (В)
Україна, Рівненська обл., Більська Воля, вулиця Шкільна, 14