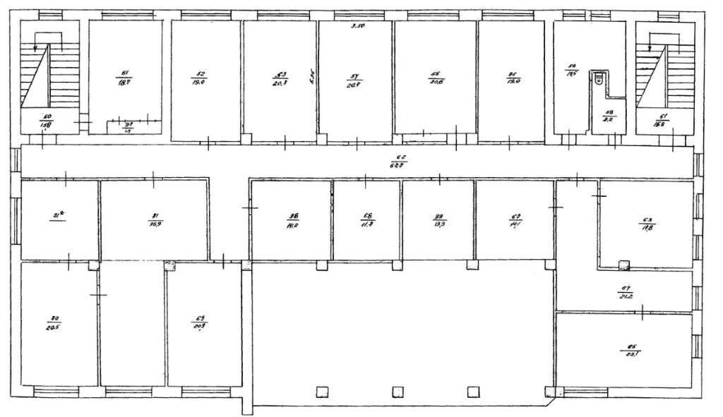
Чернігівська обл., Чернігівський р-н, смт. Козелець, вул. Соборності, 30 А. Оренда – приміщення 2-го поверху площею 14,5 кв.м. (В)

250.56 грн
17.28 грн / м2
Україна, Чернігівська обл., Козелець, вул. Соборності, буд. 30А
Перейти до аукціону на сайті
  • Інформація
  • Опис
  • Документи
Дата оголошення пропозиції:
23 грудня 2022
Площа:
14.50 м2
Тип об’єкта:
Приміщення
Тип аукціону:
Англійський аукціон
Статус аукціону:
Аукціон не відбувся
Тип угоди:
Оренда
Розмір мінімального кроку:
25.00 ₴
Розмір гарантійного внеску:
150.34 ₴
Початок прийому пропозицій:
23.12.2022 14:51:33
Завершення прийому пропозицій:
26.01.2023 20:00:00
Проведення аукціону:
27.01.2023 11:20:00
Лот:
CLE001-UA-20221223-91794
№ лоту (УТК):
UTK181021_4T
Лот виставляється на торги (раз):
10
Стислий опис майна:
Пропонується до оренди приміщення 2-го поверху площею 14,5 кв.м. Будівля знаходиться в самому центрі селища міського типу, в місці зосередження ринку, центральної площі, органів місцевого самоврядування, що забезпечує щоденний насичений людинопотік. Характеристики: • кількість поверхів – 3; • опалення від власної котельні; • земельна ділянка – 0,2122 га (договір оренди).
Адреса місцезнаходження майна:
Україна, Чернігівська обл., Козелець, вул. Соборності, буд. 30А
Схожі пропозиції
Чернігівська обл., м. Новгород-Сіверський, вул. Вокзальна, 9а. Оренда – нежитлове приміщення 1-го поверху, площею 44,75 кв.м. (В)
57.28 грн
1.28 грн / м2
Приміщення
Чернігівська обл., м. Новгород-Сіверський, вул. Вокзальна, 9а. Оренда – нежитлове приміщення 1-го поверху, площею 44,75 кв.м. (В)
Україна, Чернігівська обл., Новгород-Сіверський, вул. Вокзальна, 9а
Чернігівська обл.,м. Новгород-Сіверський, вул. Князя Ігоря, 34-А. Оренда приміщень 2-го поверху
4 608.97 грн
34.89 грн / м2
Приміщення
Чернігівська обл.,м. Новгород-Сіверський, вул. Князя Ігоря, 34-А. Оренда приміщень 2-го поверху
Україна, Чернігівська обл., м. Новгород-Сіверський, вул. Князя Ігоря, 34-А
Чернігівська обл., м. Ніжин, вул. Московська, 5-А. Оренда – приміщення 1-го поверху площею 49,5 кв.м.
8 353.13 грн
168.75 грн / м2
Приміщення
Чернігівська обл., м. Ніжин, вул. Московська, 5-А. Оренда – приміщення 1-го поверху площею 49,5 кв.м.
Україна, Чернігівська обл., Чернігівська обл., м. Ніжин, вул. Московська, 5-А
Чернігівська обл., Чернігівський р-н, м. Городня, вул. Чернігівська, 7. Оренда – приміщення гаражного боксу площею 28,30 кв.м. (В)
176.59 грн
6.24 грн / м2
Приміщення
Чернігівська обл., Чернігівський р-н, м. Городня, вул. Чернігівська, 7. Оренда – приміщення гаражного боксу площею 28,30 кв.м. (В)
Україна, Чернігівська обл., Городня, вул. Чернігівська, 7
Переглянуті пропозиції
Івано-Франківська обл., смт. Рожнятів, площа Єдності, 9. Оренда – Приміщення 3-го поверху 100,8 кв.м.
804.38 грн
7.98 грн / м2
Приміщення
Івано-Франківська обл., смт. Рожнятів, площа Єдності, 9. Оренда – Приміщення 3-го поверху 100,8 кв.м.
Україна, Івано-Франківська обл., смт. Рожнятів, площа Єдності, 9