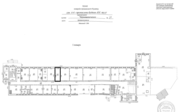
Дніпропетровська обл., м. Дніпро, вул. Чернишевського, 27. Оренда – приміщення 1-го поверху площею 14,30 кв.м. (В)

971.26 грн
67.92 грн / м2
Україна, Дніпропетровська обл., м. Дніпро, вул. Чернишевського, 27
Перейти до аукціону на сайті
  • Інформація
  • Опис
  • Документи
Дата оголошення пропозиції:
13 січня 2023
Площа:
14.30 м2
Тип об’єкта:
Приміщення
Тип аукціону:
Англійський аукціон
Статус аукціону:
Аукціон не відбувся
Тип угоди:
Оренда
Розмір мінімального кроку:
100.00 ₴
Розмір гарантійного внеску:
582.76 ₴
Початок прийому пропозицій:
13.01.2023 15:33:51
Завершення прийому пропозицій:
14.02.2023 20:00:00
Проведення аукціону:
15.02.2023 11:55:00
Лот:
CLE001-UA-20230113-95686
№ лоту (УТК):
UTK010722_04P
Лот виставляється на торги (раз):
5
Стислий опис майна:
Пропонується до оренди приміщення 1-го поверху площею 14,30 кв.м. Розташування - будівля знаходиться в Соборному районі міста. Поруч знаходяться відділення банку, супермаркети, учбові заклади, зупинка громадського транспорту, високий автомобільний і пішохідний потоки. Стан приміщення задовільний, підходить для офісу, студії, Ідеальне місце під розвиток будь-якого бізнесу. Можливість передачі приміщень в суборенду. Характеристики: Кількість поверхів – 4 Загальна площа – 4 202,20 кв.м. Площа запропонована до оренди – 14,30 кв.м. Електропостачання, водопостачання, теплопостачання, вивіз сміття, охорона та обслуговування пожежної сигналізації, прибирання загальних місць та території; Земельна ділянка – 0, 358 га (договір оренди)
Адреса місцезнаходження майна:
Україна, Дніпропетровська обл., м. Дніпро, вул. Чернишевського, 27
Схожі пропозиції
18.10.2024
Дніпропетровська обл., м. Синельникове, вул. Богми, 4;  Оренда – приміщення 2-го поверху, площею 213,5 кв.м. (В)
2 307.94 грн
10.81 грн / м2
Приміщення
Дніпропетровська обл., м. Синельникове, вул. Богми, 4; Оренда – приміщення 2-го поверху, площею 213,5 кв.м. (В)
Україна, Дніпропетровська обл., м. Синельникове, вулиця Богми, 4
19.11.2025
Довгострокова оренда! Дніпропетровська обл., м. Дніпро, бул. Рубіновий, 18. Оренда – група приміщень 2-го поверху загальною площею 692,90 кв.м. (В)
01.09.2023
Дніпропетровська обл., м. Кривий Ріг, вул. Героїв АТО, 30. Оренда – приміщення 1-го поверху площею 86,10 кв.м. (В)
1 334.55 грн
15.50 грн / м2
Приміщення
Дніпропетровська обл., м. Кривий Ріг, вул. Героїв АТО, 30. Оренда – приміщення 1-го поверху площею 86,10 кв.м. (В)
Україна, Дніпропетровська обл., м. Кривий Ріг, вул. Героїв АТО, 30
25.06.2024
Дніпропетровська обл, смт. Петриківка, пр. Петра Калнишевського, 52. Оренда – приміщення 2-го поверху загальною площею 158,80 кв.м (В)
2 080.28 грн
13.10 грн / м2
Приміщення
Дніпропетровська обл, смт. Петриківка, пр. Петра Калнишевського, 52. Оренда – приміщення 2-го поверху загальною площею 158,80 кв.м (В)
Україна, Дніпропетровська обл., смт. Петриківка, пр. Петра Калнишевського, 52