Вінницька обл., м. Вінниця, вул. Соборна, 8. Оренда – приміщення підвалу площею 174,7 кв.м. (В)

8 071.14 грн
46.20 грн / м2
Україна, Вінницька обл., Вінниця, вулиця Соборна, 8
Перейти до аукціону на сайті
  • Інформація
  • Опис
  • Документи
Дата оголошення пропозиції:
23 січня 2023
Площа:
174.70 м2
Тип об’єкта:
Приміщення
Тип аукціону:
Англійський аукціон
Статус аукціону:
Аукціон не відбувся
Тип угоди:
Оренда
Розмір мінімального кроку:
80.00 ₴
Розмір гарантійного внеску:
4 842.68 ₴
Початок прийому пропозицій:
23.01.2023 13:10:03
Завершення прийому пропозицій:
22.02.2023 20:00:00
Проведення аукціону:
23.02.2023 12:20:00
Лот:
CLE001-UA-20230123-22752
№ лоту (УТК):
UTK290722_2T
Лот виставляється на торги (раз):
6
Стислий опис майна:
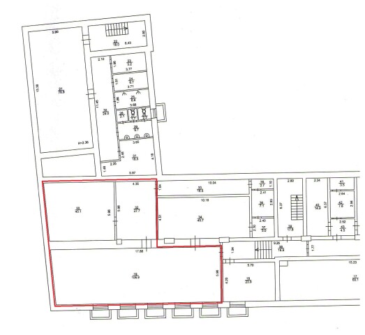
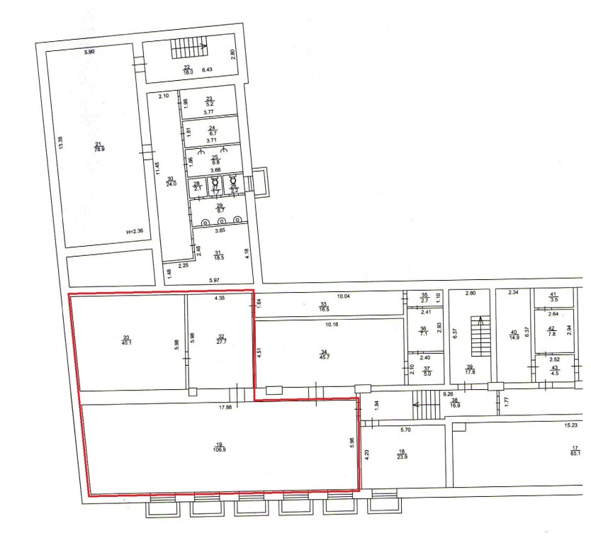
Пропонується до приміщення підвалу площею 174,7 кв.м. Будівля знаходиться в центральній частині м. Вінниця в діловому та культурному центрі міста, поруч Вінницька міська та обласна ради, ресторани, торгові центри (ТРЦ «Скайпарк», «Варшава»), православний та католицький собори. Зручна транспортна розв’язка та інфраструктура. . Характеристики - Кількість поверхів – 4; - Загальна площа – 5062,3 кв.м; - Площа запропонована до оренди – 174,7 кв.м; - Електропостачання, теплопостачання, водопостачання та водовідведення.
Адреса місцезнаходження майна:
Україна, Вінницька обл., Вінниця, вулиця Соборна, 8
Схожі пропозиції
12.01.2024
Вінницька обл., Вінницький р-н, смт Літин, вул. Соборна, 47;   Оренда – приміщення площею 59,7 кв.м. (В)
1 523.54 грн
25.52 грн / м2
Приміщення
Вінницька обл., Вінницький р-н, смт Літин, вул. Соборна, 47; Оренда – приміщення площею 59,7 кв.м. (В)
Україна, Вінницька обл., смт. Літин, вулиця Соборна, 47
Вінницька обл., Хмільницький р-н, м. Козятин, вул. 8-ма Гвардійська, 9/2, оренда – нежитлові приміщення площею 30,90 кв.м. (В)
542.91 грн
17.57 грн / м2
Приміщення
Вінницька обл., Хмільницький р-н, м. Козятин, вул. 8-ма Гвардійська, 9/2, оренда – нежитлові приміщення площею 30,90 кв.м. (В)
Україна, Вінницька обл., Козятин, вул. 8-ма Гвардійська 9/2
28.05.2024
Вінницька обл., смт. Теплик, вул. Незалежності, 5;   Оренда – Приміщення першого поверху будівлі площею 100,10 кв.м. (В)
3 963.96 грн
39.60 грн / м2
Приміщення
Вінницька обл., смт. Теплик, вул. Незалежності, 5; Оренда – Приміщення першого поверху будівлі площею 100,10 кв.м. (В)
Україна, Вінницька обл., Теплик, вулиця Незалежності, 5
18.08.2022
Вінницька обл., смт. Томашпіль, вул. Криворучка, 1. Оренда – приміщення 3 поверху площею 248,20 кв.м. (В)
1 521.47 грн
6.13 грн / м2
Приміщення
Вінницька обл., смт. Томашпіль, вул. Криворучка, 1. Оренда – приміщення 3 поверху площею 248,20 кв.м. (В)
Україна, Вінницька обл., Томашпіль, вул. Криворучка, 1
Переглянуті пропозиції
21.08.2024
м.Харків, вул.Конторська,14 ;     Оренда–приміщення 2-го поверху площею 26,1 кв.м (В)
1 808.73 грн
69.30 грн / м2
Приміщення
м.Харків, вул.Конторська,14 ; Оренда–приміщення 2-го поверху площею 26,1 кв.м (В)
Україна, Харківська обл., Харків, вулиця Конторська, 14