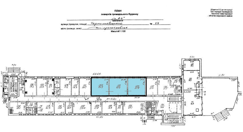
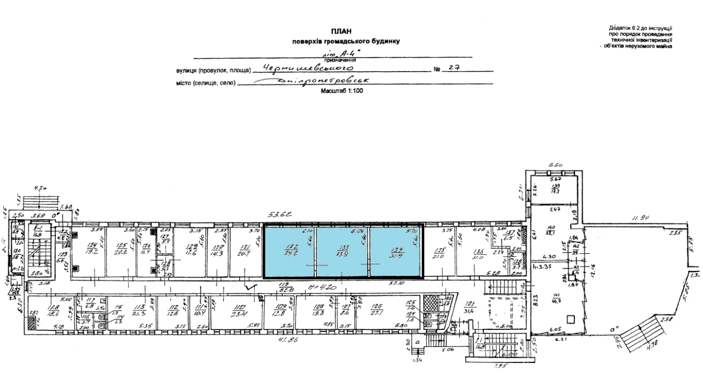
Дніпропетровська обл., м. Дніпро, вул. Чернишевського, 27. Оренда – приміщення 1-го поверху площею 100,00 кв.м. (В)

6 792.00 грн
67.92 грн / м2
Україна, Дніпропетровська обл., м. Дніпро, вул. Чернишевського, 27
Перейти до аукціону на сайті
  • Інформація
  • Опис
  • Документи
Дата оголошення пропозиції:
15 лютого 2023
Площа:
100.00 м2
Тип об’єкта:
Приміщення
Тип аукціону:
Англійський аукціон
Статус аукціону:
Аукціон не відбувся
Тип угоди:
Оренда
Розмір мінімального кроку:
500.00 ₴
Розмір гарантійного внеску:
4 075.20 ₴
Початок прийому пропозицій:
15.02.2023 14:24:13
Завершення прийому пропозицій:
16.03.2023 20:00:00
Проведення аукціону:
17.03.2023 11:15:00
Лот:
CLE001-UA-20230215-74734
№ лоту (УТК):
UTK011122_08P
Лот виставляється на торги (раз):
4
Стислий опис майна:
Пропонується до оренди приміщення 1-го поверху площею 100,00 кв.м. Розташування - будівля знаходиться в Соборному районі міста. Поруч знаходяться відділення банку, супермаркети, учбові заклади, зупинка громадського транспорту, високий автомобільний і пішохідний потоки. Стан приміщення задовільний, підходить для офісу, студії, Ідеальне місце під розвиток будь-якого бізнесу. Можливість передачі приміщень в суборенду. Характеристики: Кількість поверхів – 4 Загальна площа – 4 202,20 кв.м. Площа запропонована до оренди – 100,00 кв.м. Електропостачання, водопостачання, теплопостачання, вивіз сміття, охорона та обслуговування пожежної сигналізації; Земельна ділянка – 0, 358 га (договір оренди)
Адреса місцезнаходження майна:
Україна, Дніпропетровська обл., м. Дніпро, вул. Чернишевського, 27
Схожі пропозиції
31.01.2023
Дніпропетровська обл., м. Жовті Води, вул. Свободи, 39. Оренда – приміщення 1-го поверху площею 30,0 кв.м. (В)
789.00 грн
26.30 грн / м2
Приміщення
Дніпропетровська обл., м. Жовті Води, вул. Свободи, 39. Оренда – приміщення 1-го поверху площею 30,0 кв.м. (В)
Україна, Дніпропетровська обл., Жовті Води, бульвар Свободи, 39
15.02.2023
Дніпропетровська обл., м. Дніпро, вул. Чернишевського, 27. Оренда – приміщення 2-го поверху площею 98,40 кв.м. (В)
6 683.33 грн
67.92 грн / м2
Приміщення
Дніпропетровська обл., м. Дніпро, вул. Чернишевського, 27. Оренда – приміщення 2-го поверху площею 98,40 кв.м. (В)
Україна, Дніпропетровська обл., м. Дніпро, вул. Чернишевського, 27
31.12.2024
Дніпропетровська обл., м. Жовті Води, вул. Свободи, 39;  Оренда – приміщення 3-го поверху площею 32,5 кв.м. (В)
487.50 грн
15.00 грн / м2
Приміщення
Дніпропетровська обл., м. Жовті Води, вул. Свободи, 39; Оренда – приміщення 3-го поверху площею 32,5 кв.м. (В)
Україна, Дніпропетровська обл., Жовті Води, бульвар Свободи, 39
05.07.2023
Дніпропетровська обл., м. Дніпро, вул.Січових Стрільців, 10. Оренда – приміщення цокольного поверху площею 31,20 кв.м. (В)
1 441.44 грн
46.20 грн / м2
Приміщення
Дніпропетровська обл., м. Дніпро, вул.Січових Стрільців, 10. Оренда – приміщення цокольного поверху площею 31,20 кв.м. (В)
Україна, Дніпропетровська обл., м. Дніпро, вул.Січових Стрільців, 10