Рівненська обл., Рівненський р-н, с. Здовбиця, вул. Шосова, 107. Оренда – нежитлові приміщення площею 80,3 м. кв. (В)

1 388.39 грн
17.29 грн / м2
Україна, Рівненська обл., Рівненський р-н, с. Здовбиця, вул. Шосова, 107
Перейти до аукціону на сайті
  • Інформація
  • Опис
  • Документи
Дата оголошення пропозиції:
16 лютого 2023
Площа:
80.30 м2
Тип об’єкта:
Приміщення
Тип аукціону:
Англійський аукціон
Статус аукціону:
Аукціон не відбувся
Тип угоди:
Оренда
Розмір мінімального кроку:
100.00 ₴
Розмір гарантійного внеску:
833.03 ₴
Початок прийому пропозицій:
16.02.2023 16:19:41
Завершення прийому пропозицій:
20.03.2023 20:00:00
Проведення аукціону:
21.03.2023 11:50:00
Лот:
CLE001-UA-20230216-72402
№ лоту (УТК):
UTK260821_04P
Лот виставляється на торги (раз):
10
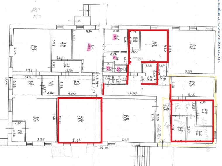
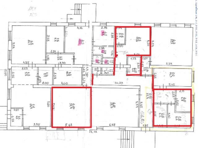
Стислий опис майна:
Пропонується до оренди нежитлові приміщення 1го поверху площею 80,3 м. кв. Будівля знаходиться в центральній частині села., досить розвинена інфраструктура. Розглядається можливість облаштування окремого входу. Приміщення потребують реконструкції системи електропостачання. Опалення відсутнє. Характеристики: Кількість поверхів – 1 ; Загальна площа – 246,1 м. кв.; Площа, запропонована до оренди – 80,3 м.кв.; Земельна ділянка - площа 0,1304 га.
Адреса місцезнаходження майна:
Україна, Рівненська обл., Рівненський р-н, с. Здовбиця, вул. Шосова, 107
Схожі пропозиції
м. Рівне, вул. Орлова, 37. Оренда приміщень 3-го поверху площею 758,0 кв.м.
10 286.06 грн
13.57 грн / м2
Приміщення
м. Рівне, вул. Орлова, 37. Оренда приміщень 3-го поверху площею 758,0 кв.м.
Україна, Рівненська обл., м. Рівне, вул. Орлова, 37
12.07.2023
Рівненська обл., Дубенський р-н, с. Малеве, вул. Лесі Українки, 55. Оренда – приміщення площею 18,2 м.кв. (В)
500.14 грн
27.48 грн / м2
Приміщення
Рівненська обл., Дубенський р-н, с. Малеве, вул. Лесі Українки, 55. Оренда – приміщення площею 18,2 м.кв. (В)
Україна, Рівненська обл., Малеве, вул. Лесі Українки, 55
21.05.2024
Рівненська обл., Рівненський р-н, с. Моквин, вул. Шевченка, 3;  Оренда – виробничі приміщення площею 144,7 м.кв. (В)
6 731.44 грн
46.52 грн / м2
Приміщення
Рівненська обл., Рівненський р-н, с. Моквин, вул. Шевченка, 3; Оренда – виробничі приміщення площею 144,7 м.кв. (В)
Україна, Рівненська обл., с. Моквин,, вул. Шевченка, 3
26.07.2023
Рівненська обл., смт. Володимирець вул. Поштова ,23. Оренда – приміщення 1-го поверху загальною площею 80,5 м.кв. (В)
1 787.10 грн
22.20 грн / м2
Приміщення
Рівненська обл., смт. Володимирець вул. Поштова ,23. Оренда – приміщення 1-го поверху загальною площею 80,5 м.кв. (В)
Україна, Рівненська обл., смт. Володимирець, вул. Поштова ,23
Переглянуті пропозиції
10.01.2023
Дніпропетровська обл., м. Жовті Води, бул. Свободи, 39. Оренда – приміщення другого поверху, загальною площею 58,80 кв.м. (В)
655.03 грн
11.14 грн / м2
Приміщення
Дніпропетровська обл., м. Жовті Води, бул. Свободи, 39. Оренда – приміщення другого поверху, загальною площею 58,80 кв.м. (В)
Україна, Дніпропетровська обл., м. Жовті Води, бул. Свободи, 39
10.01.2023
Дніпропетровська обл., м. Дніпро, вул. Чернишевського, 27. Оренда – приміщення 1-го поверху площею 14,30 кв.м. (В)
971.26 грн
67.92 грн / м2
Приміщення
Дніпропетровська обл., м. Дніпро, вул. Чернишевського, 27. Оренда – приміщення 1-го поверху площею 14,30 кв.м. (В)
Україна, Дніпропетровська обл., м. Дніпро, вул. Чернишевського, 27
08.11.2022
Одеська обл., Одеський р-н, с. Вигода, вул. Центральна, буд. 44. Оренда – приміщення будівлі загальною площею 154,90 кв.м (В)
3 640.15 грн
23.50 грн / м2
Приміщення
Одеська обл., Одеський р-н, с. Вигода, вул. Центральна, буд. 44. Оренда – приміщення будівлі загальною площею 154,90 кв.м (В)
Україна, Харківська обл., Одеський р-н, с. Вигода, вул. Центральна, буд. 44
10.01.2023
Дніпропетровська обл., м. Дніпро, вул. Чернишевського, 27. Оренда – приміщення 1-го поверху площею 12,60 кв.м. (В)
855.79 грн
67.92 грн / м2
Приміщення
Дніпропетровська обл., м. Дніпро, вул. Чернишевського, 27. Оренда – приміщення 1-го поверху площею 12,60 кв.м. (В)
Україна, Дніпропетровська обл., м. Дніпро, вул. Чернишевського, 27