ДОВГОСТРОКОВА ОРЕНДА! м. Київ, вул. Ісаакяна, 3. Оренда – Приміщення 3-го поверху площею 501,5 кв.м. (В)

75 957.19 грн
151.46 грн / м2
Україна, м.Київ, Київ, вулиця Ісаакяна, 3
Перейти до аукціону на сайті
  • Інформація
  • Опис
  • Документи
Дата оголошення пропозиції:
17 лютого 2023
Площа:
501.50 м2
Тип об’єкта:
Приміщення
Тип аукціону:
Англійський аукціон
Статус аукціону:
Аукціон не відбувся
Тип угоди:
Оренда
Розмір мінімального кроку:
800.00 ₴
Розмір гарантійного внеску:
45 574.31 ₴
Початок прийому пропозицій:
17.02.2023 13:48:24
Завершення прийому пропозицій:
21.03.2023 20:00:00
Проведення аукціону:
22.03.2023 11:25:00
Лот:
CLE001-UA-20230217-80680
№ лоту (УТК):
UTK040422_04T
Лот виставляється на торги (раз):
10
Стислий опис майна:
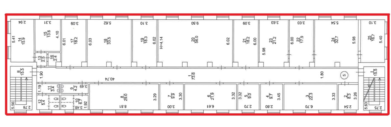
Пропонується до оренди офісні приміщення третього поверху, площею 501,5 кв.м. Розташування будівлі у Шевченківському районі міста Києва, місцевість Шулявка. Поруч розвинена інфраструктура, зупинки швидкісного трамваю, маршрутного та громадського транспорту, магазини, кафе, аптеки. Вхід з двору, через прохідну. Доступ вільний 24/7. Характеристики Загальна площа будівлі – 2069,60 м2; Площа запропонована до оренди – 501,5 м2; Опалення – міське (централізоване) Кількість поверхів – 3; Загальна площа земельної ділянки – 0,2892 га;
Адреса місцезнаходження майна:
Україна, м.Київ, Київ, вулиця Ісаакяна, 3
Схожі пропозиції
11.03.2025
ДОВГОСТРОКОВА ОРЕНДА!  м. Київ, пр-т Оболонський, 32-Б ;  Оренда – приміщення 4-го поверху, площею 772,40 м2 (В)
112 152.48 грн
145.20 грн / м2
Приміщення
ДОВГОСТРОКОВА ОРЕНДА! м. Київ, пр-т Оболонський, 32-Б ; Оренда – приміщення 4-го поверху, площею 772,40 м2 (В)
Україна, м.Київ, Київ, Оболонський проспект, 32-Б
15.08.2023
ДОВГОСТРОКОВА ОРЕНДА! м. Київ, вул. Героїв Севастополя, 39/8 літ. «Е». Оренда – приміщення 2-го та 4-го поверхів, площею 1751,8 м2 (В)
239 944.05 грн
136.97 грн / м2
Приміщення
ДОВГОСТРОКОВА ОРЕНДА! м. Київ, вул. Героїв Севастополя, 39/8 літ. «Е». Оренда – приміщення 2-го та 4-го поверхів, площею 1751,8 м2 (В)
Україна, м.Київ, Київ, вулиця Героїв Севастополя, 39
08.05.2024
м. Київ, вул. Будівельників, 8-Б;   Оренда – приміщення підвалу, площею 452,6 кв.м. (В)
42 300.00 грн
93.46 грн / м2
Приміщення
м. Київ, вул. Будівельників, 8-Б; Оренда – приміщення підвалу, площею 452,6 кв.м. (В)
Україна, м.Київ, Київ, вулиця Будівельників, 8-Б
15.08.2023
м. Київ, вул. Миколи Голего, 8. Оренда – приміщення 3-го поверху площею 79,7 м2 (В)
11 301.46 грн
141.80 грн / м2
Приміщення
м. Київ, вул. Миколи Голего, 8. Оренда – приміщення 3-го поверху площею 79,7 м2 (В)
Україна, м.Київ, Київ, вулиця Миколи Голего, 8
Переглянуті пропозиції
15.07.2025
Чернігівська обл., м. Чернігів, проспект Миру, 28. Оренда – приміщення 3- го поверху площею 56,6 кв.м (В)
1 698.00 грн
30.00 грн / м2
Приміщення
Чернігівська обл., м. Чернігів, проспект Миру, 28. Оренда – приміщення 3- го поверху площею 56,6 кв.м (В)
Україна, Чернігівська обл., м. Чернігів, проспект Миру, 28
31.07.2024
Полтавська обл., Кременчуцький район, м. Кременчук, вулиця Л. Дніпрова, 70;  Оренда – приміщення 1-го поверху загальною площею 233,20 кв.м. (В)
32 078.99 грн
137.56 грн / м2
Приміщення
Полтавська обл., Кременчуцький район, м. Кременчук, вулиця Л. Дніпрова, 70; Оренда – приміщення 1-го поверху загальною площею 233,20 кв.м. (В)
Україна, Полтавська обл., Кременчук, вул. Лейтенанта Дніпрова, 70
17.01.2025
Полтавська обл., Кременчуцький р-н, с. Броварки, вулиця Різдвяна, 41. Оренда – приміщення загальною площею 55,50 кв.м. (В)
1 198.80 грн
21.60 грн / м2
Приміщення
Полтавська обл., Кременчуцький р-н, с. Броварки, вулиця Різдвяна, 41. Оренда – приміщення загальною площею 55,50 кв.м. (В)
Україна, Полтавська обл., Кременчуцький р-н, с. Броварки, вул. Різдвяна, 41
16.07.2024
Рівненська обл., м. Рівне вул. Соборна, 56;   Оренда – приміщення гаража площею 30,10 кв.м. (П)
4 190.52 грн
139.22 грн / м2
Приміщення
Рівненська обл., м. Рівне вул. Соборна, 56; Оренда – приміщення гаража площею 30,10 кв.м. (П)
Україна, Рівненська обл., м.Рівне, вулиця Соборна, 56