Львівська обл., смт. Івано-Франкове, вул. Львівська, 32. Оренда – приміщення 3-го поверху площею 119,50 кв. м. (В)

1 376.64 грн
11.52 грн / м2
Україна, Львівська обл., смт. Івано-Франкове, вул. Львівська, 32
Перейти до аукціону на сайті
  • Інформація
  • Опис
  • Документи
Дата оголошення пропозиції:
27 лютого 2023
Площа:
119.50 м2
Тип об’єкта:
Приміщення
Тип аукціону:
Англійський аукціон
Статус аукціону:
Аукціон не відбувся
Тип угоди:
Оренда
Розмір мінімального кроку:
50.00 ₴
Розмір гарантійного внеску:
825.98 ₴
Початок прийому пропозицій:
27.02.2023 14:08:50
Завершення прийому пропозицій:
30.03.2023 20:00:00
Проведення аукціону:
31.03.2023 11:05:00
Лот:
CLE001-UA-20230227-85346
№ лоту (УТК):
UTK160721_11Р
Лот виставляється на торги (раз):
10
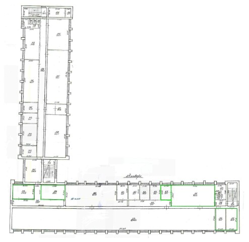
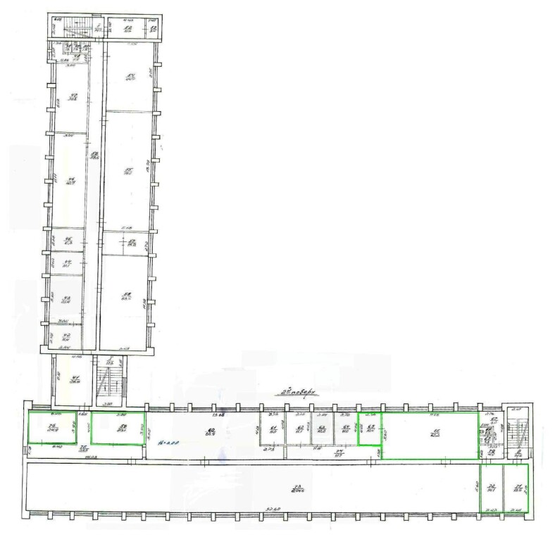
Стислий опис майна:
Пропонуються до оренди приміщення 3-го поверху площею 119,50 кв.м. Будівля розташована при дорозі в центральній частині селища, неподалік від селищної ради. Можливий окремий вхід. Характеристики: кількість поверхів – 3 газове опалення, але в даних приміщеннях необхідно провести відповідні заходи для покращення газопостачання; водопостачання частково потребує відновлення; вільне до використання електропостачання – 2,5 кВт земельна ділянка – 0,15 га
Адреса місцезнаходження майна:
Україна, Львівська обл., смт. Івано-Франкове, вул. Львівська, 32
Схожі пропозиції
24.04.2025
Львівська обл., м. Стебник, майдан Шевченка, 1. Оренда – приміщення 1-го та 2-го поверху площею 361,60 кв.м. (В)
5 207.04 грн
14.40 грн / м2
Приміщення
Львівська обл., м. Стебник, майдан Шевченка, 1. Оренда – приміщення 1-го та 2-го поверху площею 361,60 кв.м. (В)
Україна, Львівська обл., м. Стебник, майдан Шевченка, 1
23.02.2024
Львівська обл., с. Скелівка, вул. Центральна, 1. Оренда – приміщення площею 34,90 кв. м. (В)
511.63 грн
14.66 грн / м2
Приміщення
Львівська обл., с. Скелівка, вул. Центральна, 1. Оренда – приміщення площею 34,90 кв. м. (В)
Україна, Львівська обл., с. Скелівка, вул. Центральна, 1
05.09.2024
Львівська обл., Стрийський р-н, м. Ходорів, вул. Грушевського, 23 . Оренда – приміщення 2-го поверху площею 92,10 кв.м. (В)
1 422.02 грн
15.44 грн / м2
Приміщення
Львівська обл., Стрийський р-н, м. Ходорів, вул. Грушевського, 23 . Оренда – приміщення 2-го поверху площею 92,10 кв.м. (В)
Україна, Львівська обл., Стрийський р-н, м. Ходорів, вул. Грушевського, 23
Львівська обл., м. Новий Розділ, пр. Шевченка, 30. Оренда – приміщення  2-го поверху 49,6 кв.м.
353.65 грн
7.13 грн / м2
Приміщення
Львівська обл., м. Новий Розділ, пр. Шевченка, 30. Оренда – приміщення 2-го поверху 49,6 кв.м.
Україна, Львівська обл., м. Новий Розділ, пр. Шевченка, 30
Переглянуті пропозиції
12.07.2024
Харківська обл., м. Харків, вул. Коцарська, 45, літер «А-4»;  Оренда – приміщення на 2-му поверсі загальною площею 48,70 кв.м. (В)
2 618.11 грн
53.76 грн / м2
Приміщення
Харківська обл., м. Харків, вул. Коцарська, 45, літер «А-4»; Оренда – приміщення на 2-му поверсі загальною площею 48,70 кв.м. (В)
Україна, Харківська обл., Харків, вулиця Коцарська, 45
30.03.2023
м. Київ, вул. Героїв Севастополя, 39/8. Оренда – приміщення 1-го поверху площею 74,4 м² (В)
7 231.68 грн
97.20 грн / м2
Приміщення
м. Київ, вул. Героїв Севастополя, 39/8. Оренда – приміщення 1-го поверху площею 74,4 м² (В)
Україна, м.Київ, Київ, вулиця Героїв Севастополя, 39/8
30.07.2024
Рівненська обл., Рівненський р-н, с. Пустомити, вул. Радянська, 41. Оренда – виробничі приміщення площею 21,80 кв.м. (В)
375.18 грн
17.21 грн / м2
Приміщення
Рівненська обл., Рівненський р-н, с. Пустомити, вул. Радянська, 41. Оренда – виробничі приміщення площею 21,80 кв.м. (В)
Україна, Рівненська обл., Рівненський р-н, с. Пустомити, вул. Радянська, 41
Полтавська обл., м. Решетилівка, вул. Старокиївська, 2. Оренда - приміщення 2-го поверху площею 66,6 кв.м. (В)
1 086.91 грн
16.32 грн / м2
Приміщення
Полтавська обл., м. Решетилівка, вул. Старокиївська, 2. Оренда - приміщення 2-го поверху площею 66,6 кв.м. (В)
Україна, Полтавська обл., м. Решетилівка, вул. Старокиївська, 2