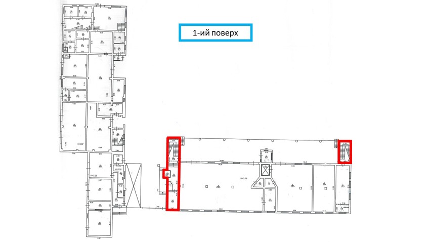
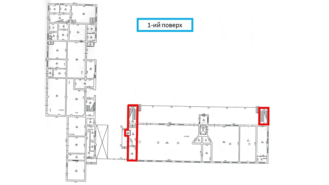
Івано-Франківська обл., м. Івано-Франківськ, вул. Ребета, 2. Оренда – Приміщення 2-го та 3-го поверху адміністративно-складської будівлі, площею 1518,3 кв.м. (В)

70 342.84 грн
46.33 грн / м2
Україна, Івано-Франківська обл., Івано-Франківськ, вулиця Ребета, 2
Перейти до аукціону на сайті
  • Інформація
  • Опис
  • Документи
Дата оголошення пропозиції:
07 березня 2023
Площа:
1518.30 м2
Тип об’єкта:
Приміщення
Тип аукціону:
Англійський аукціон
Статус аукціону:
Аукціон не відбувся
Тип угоди:
Оренда
Розмір мінімального кроку:
1 000.00 ₴
Розмір гарантійного внеску:
42 205.70 ₴
Початок прийому пропозицій:
07.03.2023 16:21:36
Завершення прийому пропозицій:
06.04.2023 20:00:00
Проведення аукціону:
07.04.2023 12:55:00
Лот:
CLE001-UA-20230307-14814
№ лоту (УТК):
UTK060721_12Т
Лот виставляється на торги (раз):
10
Стислий опис майна:
Пропонуються до оренди приміщення 2-го та 3-го поверху адміністративно-складської будівлі, площею 1518,3 кв.м. Будівля знаходиться на околиці міста в промисловій зоні, розвинена інфраструктура, поруч склади, товарні бази, виробничі цехи. Приміщення можуть використовуватись під склад, виробництво, тощо. • кількість поверхів – 3; • опалення газове; • земельна ділянка – 0,6744 га (договір оренди)
Адреса місцезнаходження майна:
Україна, Івано-Франківська обл., Івано-Франківськ, вулиця Ребета, 2
Схожі пропозиції
20.11.2024
Івано-Франківська обл., м. Івано-Франківськ, вул. Ребета, 2;    Оренда – приміщення 2-го та 3-го поверху адміністративно-складської будівлі, площею 1518,3 кв.м. (В)
Івано-Франківська обл., м. Івано-Франківськ, вул. Січових Стрільців, 30Б. Оренда – приміщення 3-го поверху, площею 32,6 м.кв (В)
4 547.05 грн
139.48 грн / м2
Приміщення
Івано-Франківська обл., м. Івано-Франківськ, вул. Січових Стрільців, 30Б. Оренда – приміщення 3-го поверху, площею 32,6 м.кв (В)
Україна, Івано-Франківська обл., Івано-Франківськ, вул. Січових Стрільців, 30Б
11.08.2022
Івано-Франківська обл., Івано-Франківський р-н, с.Росільна, вул. Шевченка, 145а. Оренда – Нежитлове приміщення І-го поверху, площею 33,4 м.кв. (В)
500.33 грн
14.98 грн / м2
Приміщення
Івано-Франківська обл., Івано-Франківський р-н, с.Росільна, вул. Шевченка, 145а. Оренда – Нежитлове приміщення І-го поверху, площею 33,4 м.кв. (В)
Україна, Івано-Франківська обл., Івано-Франківський р-н, с.Росільна, вул. Шевченка, 145а
Івано-Франківська обл., Івано-Франківський р-н, с.Росільна, вул. Шевченка, 145а. Оренда – Нежитлове приміщення І-го поверху, площею 33,4 м.кв. (В)
740.81 грн
22.18 грн / м2
Приміщення
Івано-Франківська обл., Івано-Франківський р-н, с.Росільна, вул. Шевченка, 145а. Оренда – Нежитлове приміщення І-го поверху, площею 33,4 м.кв. (В)
Україна, Івано-Франківська обл., Івано-Франківський р-н, с.Росільна, вул. Шевченка, 145а
Переглянуті пропозиції
Харківська обл., м. Харків, вул. Старошишківська, 5а. Оренда – приміщення 3-го поверху
1 428.48 грн
23.04 грн / м2
Приміщення
Харківська обл., м. Харків, вул. Старошишківська, 5а. Оренда – приміщення 3-го поверху
Україна, Харківська обл., м. Харків, вул. Старошишківська, буд. 5а
03.06.2025
Харківська обл., м. Харків, вул. Коцарська, 45, літер «А-4». Оренда – приміщення на 2-му поверсі загальною площею 48,70 кв.м. (В)
1 461.00 грн
30.00 грн / м2
Приміщення
Харківська обл., м. Харків, вул. Коцарська, 45, літер «А-4». Оренда – приміщення на 2-му поверсі загальною площею 48,70 кв.м. (В)
Україна, Харківська обл., Харків, м. Харків, вул. Коцарська, 45, літер «А-4»
Харківська обл., смт. Сахновщина, вул. Поштова, 6. Оренда – приміщення 1-го поверху
154.00 грн
7.70 грн / м2
Приміщення
Харківська обл., смт. Сахновщина, вул. Поштова, 6. Оренда – приміщення 1-го поверху
Україна, Харківська обл., смт. Сахновщина, вул. Поштова, буд. 6
05.12.2023
Вінницька обл., Вінницький р-н., м. Липовець, вул. В. Липківського, 37;   Оренда – нежитлові приміщення площею 86,7 кв.м. (В)
2 314.89 грн
26.70 грн / м2
Приміщення
Вінницька обл., Вінницький р-н., м. Липовець, вул. В. Липківського, 37; Оренда – нежитлові приміщення площею 86,7 кв.м. (В)
Україна, Вінницька обл., Липовець, вул. В. Липківського, 37