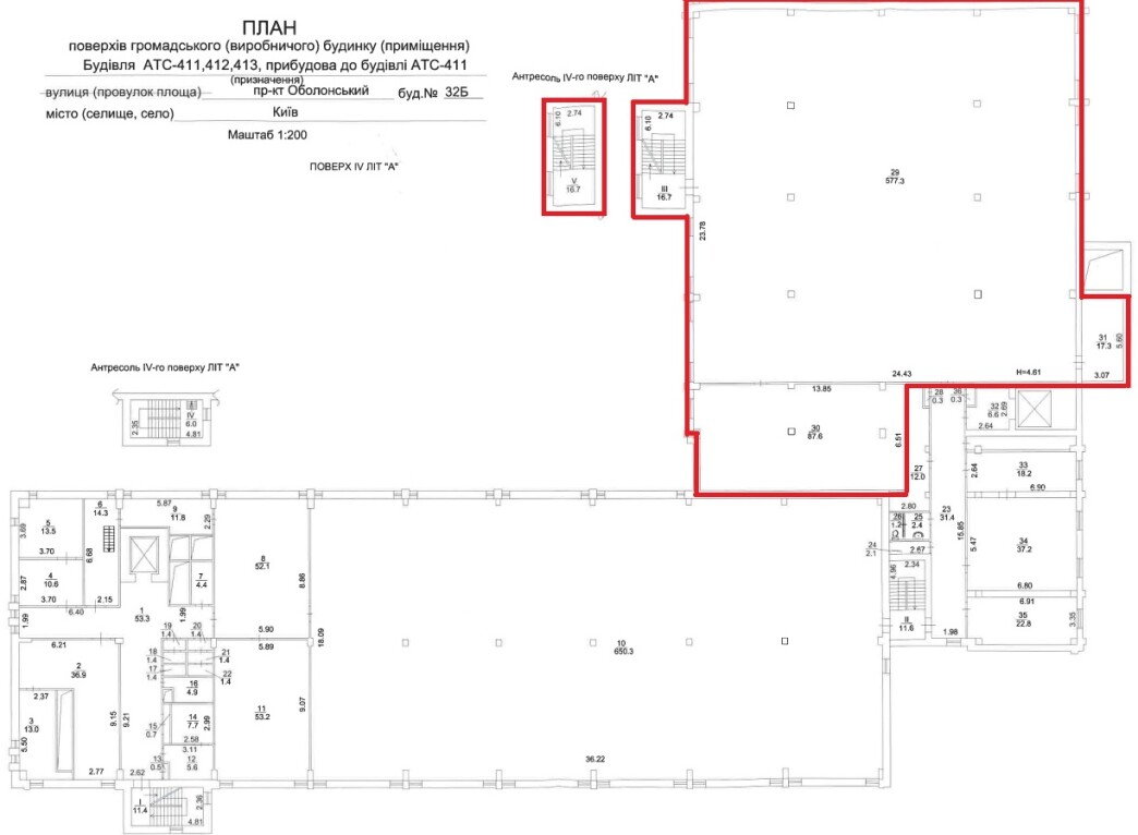
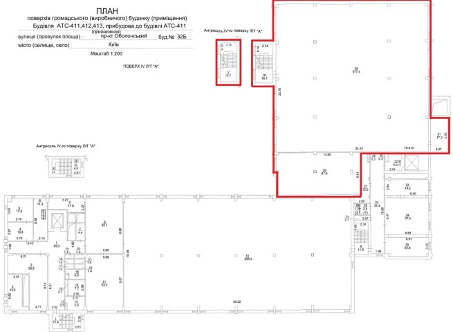
м. Київ, пр-т. Оболонський, 32-Б. Оренда – приміщення 4-го поверху, площею 715,6 м2 (В)

70 236.14 грн
98.15 грн / м2
Україна, м.Київ, м. Київ, пр-т. Оболонський, 32-Б
Перейти до аукціону на сайті
  • Інформація
  • Опис
  • Документи
Дата оголошення пропозиції:
24 березня 2023
Площа:
715.60 м2
Тип об’єкта:
Приміщення
Тип аукціону:
Англійський аукціон
Статус аукціону:
Аукціон не відбувся
Тип угоди:
Оренда
Розмір мінімального кроку:
700.00 ₴
Розмір гарантійного внеску:
42 141.68 ₴
Початок прийому пропозицій:
24.03.2023 14:16:14
Завершення прийому пропозицій:
25.04.2023 20:00:00
Проведення аукціону:
26.04.2023 11:35:00
Лот:
CLE001-UA-20230324-21373
№ лоту (УТК):
UTK150722_02T
Лот виставляється на торги (раз):
8
Стислий опис майна:
Пропонуються до оренди приміщення 4-го поверху, площею 715,6 м2 Будівля знаходиться в Оболонському районі міста Києва, житловий масив Оболонь, розвинена інфраструктура, високі автомобільний та пішохідний потоки, в 5 хв. від ст. м. Героїв Дніпра та Мінська (синя гілка), Торгівельно-розважальні центри. Характеристики: • загальна площа будівлі – 9462,6 м2 • кількість поверхів – 4; • опалення централізоване (міське); • земельна ділянка – 0,6695 га; • водопостачання, каналізація, сан. вузол – присутнє.
Адреса місцезнаходження майна:
Україна, м.Київ, м. Київ, пр-т. Оболонський, 32-Б
Схожі пропозиції
м. Київ, вул. Райдужна, 27-А, оренда – приміщення підвалу, площею 289,96 м2 (В)
21 920.98 грн
75.60 грн / м2
Приміщення
м. Київ, вул. Райдужна, 27-А, оренда – приміщення підвалу, площею 289,96 м2 (В)
Україна, м.Київ, Київ, вул. Райдужна, 27-А
м. Київ, вул. Макіївська, 3.Оренда – приміщення 2-го поверху, площею 724,10 м2 (В)
33 453.42 грн
46.20 грн / м2
Приміщення
м. Київ, вул. Макіївська, 3.Оренда – приміщення 2-го поверху, площею 724,10 м2 (В)
Україна, м.Київ, Київ, вул. Макіївська, 3
09.07.2025
Довгострокова оренда! м. Київ, вул. Петра Курінного, 2-Б. Оренда – 3-й поверх, площею - 614,80 кв. м. (В)
36 888.00 грн
60.00 грн / м2
Приміщення
Довгострокова оренда! м. Київ, вул. Петра Курінного, 2-Б. Оренда – 3-й поверх, площею - 614,80 кв. м. (В)
Україна, м.Київ, Київ, вулиця Петра Курінного, 2б
м. Київ, бульвар Амвросія Бучми, №5, літ «Б»Оренда – приміщення 2-го поверху, площею 721,1 кв.м. (В)
42 501.63 грн
58.94 грн / м2
Приміщення
м. Київ, бульвар Амвросія Бучми, №5, літ «Б»Оренда – приміщення 2-го поверху, площею 721,1 кв.м. (В)
Україна, м.Київ, Київ, бульвар Амвросія Бучми, №5, літ «Б»