м. Київ, вул. Миколи Голего, 8. Оренда – приміщення 3-го поверху площею 79,7 м2 (В)

6 886.08 грн
86.40 грн / м2
Україна, м.Київ, Київ, вулиця Миколи Голего, 8
Перейти до аукціону на сайті
  • Інформація
  • Опис
  • Документи
Дата оголошення пропозиції:
18 квітня 2023
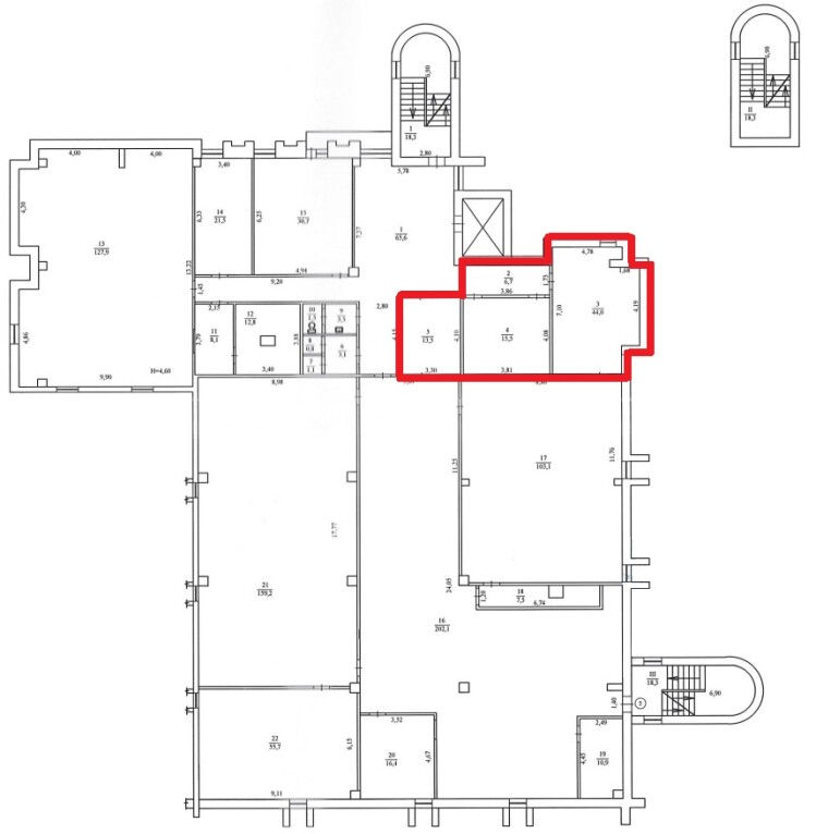
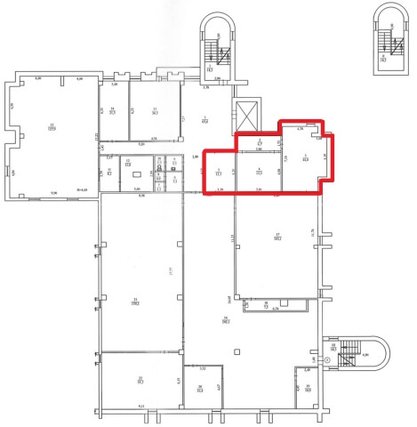
Площа:
79.70 м2
Тип об’єкта:
Приміщення
Тип аукціону:
Англійський аукціон
Статус аукціону:
Аукціон не відбувся
Тип угоди:
Оренда
Розмір мінімального кроку:
100.00 ₴
Розмір гарантійного внеску:
4 131.65 ₴
Початок прийому пропозицій:
18.04.2023 11:06:40
Завершення прийому пропозицій:
18.05.2023 20:00:00
Проведення аукціону:
19.05.2023 12:10:00
Лот:
CLE001-UA-20230418-15400
№ лоту (УТК):
UTK271222_00Т
Лот виставляється на торги (раз):
4
Стислий опис майна:
Пропонуються до оренди приміщення 3-го поверху площею 79,7 м2. Розташування будівлі у Солом'янському районі міста Києва, місцевість Караваєві дачі. Поруч розвинена інфраструктура, зупинки маршрутного транспорту, магазини, кафе, аптеки, середній автомобільний і пішохідний потоки. Характеристики: • загальна площа будівлі – 5639,8 м2 ; • сан. вузол, каналізація, водопостачання – присутне; • кількість поверхів – 4; • енергетична потужність – 5 кВт; • опалення централізоване (міське); • площа земельної ділянки – 0,3625 га*; *земельна ділянка не є предметом оренди.
Адреса місцезнаходження майна:
Україна, м.Київ, Київ, вулиця Миколи Голего, 8
Схожі пропозиції
11.10.2022
ДОВГОСТРОКОВА ОРЕНДА! м. Київ, вул. Героїв Севастополя, 39/8 літ. «Е». Оренда – приміщення 2-го та 4-го поверхів, площею 1751,80 м2 (В)
152 827.03 грн
87.24 грн / м2
Приміщення
ДОВГОСТРОКОВА ОРЕНДА! м. Київ, вул. Героїв Севастополя, 39/8 літ. «Е». Оренда – приміщення 2-го та 4-го поверхів, площею 1751,80 м2 (В)
Україна, м.Київ, Київ, вулиця Героїв Севастополя, 39
ДОВГОСТРОКОВА ОРЕНДА! м. Київ, вул. Антоновича, 40. Оренда – приміщення 3-го поверху площею 740,40 м2 (В)
244 554.12 грн
330.30 грн / м2
Приміщення
ДОВГОСТРОКОВА ОРЕНДА! м. Київ, вул. Антоновича, 40. Оренда – приміщення 3-го поверху площею 740,40 м2 (В)
Україна, м.Київ, Київ, вул. Антоновича, 40
09.07.2025
Довгострокова оренда! м. Київ, вул. Петра Курінного, 2-Б. Оренда – 3-й поверх, площею - 614,80 кв. м. (В)
36 888.00 грн
60.00 грн / м2
Приміщення
Довгострокова оренда! м. Київ, вул. Петра Курінного, 2-Б. Оренда – 3-й поверх, площею - 614,80 кв. м. (В)
Україна, м.Київ, Київ, вулиця Петра Курінного, 2б
12.01.2024
м. Київ, вул. Ореста Васкула (Феодори Пушиної), 27-А; Оренда – приміщення 3-го поверху, площею 34,5 кв.м. (В)
6 810.99 грн
197.42 грн / м2
Приміщення
м. Київ, вул. Ореста Васкула (Феодори Пушиної), 27-А; Оренда – приміщення 3-го поверху, площею 34,5 кв.м. (В)
Україна, м.Київ, м. Київ, вулиця Ореста Васкула, 27-А
Переглянуті пропозиції
03.06.2025
м.Харків, вул. Конторська,14. Оренда – приміщення цокольного поверху, площею 23,2 кв.м  (В)
696.00 грн
30.00 грн / м2
Приміщення
м.Харків, вул. Конторська,14. Оренда – приміщення цокольного поверху, площею 23,2 кв.м (В)
Україна, Харківська обл., м. Харків, вул. Конторська,14
27.11.2024
Львівська обл., м. Буськ, майдан Незалежності, 6;  Оренда – приміщення 2-го поверху площею 97,70 кв. м. (В)
3 288.58 грн
33.66 грн / м2
Приміщення
Львівська обл., м. Буськ, майдан Незалежності, 6; Оренда – приміщення 2-го поверху площею 97,70 кв. м. (В)
Україна, Львівська обл., Буськ, майдан Незалежності, 6
03.06.2025
м. Харків, вул. Конторська,14.Оренда – приміщення 2-го поверху площею 24,8 кв.м (В)
744.00 грн
30.00 грн / м2
Приміщення
м. Харків, вул. Конторська,14.Оренда – приміщення 2-го поверху площею 24,8 кв.м (В)
Україна, Харківська обл., м. Харків, вул. Конторська,14
26.03.2024
Харківська обл., м. Харків, вул. Коцарська, 45, літер «А-4»;  Оренда – приміщення на 2-му поверсі загальною площею 14,30 кв.м. (В)
933.50 грн
65.28 грн / м2
Приміщення
Харківська обл., м. Харків, вул. Коцарська, 45, літер «А-4»; Оренда – приміщення на 2-му поверсі загальною площею 14,30 кв.м. (В)
Україна, Харківська обл., Харків, вулиця Коцарська, 45