Рівненська обл., м. Дубровиця, вул. Шевченка, 53. Оренда – приміщення 2-го та 3-го поверху площею 163,7 кв.м. (В)

1 715.58 грн
10.48 грн / м2
Україна, Рівненська обл., м. Дубровиця, вул. Шевченка, 53
Перейти до аукціону на сайті
  • Інформація
  • Опис
  • Документи
Дата оголошення пропозиції:
24 квітня 2023
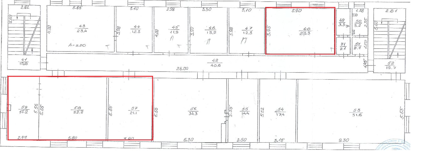
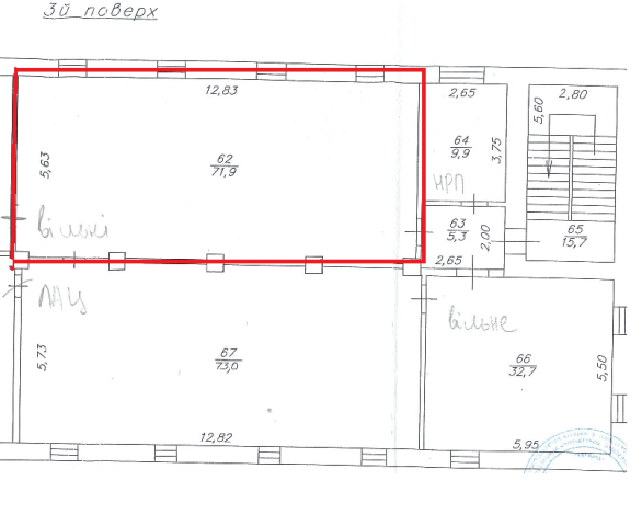
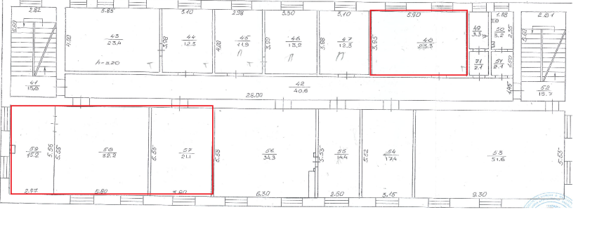
Площа:
163.70 м2
Тип об’єкта:
Приміщення
Тип аукціону:
Англійський аукціон
Статус аукціону:
Аукціон не відбувся
Тип угоди:
Оренда
Розмір мінімального кроку:
100.00 ₴
Розмір гарантійного внеску:
1 029.35 ₴
Початок прийому пропозицій:
24.04.2023 14:34:19
Завершення прийому пропозицій:
24.05.2023 20:00:00
Проведення аукціону:
25.05.2023 11:00:00
Лот:
CLE001-UA-20230424-26481
№ лоту (УТК):
UTK011122_03P
Лот виставляється на торги (раз):
6
Стислий опис майна:
Пропонуються до оренди приміщення 2-го та 3-го поверху площею 163,7 кв.м. Будівля знаходиться в центрі міста, розвинена інфраструктура, поряд відділення Укрпошти та Ощадбанку, магазини та адміністративні приміщення. Вхід в приміщення спільний. Територія огороджена та частково впорядкована. Потребує реконструкції системи електроживлення. Характеристики: Кількість поверхів – 3; Загальна площа – 1149,3 кв.м.; Площа, запропонована до оренди – 163,7 кв.м.; Земельна ділянка - площа 0,1345 га.(договір оренди)
Адреса місцезнаходження майна:
Україна, Рівненська обл., м. Дубровиця, вул. Шевченка, 53
Схожі пропозиції
17.03.2023
Рівненська обл., Вараський р-н. смт. Зарічне, вул. Центральна, 6а. Оренда – приміщення 2-го поверху площею 68,4 кв.м. (В)
1 280.45 грн
18.72 грн / м2
Приміщення
Рівненська обл., Вараський р-н. смт. Зарічне, вул. Центральна, 6а. Оренда – приміщення 2-го поверху площею 68,4 кв.м. (В)
Україна, Рівненська обл., Зарічне, вулиця Центральна, 6а
14.06.2023
Рівненська обл., Вараський р-н., с. Довговоля, вул. Грушевського, 9/2а. Оренда – нежитлові приміщення площею 33,4 кв.м. (В)
579.82 грн
17.36 грн / м2
Приміщення
Рівненська обл., Вараський р-н., с. Довговоля, вул. Грушевського, 9/2а. Оренда – нежитлові приміщення площею 33,4 кв.м. (В)
Україна, Рівненська обл., Вараський р-н., с. Довговоля, вул. Грушевського, 9/2а
Рівненська обл., м. Рівне вул. В. Чорновола, 1 Оренда - приміщення 3-го поверху 35,9 кв.м.
2 429.71 грн
67.68 грн / м2
Приміщення
Рівненська обл., м. Рівне вул. В. Чорновола, 1 Оренда - приміщення 3-го поверху 35,9 кв.м.
Україна, Рівненська обл., м. Рівне, вул. В. Чорновола, 1
15.09.2023
Рівненська обл., Рівненський р-н, с. Дорогобуж, вул. Гудкова, 84. Оренда – виробничі приміщення площею 19,4 кв.м. (В)
252.20 грн
13.00 грн / м2
Приміщення
Рівненська обл., Рівненський р-н, с. Дорогобуж, вул. Гудкова, 84. Оренда – виробничі приміщення площею 19,4 кв.м. (В)
Україна, Рівненська обл., Рівненський р-н, с. Дорогобуж, вул. Гудкова, 84