Дніпропетровська обл., м. Жовті Води, вул. Свободи, 39. Оренда – приміщення 3-го поверху площею 104,40 кв.м. (В)

1 566.00 грн
15.00 грн / м2
Україна, Дніпропетровська обл., м. Жовті Води, вул. Свободи, 39
Перейти до аукціону на сайті
  • Інформація
  • Опис
  • Документи
Дата оголошення пропозиції:
11 травня 2023
Площа:
104.40 м2
Тип об’єкта:
Приміщення
Тип аукціону:
Англійський аукціон
Статус аукціону:
Аукціон не відбувся
Тип угоди:
Оренда
Розмір мінімального кроку:
50.00 ₴
Розмір гарантійного внеску:
939.60 ₴
Початок прийому пропозицій:
11.05.2023 10:40:06
Завершення прийому пропозицій:
14.06.2023 20:00:00
Проведення аукціону:
15.06.2023 11:00:00
Лот:
CLE001-UA-20230511-26921
№ лоту (УТК):
UTK181122_02P
Лот виставляється на торги (раз):
6
Стислий опис майна:
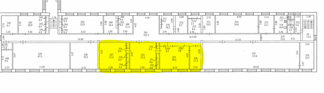
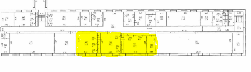
Пропонується до оренди приміщення 3-го поверху площею 104,40 кв.м. Розташування – 3-поверхова будівля (літ.А-Б-В, приміщ.№ 327, 333, 337, 326), знаходиться в центральному районі міста. Поруч знаходяться відділення банку, високий автомобільний і пішохідний потоки. Стан приміщення задовільний, підходить для офісу, Ідеальне місце під розвиток будь-якого бізнесу. Можливість передачі приміщень в суборенду. Характеристики: Кількість поверхів – 3; Загальна площа – 3622,50 кв.м.; Площа запропонована до оренди – 104,40 кв.м.; Електропостачання, водопостачання, теплопостачання-централізоване; Земельна ділянка – 0, 603 га (договір оренди)
Адреса місцезнаходження майна:
Україна, Дніпропетровська обл., м. Жовті Води, вул. Свободи, 39
Схожі пропозиції
18.10.2024
Дніпропетровська обл., м. Вільногірськ, бул. Миру, 12. Оренда – приміщення 1-го поверху площею 57,80 кв.м.(В)
1 156.00 грн
20.00 грн / м2
Приміщення
Дніпропетровська обл., м. Вільногірськ, бул. Миру, 12. Оренда – приміщення 1-го поверху площею 57,80 кв.м.(В)
Україна, Дніпропетровська обл., м. Вільногірськ, бул. Миру, 12
25.07.2023
ДОВГОСТРОКОВА ОРЕНДА! Дніпропетровська обл., м. Дніпро, вул. Героїв, 14. Оренда – приміщення 4-го поверху площею 483,90 кв.м. (В)
38 252.30 грн
79.05 грн / м2
Приміщення
ДОВГОСТРОКОВА ОРЕНДА! Дніпропетровська обл., м. Дніпро, вул. Героїв, 14. Оренда – приміщення 4-го поверху площею 483,90 кв.м. (В)
Україна, Дніпропетровська обл., м. Дніпро, вул. Героїв, 14
26.10.2022
Дніпропетровська обл., м. Кам`янське, просп. Свободи, 44. Оренда – приміщення 1-го поверху площею 198,50 кв.м. (В)
6 312.30 грн
31.80 грн / м2
Приміщення
Дніпропетровська обл., м. Кам`янське, просп. Свободи, 44. Оренда – приміщення 1-го поверху площею 198,50 кв.м. (В)
Україна, Дніпропетровська обл., м. Кам`янське, просп. Свободи, 44
10.09.2024
Дніпропетровська обл, смт. Петриківка, пр. Петра Калнишевського, 52. Оренда – приміщення 2-го поверху загальною площею 158,80 кв.м (В)
2 080.28 грн
13.10 грн / м2
Приміщення
Дніпропетровська обл, смт. Петриківка, пр. Петра Калнишевського, 52. Оренда – приміщення 2-го поверху загальною площею 158,80 кв.м (В)
Україна, Дніпропетровська обл., смт. Петриківка, пр. Петра Калнишевського, 52