Рівненська обл., м. Рівне, вул. В.Чорновола, 1. Оренда – приміщення 1-го та 2-го поверху площею 147,8 кв.м. (В)

17 563.07 грн
118.83 грн / м2
Україна, Рівненська обл., м. Рівне, вул. В.Чорновола, 1
Перейти до аукціону на сайті
  • Інформація
  • Опис
  • Документи
Дата оголошення пропозиції:
25 травня 2023
Площа:
147.80 м2
Тип об’єкта:
Приміщення
Тип аукціону:
Англійський аукціон
Статус аукціону:
Аукціон не відбувся
Тип угоди:
Оренда
Розмір мінімального кроку:
500.00 ₴
Розмір гарантійного внеску:
10 537.84 ₴
Початок прийому пропозицій:
25.05.2023 11:41:07
Завершення прийому пропозицій:
27.06.2023 20:00:00
Проведення аукціону:
28.06.2023 11:25:00
Лот:
CLE001-UA-20230525-98272
№ лоту (УТК):
UTK200423_13P
Лот виставляється на торги (раз):
2
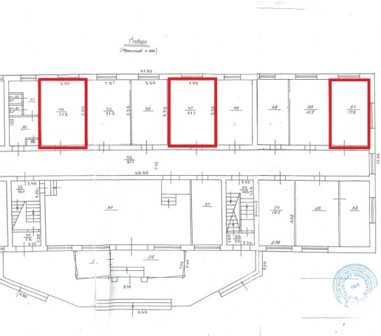
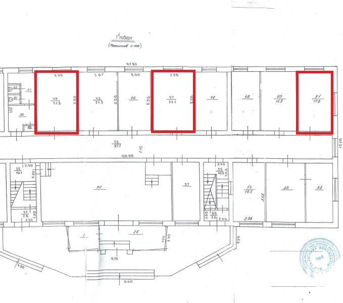
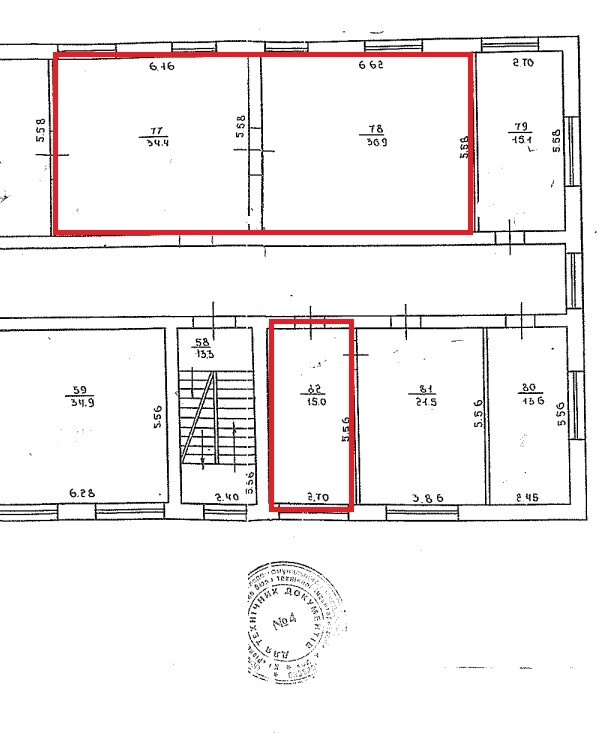
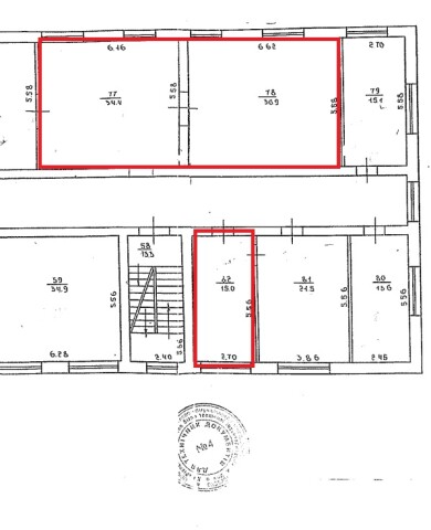
Стислий опис майна:
Пропонується до оренди приміщення 1-го та 2-го поверху загальною площею 147,8 кв.м. Будівля знаходиться в центральній частині міста. Розвинена інфраструктура, високі автомобільний та пішохідний потоки. Поряд центральна площа та міський парк. Приміщення потребують реконструкції електромережі . Характеристики: Кількість поверхів – 5; Загальна площа – 2032,6 кв.м. ; Площа, запропонована до оренди – загальною площею 147,8 кв.м; Опалення – централізоване; Земельна ділянка - площа 0,1652 га. (договір оренди)
Адреса місцезнаходження майна:
Україна, Рівненська обл., м. Рівне, вул. В.Чорновола, 1
Схожі пропозиції
21.10.2025
Рівненська обл., Рівненський р-н, с. Річиця, вул. Центральна, 5. Оренда – приміщення 1-го поверху площею 19,30 м.кв. (В)
501.80 грн
26.00 грн / м2
Приміщення
Рівненська обл., Рівненський р-н, с. Річиця, вул. Центральна, 5. Оренда – приміщення 1-го поверху площею 19,30 м.кв. (В)
Україна, Рівненська обл., Рівненський р-н, с. Річиця, вул. Центральна, 5
26.08.2025
м. Острог, проспект Незалежності, 7. Оренда – приміщення 3-го поверху площею 22,40 кв. м
610.18 грн
27.24 грн / м2
Приміщення
м. Острог, проспект Незалежності, 7. Оренда – приміщення 3-го поверху площею 22,40 кв. м
Україна, Рівненська обл., Острог, 35800, Рівненська обл., м. Острог, проспект. Незалежності, 7
07.12.2023
Рівненська обл., Дубенський р-н. с. Верба вул. Грушевського ,4 . Оренда – виробничі приміщення площею 146,7 кв.м. (В)
2 287.05 грн
15.59 грн / м2
Приміщення
Рівненська обл., Дубенський р-н. с. Верба вул. Грушевського ,4 . Оренда – виробничі приміщення площею 146,7 кв.м. (В)
Україна, Рівненська обл., Дубенський р-н. с. Верба, вул. Грушевського ,4
21.06.2023
Рівненська обл., Рівненський р-н., м. Здолбунів, вул. Б.Хмельницького, 7. Оренда – приміщення підвалу, 2 поверху та надвірної будівлі загальною площею 661,4 кв.м. (В)
8 459.31 грн
12.79 грн / м2
Приміщення
Рівненська обл., Рівненський р-н., м. Здолбунів, вул. Б.Хмельницького, 7. Оренда – приміщення підвалу, 2 поверху та надвірної будівлі загальною площею 661,4 кв.м. (В)
Україна, Рівненська обл., Рівненський р-н., м. Здолбунів, вул. Б.Хмельницького, 7