Дніпропетровська обл., м. Жовті Води, вул. Свободи, 39. Оренда – приміщення 3-го поверху площею 34,1 кв.м. (В)

854.75 грн
25.07 грн / м2
Україна, Дніпропетровська обл., Жовті Води, бульвар Свободи, 39
Перейти до аукціону на сайті
  • Інформація
  • Опис
  • Документи
Дата оголошення пропозиції:
26 травня 2023
Площа:
34.10 м2
Тип об’єкта:
Приміщення
Тип аукціону:
Англійський аукціон
Статус аукціону:
Аукціон не відбувся
Тип угоди:
Оренда
Розмір мінімального кроку:
15.00 ₴
Розмір гарантійного внеску:
512.85 ₴
Початок прийому пропозицій:
26.05.2023 07:06:33
Завершення прийому пропозицій:
28.06.2023 20:00:00
Проведення аукціону:
29.06.2023 12:45:00
Лот:
CLE001-UA-20230526-53054
№ лоту (УТК):
UTK011122_4T
Лот виставляється на торги (раз):
7
Стислий опис майна:
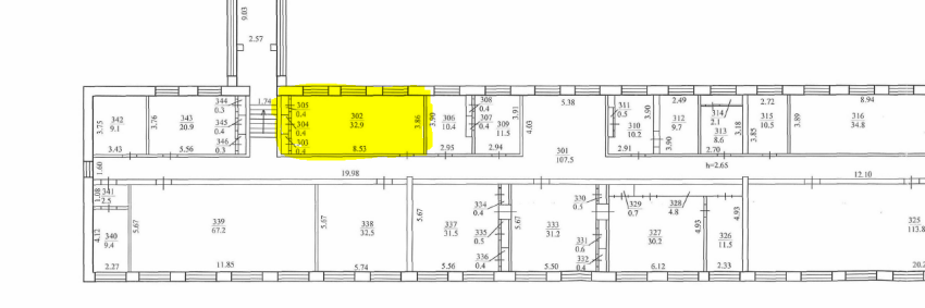
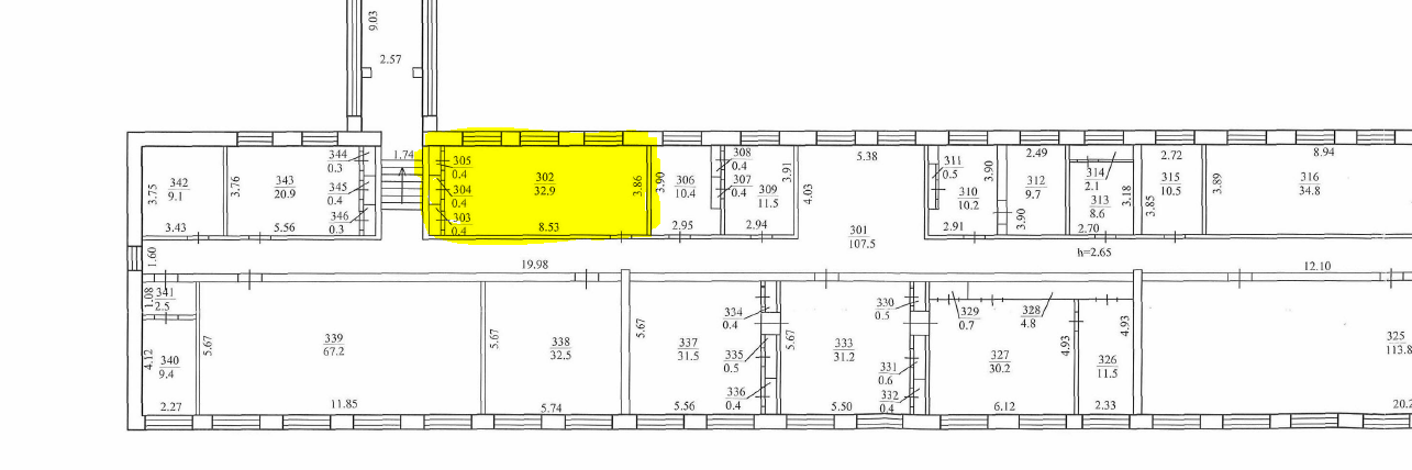
Пропонується до оренди приміщення 3-го поверху площею 34,1 кв.м. Розташування – 3-поверхова будівля (літ.А-Б-В, приміщ.№302 - 32,9 кв.м та вбудовані шафи №№303-305 площею 1,2 кв.м), знаходиться в центральному районі міста. Поруч знаходяться відділення банку, високий автомобільний і пішохідний потоки. Стан приміщення задовільний, підходить для офісу, Ідеальне місце під розвиток будь-якого бізнесу. Можливість передачі приміщень в суборенду. Характеристики: • Кількість поверхів – 3 • Загальна площа – 3622,5 кв.м. • Площа запропонована до оренди – 34,1 кв.м. • Електропостачання, водопостачання, теплопостачанняцентралізоване; • Земельна ділянка – 0, 603 га (договір оренди)
Адреса місцезнаходження майна:
Україна, Дніпропетровська обл., Жовті Води, бульвар Свободи, 39
Схожі пропозиції
09.09.2022
Дніпропетровська обл., м. Дніпро, вул. Чернишевського, 27. Оренда – приміщення 1-го поверху площею 12,60 кв.м. (В)
1 222.58 грн
97.03 грн / м2
Приміщення
Дніпропетровська обл., м. Дніпро, вул. Чернишевського, 27. Оренда – приміщення 1-го поверху площею 12,60 кв.м. (В)
Україна, Дніпропетровська обл., м. Дніпро, вул. Чернишевського, 27
09.09.2022
Дніпропетровська обл., смт. Слобожанське, вул. Теплична, 24. Оренда – приміщення будівлі лабораторії (літ.Б), площею 19,40 кв.м. (В)
897.06 грн
46.24 грн / м2
Приміщення
Дніпропетровська обл., смт. Слобожанське, вул. Теплична, 24. Оренда – приміщення будівлі лабораторії (літ.Б), площею 19,40 кв.м. (В)
Україна, Дніпропетровська обл., смт. Слобожанське, вул. Теплична, 24
18.10.2024
Дніпропетровська обл., м. Вільногірськ, бул. Миру, 12. Оренда – приміщення 1-го поверху площею 57,80 кв.м.(В)
1 156.00 грн
20.00 грн / м2
Приміщення
Дніпропетровська обл., м. Вільногірськ, бул. Миру, 12. Оренда – приміщення 1-го поверху площею 57,80 кв.м.(В)
Україна, Дніпропетровська обл., м. Вільногірськ, бул. Миру, 12
25.06.2024
Дніпропетровська обл., м. Дніпро, вул. Героїв, 14. Оренда – приміщення 2-го поверху площею 33,70 кв.м. (В)
2 193.87 грн
65.10 грн / м2
Приміщення
Дніпропетровська обл., м. Дніпро, вул. Героїв, 14. Оренда – приміщення 2-го поверху площею 33,70 кв.м. (В)
Україна, Дніпропетровська обл., м. Дніпро, вул. Героїв, 14
Переглянуті пропозиції
30.05.2023
Кіровоградська обл., м. Долинська, вул. Волохінська, 1А. Оренда – комплекс будівель площею 275,50 кв.м.(В)
5 510.00 грн
20.00 грн / м2
Будівля
Кіровоградська обл., м. Долинська, вул. Волохінська, 1А. Оренда – комплекс будівель площею 275,50 кв.м.(В)
Україна, Кіровоградська обл., м. Долинська, вул. Волохінська, 1А
28.10.2025
Рівненська обл., Дубенський р-н. смт. Демидівка, вул. Миру, 28 Оренда – приміщення підвалу площею 84,90 м. кв. (В)
2 484.17 грн
29.26 грн / м2
Приміщення
Рівненська обл., Дубенський р-н. смт. Демидівка, вул. Миру, 28 Оренда – приміщення підвалу площею 84,90 м. кв. (В)
Україна, Рівненська обл., Демидівка, вулиця Миру, 28
15.10.2025
Полтавська обл., Полтавський р-н, cмт. Чутове, вул. Незалежності, 24. Оренда – приміщення 3-го поверху площею 30,60 кв.м. (В)
550.80 грн
18.00 грн / м2
Приміщення
Полтавська обл., Полтавський р-н, cмт. Чутове, вул. Незалежності, 24. Оренда – приміщення 3-го поверху площею 30,60 кв.м. (В)
Україна, Полтавська обл., Полтавський р-н, cмт. Чутове, вул. Незалежності, 24
19.09.2023
м. Київ, бульвар Бучми Амвросія, 5. Оренда – приміщення 3-го та 4-го поверхів технічної будівлі АТС-550 (літ. «Б»), площею 1006,83 кв. м. (В)