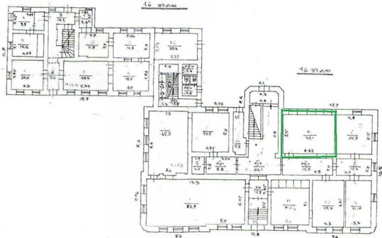
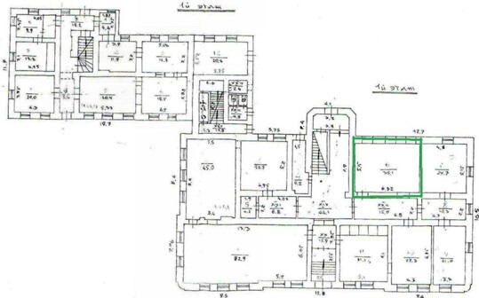
Львівська обл., м. Золочів, вул. Пушкіна, 9. Оренда – приміщення 1-го поверху площею 35,1 кв.м. (В)

972.97 грн
27.72 грн / м2
Україна, Львівська обл., Золочів, вулиця Пушкіна, 9
Перейти до аукціону на сайті
  • Інформація
  • Опис
  • Документи
Дата оголошення пропозиції:
16 червня 2023
Площа:
35.10 м2
Тип об’єкта:
Приміщення
Тип аукціону:
Англійський аукціон
Статус аукціону:
Аукціон не відбувся
Тип угоди:
Оренда
Розмір мінімального кроку:
50.00 ₴
Розмір гарантійного внеску:
583.78 ₴
Початок прийому пропозицій:
16.06.2023 10:10:46
Завершення прийому пропозицій:
18.07.2023 20:00:00
Проведення аукціону:
19.07.2023 11:00:00
Лот:
CLE001-UA-20230616-46547
№ лоту (УТК):
UTK291122_01Т
Лот виставляється на торги (раз):
6
Стислий опис майна:
Пропонується до оренди приміщення 1-го поверху площею 35,1 кв.м. Будівля розташована в центрі міста, зручна транспортна розв’зка. Характеристики • Кількість поверхів – 2 • Електропостачання • Опалення • Земельна ділянка – 0,1874 га (договір орнеди)
Адреса місцезнаходження майна:
Україна, Львівська обл., Золочів, вулиця Пушкіна, 9
Схожі пропозиції
Львівська обл., м. Жовква, вул. Воїнів УПА, 3. Оренда – приміщення 2-го поверху площею 163,9 кв. м (В)
6 097.08 грн
37.20 грн / м2
Приміщення
Львівська обл., м. Жовква, вул. Воїнів УПА, 3. Оренда – приміщення 2-го поверху площею 163,9 кв. м (В)
Україна, Львівська обл., м. Жовква, вул. Воїнів УПА, 3
08.10.2025
Львівська обл., м. Львів, вул. Берестяна, 2. Оренда – приміщення 2-го поверху площею 343,30 кв. м (В)
20 598.00 грн
60.00 грн / м2
Приміщення
Львівська обл., м. Львів, вул. Берестяна, 2. Оренда – приміщення 2-го поверху площею 343,30 кв. м (В)
Україна, Львівська обл., м. Львів, вул. Берестяна, 2
28.09.2023
Львівська обл., м. Новий Розділ, пр. Шевченка, 30. Оренда – приміщення 2-го поверху, площею 17,80 кв. м. (В)
356.00 грн
20.00 грн / м2
Приміщення
Львівська обл., м. Новий Розділ, пр. Шевченка, 30. Оренда – приміщення 2-го поверху, площею 17,80 кв. м. (В)
Україна, Львівська обл., м. Новий Розділ, пр. Шевченка, 30
24.11.2023
Львівська обл., Радехівський р-н., с. Барилів, вул. Б. Хмельницького, 1. Оренда – приміщення 1-го поверху площею 14,70 кв.м. (В)
294.00 грн
20.00 грн / м2
Приміщення
Львівська обл., Радехівський р-н., с. Барилів, вул. Б. Хмельницького, 1. Оренда – приміщення 1-го поверху площею 14,70 кв.м. (В)
Україна, Львівська обл., Радехівський р-н., с. Барилів, вул. Б. Хмельницького, 1
Переглянуті пропозиції
26.11.2025
Харківська обл., м. Харків, вул. Старошишківська, 5-А. Оренда – приміщення на 1-му поверсі площею 35,90 кв.м. (В)
1 077.00 грн
30.00 грн / м2
Приміщення
Харківська обл., м. Харків, вул. Старошишківська, 5-А. Оренда – приміщення на 1-му поверсі площею 35,90 кв.м. (В)
Україна, Харківська обл., м. Харків, вул. Старошишківська, 5-А