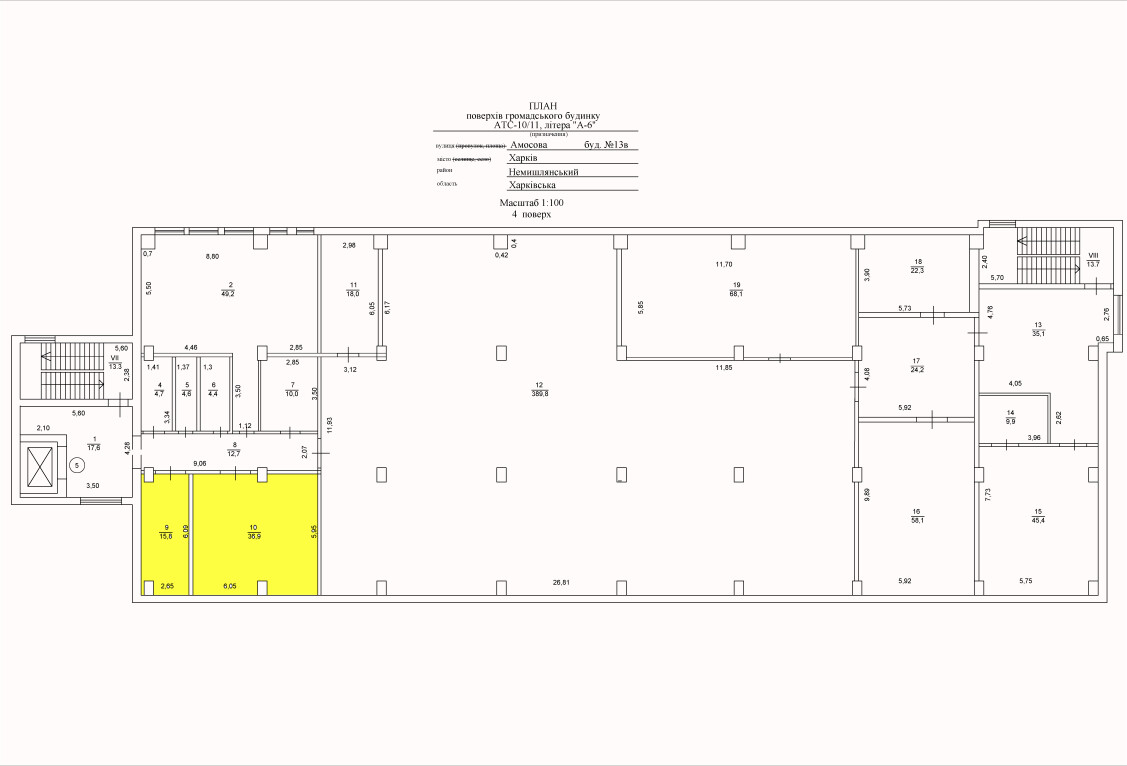
Харківська обл., м. Харків, вул. Амосова, 13в. Оренда – приміщення 4-го поверху площею 52,7 кв.м (П)

4 572.78 грн
86.77 грн / м2
Україна, Харківська обл., м. Харків, вул. Амосова,13 в
Перейти до аукціону на сайті
  • Інформація
  • Опис
  • Документи
Дата оголошення пропозиції:
29 червня 2023
Площа:
52.70 м2
Тип об’єкта:
Приміщення
Тип аукціону:
Англійський аукціон
Статус аукціону:
Аукціон не відбувся
Тип угоди:
Оренда
Розмір мінімального кроку:
200.00 ₴
Розмір гарантійного внеску:
2 743.67 ₴
Початок прийому пропозицій:
29.06.2023 13:26:24
Завершення прийому пропозицій:
30.07.2023 20:00:00
Проведення аукціону:
31.07.2023 12:20:00
Лот:
CLE001-UA-20230629-19437
№ лоту (УТК):
UTK290623_12P
Лот виставляється на торги (раз):
1
Стислий опис майна:
Пропонується до оренди приміщення 4-го поверху площею 52,7 кв.м. Будівля в спальному районі міста Харкова. 10 хв до зупинки транспорту. Характеристики: Кількість поверхів – 5; Загальна площа – 4838,00 кв.м_ Площа запропонована до оренди -52,7 кв.м, 1 парко-місце Дозволена потужність – 5 кВт Теплопостачання-централізоване Земельна ділянка – 0,4825 га
Адреса місцезнаходження майна:
Україна, Харківська обл., м. Харків, вул. Амосова,13 в
Схожі пропозиції
27.09.2024
м.Харків, Салтівське шосе,2. Оренда – приміщення 1-го поверху, площею 41,00 кв.м (В)
2 204.98 грн
53.78 грн / м2
Приміщення
м.Харків, Салтівське шосе,2. Оренда – приміщення 1-го поверху, площею 41,00 кв.м (В)
Україна, Харківська обл., м. Харків, Салтівське шосе,2
21.08.2024
Харківська обл., Харківський р-н, смт. Вільшани, вул. Центральна, 18 . Оренда – приміщення 1-го поверху площею 153,40 кв.м. (В)
1 567.75 грн
10.22 грн / м2
Приміщення
Харківська обл., Харківський р-н, смт. Вільшани, вул. Центральна, 18 . Оренда – приміщення 1-го поверху площею 153,40 кв.м. (В)
Україна, Харківська обл., Харківський р-н, смт. Вільшани, вул. Центральна, 18
04.11.2025
м. Харків, пр-т Олександрівський, 83. Оренда – приміщення 1-го поверху площею 26,1 кв.м. (В)
783.00 грн
30.00 грн / м2
Приміщення
м. Харків, пр-т Олександрівський, 83. Оренда – приміщення 1-го поверху площею 26,1 кв.м. (В)
Україна, Харківська обл., Харків, проспект Олександрівський, 83
12.07.2024
ДОВГОСТРОКОВА ОРЕНДА! Харківська обл., м. Харків, Нетіченська набережна, 8.Оренда – приміщення на 9-му поверсі загальною площею 513,50 кв.м. (В)
24 339.90 грн
47.40 грн / м2
Приміщення
ДОВГОСТРОКОВА ОРЕНДА! Харківська обл., м. Харків, Нетіченська набережна, 8.Оренда – приміщення на 9-му поверсі загальною площею 513,50 кв.м. (В)
Україна, Харківська обл., м. Харків, Нетіченська набережна, 8
Переглянуті пропозиції
26.11.2024
Дніпропетровська область, м. Дніпро, вул. Кармалюка, 6а. Оренда – одноповерхова промислова будівля площею 219,70 кв.м. (В)
12 920.56 грн
58.81 грн / м2
Будівля
Дніпропетровська область, м. Дніпро, вул. Кармалюка, 6а. Оренда – одноповерхова промислова будівля площею 219,70 кв.м. (В)
Україна, Дніпропетровська обл., м. Дніпро, вул. Кармалюка, 6а
26.11.2024
Дніпропетровська обл., м. Дніпро, вул. Князя Ярослава Мудрого, 3. Оренда – приміщення 5-го поверху площею 23,10 кв.м. (В)
2 763.91 грн
119.65 грн / м2
Приміщення
Дніпропетровська обл., м. Дніпро, вул. Князя Ярослава Мудрого, 3. Оренда – приміщення 5-го поверху площею 23,10 кв.м. (В)
Україна, Дніпропетровська обл., м. Дніпро, вул. Князя Ярослава Мудрого, 3
06.12.2023
ДОВОСТРОКОВА ОРЕНДА! Львівська обл., м. Львів, проспект Червоної Калини,5. Оренда – комплекс будівель площею 2697,60 кв.м. (П)
391 691.52 грн
145.20 грн / м2
Будівля
ДОВОСТРОКОВА ОРЕНДА! Львівська обл., м. Львів, проспект Червоної Калини,5. Оренда – комплекс будівель площею 2697,60 кв.м. (П)
Україна, Львівська обл., м. Львів, проспект Червоної Калини,5
19.08.2022
Закарпатська обл., м. Ужгород, пл. Кирила та Мефодія, 4. Оренда – приміщення 1-го поверху площею 70,0 кв. м (В)
15 331.40 грн
219.02 грн / м2
Приміщення
Закарпатська обл., м. Ужгород, пл. Кирила та Мефодія, 4. Оренда – приміщення 1-го поверху площею 70,0 кв. м (В)
Україна, Закарпатська обл., Ужгород, площа Кирила і Мефодія, 4