Рівненська обл., Рівненський р-н, с. Здовбиця, вул. Шосова, 107. Оренда – нежитлові приміщення площею 80,3 м. кв. (В)

1 388.39 грн
17.29 грн / м2
Україна, Рівненська обл., Рівненський р-н, с. Здовбиця, вул. Шосова, 107
Перейти до аукціону на сайті
  • Інформація
  • Опис
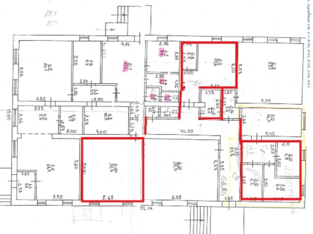
  • Документи
Дата оголошення пропозиції:
03 липня 2023
Площа:
80.30 м2
Тип об’єкта:
Приміщення
Тип аукціону:
Англійський аукціон
Статус аукціону:
Аукціон не відбувся
Тип угоди:
Оренда
Розмір мінімального кроку:
100.00 ₴
Розмір гарантійного внеску:
833.03 ₴
Початок прийому пропозицій:
03.07.2023 10:40:20
Завершення прийому пропозицій:
01.08.2023 20:00:00
Проведення аукціону:
02.08.2023 11:15:00
Лот:
CLE001-UA-20230703-76231
№ лоту (УТК):
UTK260821_04P
Лот виставляється на торги (раз):
10
Стислий опис майна:
Пропонується до оренди нежитлові приміщення 1го поверху площею 80,3 м. кв. Будівля знаходиться в центральній частині села., досить розвинена інфраструктура. Розглядається можливість облаштування окремого входу. Приміщення потребують реконструкції системи електропостачання. Опалення відсутнє. Характеристики: Кількість поверхів – 1 ; Загальна площа – 246,1 м. кв.; Площа, запропонована до оренди – 80,3 м.кв.; Земельна ділянка - площа 0,1304 га.
Адреса місцезнаходження майна:
Україна, Рівненська обл., Рівненський р-н, с. Здовбиця, вул. Шосова, 107
Схожі пропозиції
14.01.2022
Рівненська обл., м. Рівне, вул. Міцкевича, 2. Оренда – приміщення 2-го  поверху загальною площею 735,90 кв.м. (В)
43 815.49 грн
59.54 грн / м2
Приміщення
Рівненська обл., м. Рівне, вул. Міцкевича, 2. Оренда – приміщення 2-го поверху загальною площею 735,90 кв.м. (В)
Україна, Рівненська обл., м. Рівне, вул. Міцкевича, 2
26.10.2022
Рівненська обл., Рівненський р-н., с. Балашівка, вул. Незалежності, 52. Оренда – нежитлове приміщення площею 12,9 кв.м. (В)
782.77 грн
60.68 грн / м2
Приміщення
Рівненська обл., Рівненський р-н., с. Балашівка, вул. Незалежності, 52. Оренда – нежитлове приміщення площею 12,9 кв.м. (В)
Україна, Рівненська обл., Балашівка, вул. Незалежності, 52
21.06.2024
Рівненська обл., Вараський р-н, с. Великі Телковичі, вул. Щорса, 15;   Оренда – приміщення будівлі площею 47,3 кв.м. (В)
283.80 грн
6.00 грн / м2
Приміщення
Рівненська обл., Вараський р-н, с. Великі Телковичі, вул. Щорса, 15; Оренда – приміщення будівлі площею 47,3 кв.м. (В)
Україна, Рівненська обл., Великі Телковичі, вул. Щорса, 15
11.01.2023
Рівненська обл., м. Дубровиця, вул. Шевченка, 53. Оренда – приміщення 2-го та 3-го поверху площею 163,7 кв.м. (В)
3 645.60 грн
22.27 грн / м2
Приміщення
Рівненська обл., м. Дубровиця, вул. Шевченка, 53. Оренда – приміщення 2-го та 3-го поверху площею 163,7 кв.м. (В)
Україна, Рівненська обл., м. Дубровиця, вул. Шевченка, 53
Переглянуті пропозиції
02.03.2023
Чернігівська обл., м. Корюківка, вул. Шевченка, 72 Оренда – приміщення 2-го поверху площею 59,7 кв.м (В)
2 310.39 грн
38.70 грн / м2
Приміщення
Чернігівська обл., м. Корюківка, вул. Шевченка, 72 Оренда – приміщення 2-го поверху площею 59,7 кв.м (В)
Україна, Чернігівська обл., м. Корюківка, вулиця Шевченка, 72