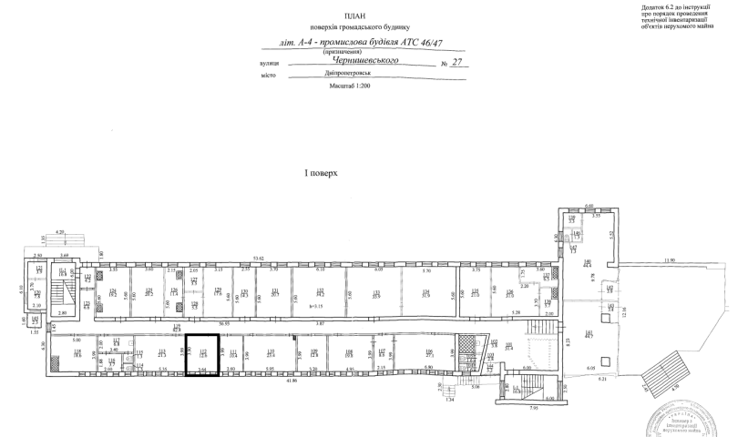
Дніпропетровська обл., м. Дніпро, вул. Чернишевського, 27. Оренда – приміщення 1-го поверху площею 12,60 кв.м. (В)

582.12 грн
46.20 грн / м2
Україна, Дніпропетровська обл., м. Дніпро, вул. Чернишевського, 27
Перейти до аукціону на сайті
  • Інформація
  • Опис
  • Документи
Дата оголошення пропозиції:
06 липня 2023
Площа:
12.60 м2
Тип об’єкта:
Приміщення
Тип аукціону:
Англійський аукціон
Статус аукціону:
Аукціон не відбувся
Тип угоди:
Оренда
Розмір мінімального кроку:
90.00 ₴
Розмір гарантійного внеску:
349.27 ₴
Початок прийому пропозицій:
06.07.2023 10:30:53
Завершення прийому пропозицій:
07.08.2023 20:00:00
Проведення аукціону:
08.08.2023 12:50:00
Лот:
CLE001-UA-20230706-76882
№ лоту (УТК):
UTK010722_05P
Лот виставляється на торги (раз):
10
Стислий опис майна:
Пропонується до оренди приміщення 1-го поверху площею 12,60 кв.м. Розташування - будівля знаходиться в Соборному районі міста. Поруч знаходяться відділення банку, супермаркети, учбові заклади, зупинка громадського транспорту, високий автомобільний і пішохідний потоки. Стан приміщення задовільний, підходить для офісу, студії, Ідеальне місце під розвиток будь-якого бізнесу. Можливість передачі приміщень в суборенду. Характеристики: - Кількість поверхів – 4 - Загальна площа – 4 202,20 кв.м. - Площа запропонована до оренди – 12,60 кв.м. - Електропостачання, водопостачання, теплопостачання, вивіз сміття, охорона та обслуговування пожежної сигналізації, прибирання загальних місць та території; - Земельна ділянка – 0, 358 га (договір оренди)
Адреса місцезнаходження майна:
Україна, Дніпропетровська обл., м. Дніпро, вул. Чернишевського, 27
Схожі пропозиції
06.10.2023
Дніпропетровська обл., м. Дніпро, вул. Панікахи, 27. Оренда – приміщення 1-го поверху площею 92,7 кв.м.(В)
8 520.06 грн
91.91 грн / м2
Приміщення
Дніпропетровська обл., м. Дніпро, вул. Панікахи, 27. Оренда – приміщення 1-го поверху площею 92,7 кв.м.(В)
Україна, Дніпропетровська обл., Дніпро, вулиця Панікахи, 27
21.11.2025
Дніпропетровська обл., м. Кам’янське, просп. Свободи, 44. Оренда – приміщення 5-го поверху загальною площею 237,20 кв.м (В)
2 846.40 грн
12.00 грн / м2
Приміщення
Дніпропетровська обл., м. Кам’янське, просп. Свободи, 44. Оренда – приміщення 5-го поверху загальною площею 237,20 кв.м (В)
Україна, Дніпропетровська обл., м. Кам’янське, просп. Свободи, 44
23.06.2023
Дніпропетровська обл., м. Дніпро, вул. Князя Ярослава Мудрого, 3. Оренда – приміщення 5-го поверху площею 18,60 кв.м. (В)
1 283.40 грн
69.00 грн / м2
Приміщення
Дніпропетровська обл., м. Дніпро, вул. Князя Ярослава Мудрого, 3. Оренда – приміщення 5-го поверху площею 18,60 кв.м. (В)
Україна, Дніпропетровська обл., м. Дніпро, вул. Князя Ярослава Мудрого, 3
25.06.2024
Дніпропетровська обл., м. Кам’янське, пр. Героїв АТО, 1. Оренда – приміщення 3-го поверху площею 22,80 кв.м. (В)
273.60 грн
12.00 грн / м2
Приміщення
Дніпропетровська обл., м. Кам’янське, пр. Героїв АТО, 1. Оренда – приміщення 3-го поверху площею 22,80 кв.м. (В)
Україна, Дніпропетровська обл., м. Кам’янське, пр. Героїв АТО, 1
Переглянуті пропозиції
м. Київ, пр-т. Оболонський, 32-Б. частина приміщень 2-го поверху, площею 690,20 кв. м. (В)
78 938.17 грн
114.37 грн / м2
Приміщення
м. Київ, пр-т. Оболонський, 32-Б. частина приміщень 2-го поверху, площею 690,20 кв. м. (В)
Україна, м.Київ, Київ, пр-т. Оболонський, 32-Б