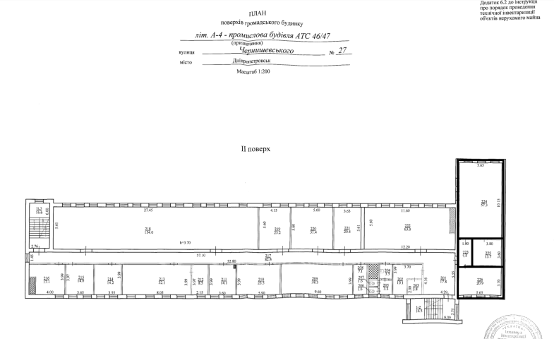
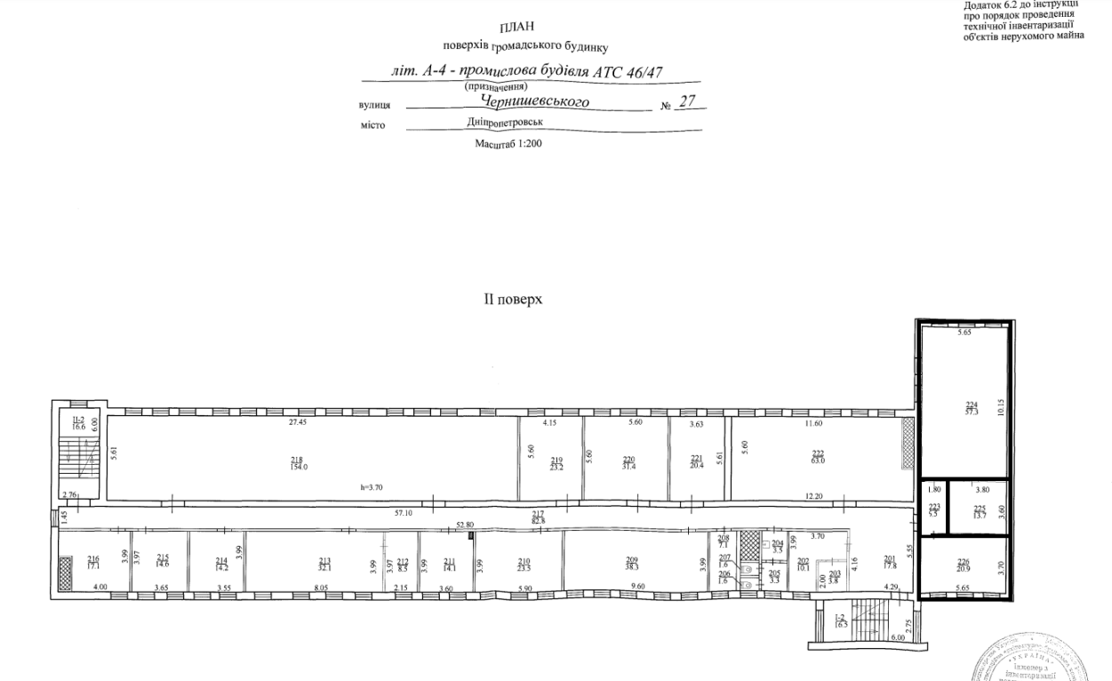
Дніпропетровська обл., м. Дніпро, вул. Чернишевського, 27. Оренда – приміщення 2-го поверху площею 98,40 кв.м. (В)

4 546.08 грн
46.20 грн / м2
Україна, Дніпропетровська обл., м. Дніпро, вул. Чернишевського, 27
Перейти до аукціону на сайті
  • Інформація
  • Опис
  • Документи
Дата оголошення пропозиції:
06 липня 2023
Площа:
98.40 м2
Тип об’єкта:
Приміщення
Тип аукціону:
Англійський аукціон
Статус аукціону:
Аукціон не відбувся
Тип угоди:
Оренда
Розмір мінімального кроку:
300.00 ₴
Розмір гарантійного внеску:
2 727.65 ₴
Початок прийому пропозицій:
06.07.2023 10:32:56
Завершення прийому пропозицій:
07.08.2023 20:00:00
Проведення аукціону:
08.08.2023 12:55:00
Лот:
CLE001-UA-20230706-23266
№ лоту (УТК):
UTK010722_06P
Лот виставляється на торги (раз):
10
Стислий опис майна:
Пропонується до оренди приміщення 2-го поверху площею 98,40 кв.м. Розташування - будівля знаходиться в Соборному районі міста. Поруч знаходяться відділення банку, супермаркети, учбові заклади, зупинка громадського транспорту, високий автомобільний і пішохідний потоки. Стан приміщення задовільний, підходить для офісу, студії, Ідеальне місце під розвиток будь-якого бізнесу. Можливість передачі приміщень в суборенду. Характеристики: - Кількість поверхів – 4 - Загальна площа – 4 202,20 кв.м. - Площа запропонована до оренди – 98,40 кв.м. - Електропостачання, водопостачання, теплопостачання, вивіз сміття, охорона та обслуговування пожежної сигналізації, прибирання загальних місць та території; - Земельна ділянка – 0, 358 га (договір оренди)
Адреса місцезнаходження майна:
Україна, Дніпропетровська обл., м. Дніпро, вул. Чернишевського, 27
Схожі пропозиції
Дніпропетровська обл., м. Кривий Ріг, вул. Головка Адмірала, 71. Оренда – приміщення 2-го поверху, площею 306,9 кв.м. (В)
11 232.54 грн
36.60 грн / м2
Приміщення
Дніпропетровська обл., м. Кривий Ріг, вул. Головка Адмірала, 71. Оренда – приміщення 2-го поверху, площею 306,9 кв.м. (В)
Україна, Дніпропетровська обл., м. Кривий Ріг, вул. Головка Адмірала, 71
26.11.2024
Дніпропетровська обл., м. Дніпро, вул. Князя Ярослава Мудрого, 3. Оренда – приміщення 5-го поверху площею 23,10 кв.м. (В)
2 763.91 грн
119.65 грн / м2
Приміщення
Дніпропетровська обл., м. Дніпро, вул. Князя Ярослава Мудрого, 3. Оренда – приміщення 5-го поверху площею 23,10 кв.м. (В)
Україна, Дніпропетровська обл., м. Дніпро, вул. Князя Ярослава Мудрого, 3
06.10.2023
Дніпропетровська обл., м. Верхньодніпровськ, вул. Титова, 8. Оренда – приміщення 3-го поверху, площею 169,4 кв.м. (В)
715.55 грн
4.22 грн / м2
Приміщення
Дніпропетровська обл., м. Верхньодніпровськ, вул. Титова, 8. Оренда – приміщення 3-го поверху, площею 169,4 кв.м. (В)
Україна, Дніпропетровська обл., Верхньодніпровськ, Тиха вулиця, 8