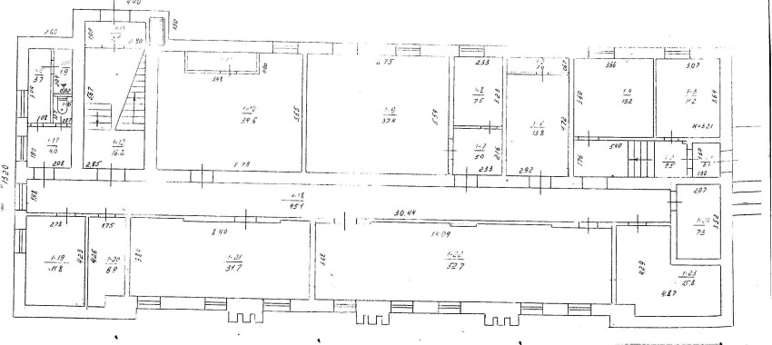
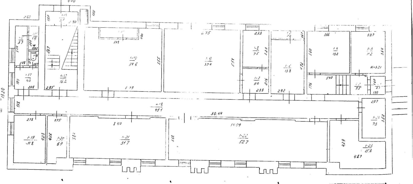
м.Чернігів, вул. Елеваторна, 6а. Оренда – приміщення 1го та 2го поверху площею 382,7 кв.м. (В)

18 139.98 грн
47.40 грн / м2
Україна, Чернігівська обл., Чернігів, Елеваторна вулиця, 6
Перейти до аукціону на сайті
  • Інформація
  • Опис
  • Документи
Дата оголошення пропозиції:
10 липня 2023
Площа:
382.70 м2
Тип об’єкта:
Приміщення
Тип аукціону:
Англійський аукціон
Статус аукціону:
Аукціон не відбувся
Тип угоди:
Оренда
Розмір мінімального кроку:
150.00 ₴
Розмір гарантійного внеску:
10 883.99 ₴
Початок прийому пропозицій:
10.07.2023 10:07:40
Завершення прийому пропозицій:
09.08.2023 20:00:00
Проведення аукціону:
10.08.2023 12:40:00
Лот:
CLE001-UA-20230710-81128
№ лоту (УТК):
UTK201022_10T
Лот виставляється на торги (раз):
8
Стислий опис майна:
Пропонується до оренди приміщення на 1 та 2 поверхах площею 382,7 кв.м.. Будівля знаходиться на околиці в промисловій частині міста. Характеристики: • кількість поверхів – 2 • Опалення- відсутне • земельна ділянка – 0,0740 га (договір оренди) • дозволена потужність 15 кВт • в будівлі пошкоджені вікна
Адреса місцезнаходження майна:
Україна, Чернігівська обл., Чернігів, Елеваторна вулиця, 6
Схожі пропозиції
10.10.2023
Чернігівська обл., м. Чернігів, вул. Рокоссовського, 33. Оренда – виробничі приміщення 4-го поверху площею 327,1 кв.м. (В)
15 504.54 грн
47.40 грн / м2
Приміщення
Чернігівська обл., м. Чернігів, вул. Рокоссовського, 33. Оренда – виробничі приміщення 4-го поверху площею 327,1 кв.м. (В)
Україна, Чернігівська обл., Чернігів, вулиця Рокоссовського, 33
31.07.2023
Чернігівська обл., м. Чернігів, проспект Миру, 28. Оренда – приміщення 1 поверху площею 11,4 кв.м. (В)
540.36 грн
47.40 грн / м2
Приміщення
Чернігівська обл., м. Чернігів, проспект Миру, 28. Оренда – приміщення 1 поверху площею 11,4 кв.м. (В)
Україна, Чернігівська обл., м. Чернігів, проспект Миру, 28
28.10.2025
ДОВГОСТРОКОВА ОРЕНДА! м. Ніжин, вул. Об'їжджа 106-А.Оренда – приміщення 2-го та 3-го поверхів площею 564,14 кв.м (В)
17 984.78 грн
31.88 грн / м2
Приміщення
ДОВГОСТРОКОВА ОРЕНДА! м. Ніжин, вул. Об'їжджа 106-А.Оренда – приміщення 2-го та 3-го поверхів площею 564,14 кв.м (В)
Україна, Чернігівська обл., м. Ніжин, вул. Об'їжджа 106-А
25.10.2022
Чернігівська обл., м. Городня, вул. 1 Травня, 48. Оренда – приміщення 2-го поверху площею 143,4 кв.м.(В)
613.75 грн
4.28 грн / м2
Приміщення
Чернігівська обл., м. Городня, вул. 1 Травня, 48. Оренда – приміщення 2-го поверху площею 143,4 кв.м.(В)
Україна, Чернігівська обл., м. Городня, вул. 1-го Травня, 48