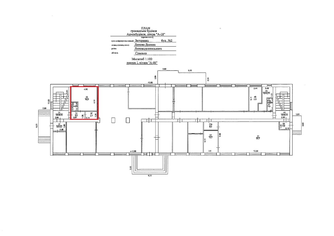
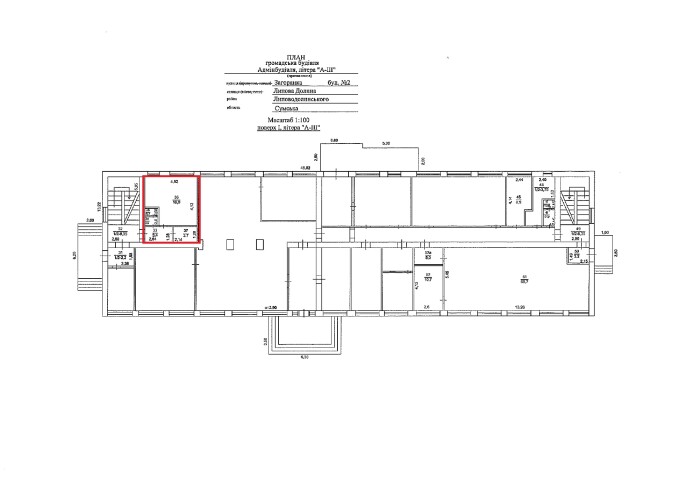
Сумська обл., Роменський р-н, смт. Липова Долина, вул. Загорянка, 2. Оренда – офісні приміщення 1-го поверху площею 25,7 кв.м. (В)

514.00 грн
20.00 грн / м2
Україна, Сумська обл., смт. Липова Долина, вулиця Загорянка, 2
Перейти до аукціону на сайті
  • Інформація
  • Опис
  • Документи
Дата оголошення пропозиції:
10 липня 2023
Площа:
25.70 м2
Тип об’єкта:
Офіс
Тип аукціону:
Англійський аукціон
Статус аукціону:
Аукціон не відбувся
Тип угоди:
Оренда
Розмір мінімального кроку:
50.00 ₴
Розмір гарантійного внеску:
308.40 ₴
Початок прийому пропозицій:
10.07.2023 09:18:37
Завершення прийому пропозицій:
09.08.2023 20:00:00
Проведення аукціону:
10.08.2023 11:35:00
Лот:
CLE001-UA-20230710-69749
№ лоту (УТК):
UTK120123_06Т
Лот виставляється на торги (раз):
6
Стислий опис майна:
Пропонуються до оренди офісні приміщення 1-го поверху площею 25,7 кв.м. Знаходиться в центральній частині міста. Окремий вхід з фасаду. Добра візуалізація з дороги. В даному приміщенні наявне лише електропостачання. Можливість передачі приміщень в суборенду. Доступ вільний 24/7. Характеристики: • Кількість поверхів – 3; • Загальна площа – 1241,75 кв.м.; • Площа запропонована до оренди - 25,7 кв.м.; • Електропостачання – наявне; • Опалення, водопостачання – відсутнє (наявний санвузол та вода загального користування на другому поверсі); • Земельна ділянка – 0,2541 га (договір оренди).
Адреса місцезнаходження майна:
Україна, Сумська обл., смт. Липова Долина, вулиця Загорянка, 2
Схожі пропозиції
11.07.2023
Сумська обл., Шосткинський р-н, м. Середино-Буда, вул. Європейська, буд. 10. Оренда – офісні приміщення 1-го поверху площею 79,30 кв.м. (В)
602.68 грн
7.60 грн / м2
Офіс
Сумська обл., Шосткинський р-н, м. Середино-Буда, вул. Європейська, буд. 10. Оренда – офісні приміщення 1-го поверху площею 79,30 кв.м. (В)
Україна, Сумська обл., Шосткинський р-н, м. Середино-Буда, вул. Європейська, буд. 10
01.07.2025
Сумська область, м. Конотоп, просп. Миру, 4. Оренда – офісне приміщення на 2-му поверсі площею 16,8 кв.м. (В)
584.30 грн
34.78 грн / м2
Офіс
Сумська область, м. Конотоп, просп. Миру, 4. Оренда – офісне приміщення на 2-му поверсі площею 16,8 кв.м. (В)
Україна, Сумська обл., м. Конотоп, просп. Миру, 4
30.11.2023
Сумська обл., м. Путивль, вул. Першотравнева, буд. 86. Оренда – офісні приміщення 2-го поверху площею 54,60 кв.м. (В)
518.70 грн
9.50 грн / м2
Офіс
Сумська обл., м. Путивль, вул. Першотравнева, буд. 86. Оренда – офісні приміщення 2-го поверху площею 54,60 кв.м. (В)
Україна, Сумська обл., м. Путивль, вул. Першотравнева, буд. 86