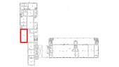
Івано-Франківська обл., м. Івано-Франківськ, вул. Ребета, 2 Оренда – приміщення складу площею 70,2 кв.м. (В)

5 986.66 грн
85.28 грн / м2
Україна, Івано-Франківська обл., Івано-Франківськ, вулиця Ребета, 2
Перейти до аукціону на сайті
  • Інформація
  • Опис
  • Документи
Дата оголошення пропозиції:
31 липня 2023
Площа:
70.20 м2
Тип об’єкта:
Приміщення
Тип аукціону:
Англійський аукціон
Статус аукціону:
Аукціон не відбувся
Тип угоди:
Оренда
Розмір мінімального кроку:
100.00 ₴
Розмір гарантійного внеску:
3 591.99 ₴
Початок прийому пропозицій:
31.07.2023 10:28:39
Завершення прийому пропозицій:
30.08.2023 20:00:00
Проведення аукціону:
31.08.2023 11:20:00
Лот:
CLE001-UA-20230731-70486
№ лоту (УТК):
UTK310723_04T
Лот виставляється на торги (раз):
1
Стислий опис майна:
Пропонуються до оренди приміщення складу площею 70,2 м.кв. Будівля знаходиться на околиці міста в промисловій зоні, розвинена інфраструктура, поруч склади, товарні бази, виробничі цехи. Приміщення можуть використовуватись під склад, виробництво, тощо. Характеристики: • кількість поверхів – 3; • Опалення – відсутнє; • земельна ділянка – 0,6744 га (договір оренди).
Адреса місцезнаходження майна:
Україна, Івано-Франківська обл., Івано-Франківськ, вулиця Ребета, 2
Схожі пропозиції
25.07.2023
Івано-Франківська обл., Івано-Франківський р-н, с.Росільна, вул. Шевченка, 145а. Оренда – Нежитлове приміщення І-го поверху, площею 33,4 м.кв. (В)
500.33 грн
14.98 грн / м2
Приміщення
Івано-Франківська обл., Івано-Франківський р-н, с.Росільна, вул. Шевченка, 145а. Оренда – Нежитлове приміщення І-го поверху, площею 33,4 м.кв. (В)
Україна, Івано-Франківська обл., Івано-Франківський р-н, с.Росільна, вул. Шевченка, 145а
20.11.2024
м. Івано-Франківськ, вул. Довга, 58;   Оренда – приміщення підвалу виробничого будинку, площею 57,6 кв.м. (В)
4 298.11 грн
74.62 грн / м2
Приміщення
м. Івано-Франківськ, вул. Довга, 58; Оренда – приміщення підвалу виробничого будинку, площею 57,6 кв.м. (В)
Україна, Івано-Франківська обл., м. Івано-Франківськ, вулиця Довга, 58
14.02.2023
м. Івано-Франківськ, вул. Довга, 58. Оренда – приміщення підвалу виробничого будинку, площею 57,6 кв.м. (В)
3 441.02 грн
59.74 грн / м2
Приміщення
м. Івано-Франківськ, вул. Довга, 58. Оренда – приміщення підвалу виробничого будинку, площею 57,6 кв.м. (В)
Україна, Івано-Франківська обл., м. Івано-Франківськ, вулиця Довга, 58
Івано-Франківська обл., Косівський р-н, с.Стопчатів, вул.Центральна, 3а. Оренда – Приміщення 1-го поверху, площею 169,9 м.кв. (В)
4 233.91 грн
24.92 грн / м2
Приміщення
Івано-Франківська обл., Косівський р-н, с.Стопчатів, вул.Центральна, 3а. Оренда – Приміщення 1-го поверху, площею 169,9 м.кв. (В)
Україна, Івано-Франківська обл., Косівський р-н, с.Стопчатів, вул.Центральна, 3а
Переглянуті пропозиції
Львівська обл., м. Радехів, вул. Львівська, 24. Оренда - приміщення 2 поверху
1 163.51 грн
11.06 грн / м2
Приміщення
Львівська обл., м. Радехів, вул. Львівська, 24. Оренда - приміщення 2 поверху
Україна, Львівська обл., м. Радехів, вул. Львівська, 24
26.11.2025
м. Харків, пр-т Ювілейний, 66. Оренда – приміщення 2-го поверху площею 35,3 кв.м. (В)
1 059.00 грн
30.00 грн / м2
Приміщення
м. Харків, пр-т Ювілейний, 66. Оренда – приміщення 2-го поверху площею 35,3 кв.м. (В)
Україна, Харківська обл., Харків, Ювілейний проспект, 66