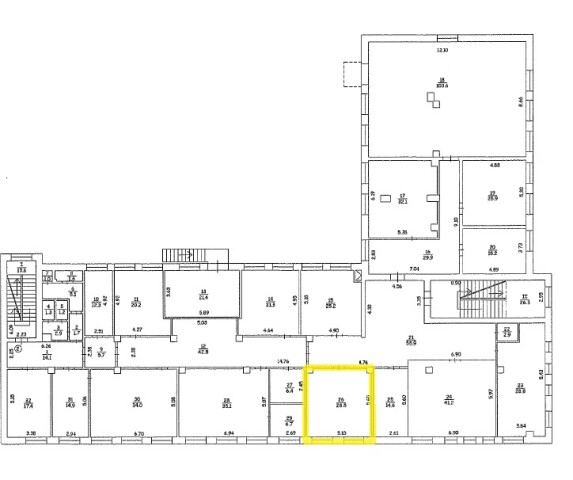
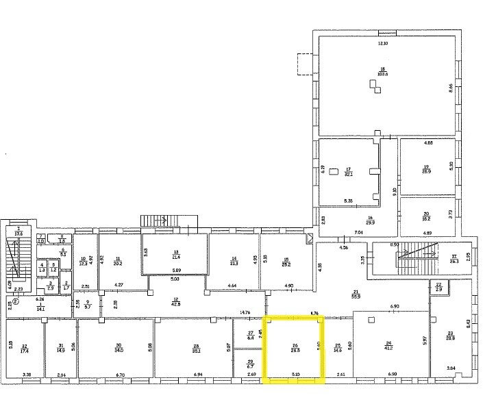
Дніпропетровська обл., м. Дніпро, вул. Січових Стрільців, 10. Оренда – приміщення 2-го поверху площею 28,50 кв.м. (В)

4 275.00 грн
150.00 грн / м2
Україна, Дніпропетровська обл., м. Дніпро, вул. Січових Стрільців, 10
Перейти до аукціону на сайті
  • Інформація
  • Опис
  • Документи
Дата оголошення пропозиції:
31 липня 2023
Площа:
28.50 м2
Тип об’єкта:
Приміщення
Тип аукціону:
Англійський аукціон
Статус аукціону:
Аукціон не відбувся
Тип угоди:
Оренда
Розмір мінімального кроку:
400.00 ₴
Розмір гарантійного внеску:
2 565.00 ₴
Початок прийому пропозицій:
31.07.2023 16:42:13
Завершення прийому пропозицій:
30.08.2023 20:00:00
Проведення аукціону:
31.08.2023 12:05:00
Лот:
CLE001-UA-20230731-08637
№ лоту (УТК):
UTK260623_07P
Лот виставляється на торги (раз):
2
Стислий опис майна:
Пропонується до оренди приміщення 2-го поверху площею 28,50 кв.м. Розташування – будівля (літ. «А-3») знаходиться в центральному районі міста. Поруч знаходяться відділення банку, високий автомобільний і пішохідний потоки. Стан приміщення задовільний, підходить для офісу, для дитячої студії, школи розвитку. Ідеальне місце під розвиток будь-якого бізнесу. Можливість передачі приміщень в суборенду. Характеристики: Кількість поверхів – 4 (враховуючи цокольний поверх) Загальна площа будівель на ЗД – 2876,70 кв.м. Площа запропонована до оренди – 28,50 кв.м. Електропостачання, водопостачання, теплопостачання, охорона та обслуговування пожежної сигналізації, вивіз сміття, прибирання території; Земельна ділянка – 0, 1636 га (договір оренди) Ресурсні податки – 5,55 грн за 1 кв.м
Адреса місцезнаходження майна:
Україна, Дніпропетровська обл., м. Дніпро, вул. Січових Стрільців, 10
Схожі пропозиції
16.04.2024
Дніпропетровська обл., м. Дніпро, вул. Січових Стрільців, 10. Оренда – приміщення 2-го поверху площею 103,60 кв.м (В)
13 148.91 грн
100.68 грн / м2
Приміщення
Дніпропетровська обл., м. Дніпро, вул. Січових Стрільців, 10. Оренда – приміщення 2-го поверху площею 103,60 кв.м (В)
Україна, Дніпропетровська обл., м. Дніпро, вул. Січових Стрільців, 10
28.06.2023
Дніпропетровська обл., м. Кривий Ріг, вул. Героїв АТО, 30. Оренда – пприміщення 1-го поверху площею 74,70 кв.м. (В)
6 958.31 грн
93.15 грн / м2
Приміщення
Дніпропетровська обл., м. Кривий Ріг, вул. Героїв АТО, 30. Оренда – пприміщення 1-го поверху площею 74,70 кв.м. (В)
Україна, Дніпропетровська обл., м. Кривий Ріг, вул. Героїв АТО, 30
Дніпропетровська обл., м. Дніпро, проспект Героїв, буд.14. Оренда – приміщення підвалу
4 443.26 грн
26.88 грн / м2
Приміщення
Дніпропетровська обл., м. Дніпро, проспект Героїв, буд.14. Оренда – приміщення підвалу
Україна, Дніпропетровська обл., м. Дніпро, проспект Героїв, буд. 14
18.10.2024
Дніпропетровська обл., м. Нікополь, вулиця Патріотів України, буд.113-А;  Оренда – перший поверх, загальною площею 1104,3 кв.м.(В)
8 591.45 грн
7.78 грн / м2
Приміщення
Дніпропетровська обл., м. Нікополь, вулиця Патріотів України, буд.113-А; Оренда – перший поверх, загальною площею 1104,3 кв.м.(В)
Україна, Дніпропетровська обл., Нікополь, вул. Патріотів України, буд. 113-А
Переглянуті пропозиції
10.11.2023
Дніпропетровська обл., м. Дніпро, вул. Панікахи, 27. Оренда – приміщення 3-го поверху площею 742,0 кв.м. (В)
47 799.64 грн
64.42 грн / м2
Приміщення
Дніпропетровська обл., м. Дніпро, вул. Панікахи, 27. Оренда – приміщення 3-го поверху площею 742,0 кв.м. (В)
Україна, Дніпропетровська обл., м. Дніпро, вул. Панікахи, 27
Львівська обл., м. Львів, вул. Берестяна, 2. Оренда – приміщення  1-го поверху площею 121,60 кв.м. (В)
11 527.68 грн
94.80 грн / м2
Приміщення
Львівська обл., м. Львів, вул. Берестяна, 2. Оренда – приміщення 1-го поверху площею 121,60 кв.м. (В)
Україна, Львівська обл., м. Львів, вул. Берестяна, 2
27.09.2024
Сумська обл., Шосткинський р-н, с. Каліївка, вул. Садова (Жовтнева), буд.14;  Оренда – частина будівлі та сарай площею 103,7 кв.м. (В)
502.95 грн
4.85 грн / м2
Будівля
Сумська обл., Шосткинський р-н, с. Каліївка, вул. Садова (Жовтнева), буд.14; Оренда – частина будівлі та сарай площею 103,7 кв.м. (В)
Україна, Сумська обл., Каліївка, вул. Садова (Жовтнева), буд.14
14.02.2024
м. Харків, вул. Амосова,13-в. Оренда – приміщення 3-го поверху площею 128,6 кв.м (В)
7 811.16 грн
60.74 грн / м2
Приміщення
м. Харків, вул. Амосова,13-в. Оренда – приміщення 3-го поверху площею 128,6 кв.м (В)
Україна, Харківська обл., м. Харків, вул. Амосова,13-в