Полтавська обл., Миргородський р-н., смт. Велика Багачка, вул. Чекалових, 17. Оренда – Приміщення 1-го поверху, загальною площею 113,90 кв.м. (В)

3 510.40 грн
30.82 грн / м2
Україна, Полтавська обл., Миргородський р-н., смт. Велика Багачка, вул. Чекалових, 17
Перейти до аукціону на сайті
  • Інформація
  • Опис
  • Документи
Дата оголошення пропозиції:
07 вересня 2023
Площа:
113.90 м2
Тип об’єкта:
Приміщення
Тип аукціону:
Англійський аукціон
Статус аукціону:
Аукціон не відбувся
Тип угоди:
Оренда
Розмір мінімального кроку:
50.00 ₴
Розмір гарантійного внеску:
2 106.24 ₴
Початок прийому пропозицій:
07.09.2023 13:59:21
Завершення прийому пропозицій:
09.10.2023 20:00:00
Проведення аукціону:
10.10.2023 11:55:00
Лот:
CLE001-UA-20230907-00735
№ лоту (УТК):
UTK080722_06P
Лот виставляється на торги (раз):
10
Стислий опис майна:
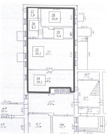
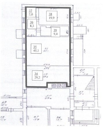
Пропонується до оренди приміщення 1-го поверху, загальною площею 113,90 кв.м., будівля знаходиться в центральній частині смт.Велика Багачка. Характеристики кількість поверхів – 2 загальна площа – 856,40 кв.м.; площа запропонована до оренди 113,90 кв.м.; опалення – наявне; електропостачання – дозволена потужність до 3 кВт; земельна ділянка – 0, 2926 га
Адреса місцезнаходження майна:
Україна, Полтавська обл., Миргородський р-н., смт. Велика Багачка, вул. Чекалових, 17
Схожі пропозиції
28.07.2023
Полтавська обл., Кременчуцький р-н., м. Горішні Плавні, вул. Миру, 18. Оренда – приміщення 1-го поверху площею 22,60 кв.м. (В)
505.11 грн
22.35 грн / м2
Приміщення
Полтавська обл., Кременчуцький р-н., м. Горішні Плавні, вул. Миру, 18. Оренда – приміщення 1-го поверху площею 22,60 кв.м. (В)
Україна, Полтавська обл., Кременчуцький р-н., м. Горішні Плавні, вул. Миру, 18
05.06.2024
Полтавська обл., Полтавський р-н, м. Полтава, вулиця Соборності, 33. Оренда – приміщення 3-го поверху площею 174,50 кв.м. (В)
13 654.63 грн
78.25 грн / м2
Приміщення
Полтавська обл., Полтавський р-н, м. Полтава, вулиця Соборності, 33. Оренда – приміщення 3-го поверху площею 174,50 кв.м. (В)
Україна, Полтавська обл., Полтавський р-н, м. Полтава, вул. Соборності, 33
21.03.2024
Полтавська обл., Лубенський р-н, с.Новоаврамівка, вул.Центральна, буд.14;   Оренда–будівля площею 62,1 кв.м. (В)
503.01 грн
8.10 грн / м2
Приміщення
Полтавська обл., Лубенський р-н, с.Новоаврамівка, вул.Центральна, буд.14; Оренда–будівля площею 62,1 кв.м. (В)
Україна, Полтавська обл., с. Новоаврамівка, вул. Центральна, буд. 14
07.09.2022
Полтавська обл., Кременчуцький р-н., м. Горішні Плавні, вул. Миру, 18. Оренда – Приміщення 2-го поверху, площею 19,90 кв.м. (В)
497.50 грн
25.00 грн / м2
Приміщення
Полтавська обл., Кременчуцький р-н., м. Горішні Плавні, вул. Миру, 18. Оренда – Приміщення 2-го поверху, площею 19,90 кв.м. (В)
Україна, Полтавська обл., Кременчуцький р-н., м. Горішні Плавні, вул. Миру, 18
Переглянуті пропозиції
21.08.2024
Полтавська обл., Лубенський р-н, м. Хорол, вулиця Небесної Сотні, 17/2; Оренда – приміщення 2-х поверхової будівлі площею 355,20 кв.м. (В)
9 032.74 грн
25.43 грн / м2
Приміщення
Полтавська обл., Лубенський р-н, м. Хорол, вулиця Небесної Сотні, 17/2; Оренда – приміщення 2-х поверхової будівлі площею 355,20 кв.м. (В)
Україна, Полтавська обл., Хорол, вулиця Небесної Сотні, 17/2
30.04.2024
Полтавська обл., м. Полтава, провулок Латишева, буд. 11-А. Оренда – Частина будівлі площею 1287,60 кв.м. (В)
61 032.24 грн
47.40 грн / м2
Будівля
Полтавська обл., м. Полтава, провулок Латишева, буд. 11-А. Оренда – Частина будівлі площею 1287,60 кв.м. (В)
Україна, Полтавська обл., м. Полтава, провулок Латишева, буд. 11-А