Дніпропетровська обл., м. Дніпро, вул. Панікахи, 27. Оренда – приміщення цокольного поверху площею 113,60 кв.м (П)

10 454.61 грн
92.03 грн / м2
Україна, Дніпропетровська обл., м. Дніпро, вул. Панікахи, 27
Перейти до аукціону на сайті
  • Інформація
  • Опис
  • Документи
Дата оголошення пропозиції:
11 вересня 2023
Площа:
113.60 м2
Тип об’єкта:
Приміщення
Тип аукціону:
Англійський аукціон
Статус аукціону:
Аукціон не відбувся
Тип угоди:
Оренда
Розмір мінімального кроку:
110.00 ₴
Розмір гарантійного внеску:
6 272.76 ₴
Початок прийому пропозицій:
11.09.2023 13:58:12
Завершення прийому пропозицій:
10.10.2023 20:00:00
Проведення аукціону:
11.10.2023 12:05:00
Лот:
CLE001-UA-20230911-51103
№ лоту (УТК):
UTK110923_10P
Лот виставляється на торги (раз):
1
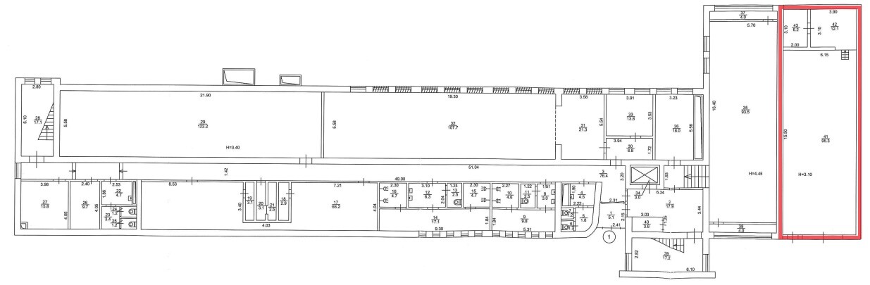
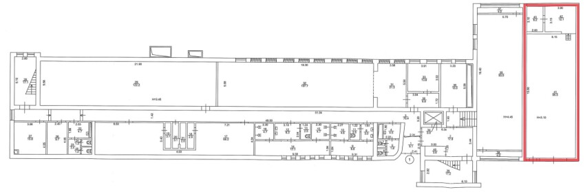
Стислий опис майна:
Пропонується до оренди приміщення цокольного поверху площею 113,60 кв.м. Розташування - будівля знаходиться в Шевченківському районі міста. Поруч знаходяться поліклініка, аптека, магазини, тощо. Зручна транспортна розв’язка та інфраструктура. Стан приміщення задовільний. Характеристики: ▪ Кількість поверхів – 5 ▪ Загальна площа – 3883,90 кв.м ▪ Площа запропонована до оренди – 113,60 кв.м ▪ Електропостачання, водопостачання, теплопостачання ▪ Земельна ділянка – 0, 2133 га (договір оренди) ▪ Ресурсні податки – 3,75 грн за 1 кв.м
Адреса місцезнаходження майна:
Україна, Дніпропетровська обл., м. Дніпро, вул. Панікахи, 27
Схожі пропозиції
17.05.2024
Дніпропетровська обл., м. Кам’янське, просп. Героїв АТО, 1. Оренда – приміщення 3-го поверху, площею 26,30 кв.м. (В)
263.00 грн
10.00 грн / м2
Приміщення
Дніпропетровська обл., м. Кам’янське, просп. Героїв АТО, 1. Оренда – приміщення 3-го поверху, площею 26,30 кв.м. (В)
Україна, Дніпропетровська обл., м. Кам’янське, просп. Героїв АТО, 1
Дніпропетровська обл., м. Дніпро, вул. Панікахи, 27 Оренда приміщення 3-го поверху площею 742,0 кв.м.(В)
6 151.18 грн
8.29 грн / м2
Приміщення
Дніпропетровська обл., м. Дніпро, вул. Панікахи, 27 Оренда приміщення 3-го поверху площею 742,0 кв.м.(В)
Україна, Дніпропетровська обл., м. Дніпро, вул. Панікахи, 27
26.11.2024
Дніпропетровська обл., м. Кам’янське, просп. Свободи, 44. Оренда – приміщення 5-го поверху загальною площею 237,20 кв.м (В)
6 034.37 грн
25.44 грн / м2
Приміщення
Дніпропетровська обл., м. Кам’янське, просп. Свободи, 44. Оренда – приміщення 5-го поверху загальною площею 237,20 кв.м (В)
Україна, Дніпропетровська обл., м. Кам’янське, просп. Свободи, 44
10.01.2023
Дніпропетровська обл., м. Кам’янське, просп. Героїв АТО, 1. Оренда – приміщення 3-го поверху, площею 26,30 кв.м. (В)
500.23 грн
19.02 грн / м2
Приміщення
Дніпропетровська обл., м. Кам’янське, просп. Героїв АТО, 1. Оренда – приміщення 3-го поверху, площею 26,30 кв.м. (В)
Україна, Дніпропетровська обл., м. Кам’янське, просп. Героїв АТО, 1