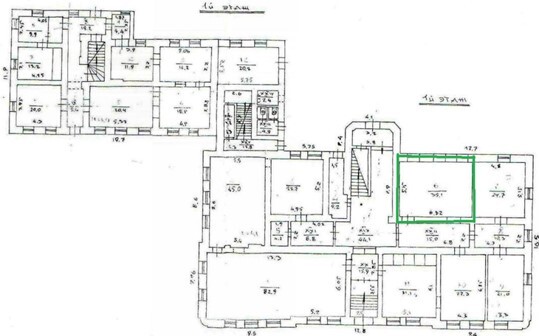
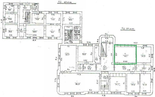
Львівська обл., м. Золочів, вул. Пушкіна, 9. Оренда – приміщення 1-го поверху площею 35,1 кв.м. (В)

972.97 грн
27.72 грн / м2
Україна, Львівська обл., Золочів, вулиця Пушкіна, 9
Перейти до аукціону на сайті
  • Інформація
  • Опис
  • Документи
Дата оголошення пропозиції:
02 жовтня 2023
Площа:
35.10 м2
Тип об’єкта:
Приміщення
Тип аукціону:
Англійський аукціон
Статус аукціону:
Аукціон не відбувся
Тип угоди:
Оренда
Розмір мінімального кроку:
50.00 ₴
Розмір гарантійного внеску:
583.78 ₴
Початок прийому пропозицій:
02.10.2023 09:55:55
Завершення прийому пропозицій:
31.10.2023 20:00:00
Проведення аукціону:
01.11.2023 12:40:00
Лот:
CLE001-UA-20231002-84862
№ лоту (УТК):
UTK291122_01Т
Лот виставляється на торги (раз):
9
Стислий опис майна:
Пропонується до оренди приміщення 1-го поверху площею 35,1 кв.м. Будівля розташована в центрі міста, зручна транспортна розв’зка. Характеристики • Кількість поверхів – 2 • Електропостачання • Опалення • Земельна ділянка – 0,1874 га (договір орнеди)
Адреса місцезнаходження майна:
Україна, Львівська обл., Золочів, вулиця Пушкіна, 9
Схожі пропозиції
28.12.2023
Львівська обл., м. Сколе, вул. Д. Галицького, 18. Оренда – приміщення 2 –го поверху площею 491,4 кв.м. (В)
7 783.78 грн
15.84 грн / м2
Приміщення
Львівська обл., м. Сколе, вул. Д. Галицького, 18. Оренда – приміщення 2 –го поверху площею 491,4 кв.м. (В)
Україна, Львівська обл., м. Сколе, вул. Д. Галицького, 18
Львівська обл., Стрийський р-н, м. Жидачів, пл. Свободи, 8. Оренда – приміщення 2-го поверху площею 224,40 кв.м. (В)
3 554.50 грн
15.84 грн / м2
Приміщення
Львівська обл., Стрийський р-н, м. Жидачів, пл. Свободи, 8. Оренда – приміщення 2-го поверху площею 224,40 кв.м. (В)
Україна, Львівська обл., Стрийський р-н, м. Жидачів, пл. Свободи, 8
14.05.2024
Львівська обл., м. Городок, вул. Львівська, 16;  Оренда – приміщення 4-го поверху площею 156,6 кв. м. (В)
1 006.94 грн
6.43 грн / м2
Приміщення
Львівська обл., м. Городок, вул. Львівська, 16; Оренда – приміщення 4-го поверху площею 156,6 кв. м. (В)
Україна, Львівська обл., Городок, Львівська вулиця, 16
30.07.2024
Львівська обл. м. Перемишляни вул. Топольна, 6. Оренда – приміщення гаражів площею 45,3 кв.м. (В)
8 200.66 грн
181.03 грн / м2
Приміщення
Львівська обл. м. Перемишляни вул. Топольна, 6. Оренда – приміщення гаражів площею 45,3 кв.м. (В)
Україна, Львівська обл., м. Перемишляни, вул. Топольна, 6
Переглянуті пропозиції
08.09.2022
Рівненська обл., Варашський р-н, смт. Рафалівка, вул.Незалежності, 8А. Оренда – будівля складів з гаражем площею 117,4 кв. м. (В)
1 174.00 грн
10.00 грн / м2
Будівля
Рівненська обл., Варашський р-н, смт. Рафалівка, вул.Незалежності, 8А. Оренда – будівля складів з гаражем площею 117,4 кв. м. (В)
Україна, Рівненська обл., Варашський р-н, смт. Рафалівка, вул.Незалежності, 8А
23.02.2024
м. Івано-Франківськ, вул. Довга, 58;   Оренда – приміщення підвалу виробничого будинку, площею 57,6 кв.м. (В)
4 298.11 грн
74.62 грн / м2
Приміщення
м. Івано-Франківськ, вул. Довга, 58; Оренда – приміщення підвалу виробничого будинку, площею 57,6 кв.м. (В)
Україна, Івано-Франківська обл., м. Івано-Франківськ, вулиця Довга, 58
02.09.2025
м. Харків, пр-т Л. Свободи,31 а.Оренда – приміщення 3-го поверху, площею 882,5 кв.м (В)
40 268.48 грн
45.63 грн / м2
Приміщення
м. Харків, пр-т Л. Свободи,31 а.Оренда – приміщення 3-го поверху, площею 882,5 кв.м (В)
Україна, Харківська обл., м. Харків, пр-т Л. Свободи,31 а
22.10.2025
м. Київ, вул. Джона Маккейна, 40, літ. «А» (Печерський р-н). Оренда – група приміщень на 1-му поверсі, площею 65,60 кв.м. (В)
13 308.27 грн
202.87 грн / м2
Приміщення
м. Київ, вул. Джона Маккейна, 40, літ. «А» (Печерський р-н). Оренда – група приміщень на 1-му поверсі, площею 65,60 кв.м. (В)
Україна, м.Київ, Київ, вулиця Джона Маккейна, 40 літ. «А»