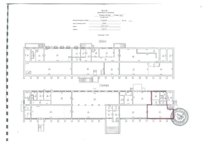
Сумська область, Шосткинський р-н, м. Глухів, пл. Свободи, буд. 2; Оренда – офісне приміщення 1-го поверху площею 89,70 кв.м. (В)

6 458.40 грн
72.00 грн / м2
Україна, Сумська обл., Глухів, площа Свободи, 2
Перейти до аукціону на сайті
  • Інформація
  • Опис
  • Документи
Дата оголошення пропозиції:
09 жовтня 2023
Площа:
89.70 м2
Тип об’єкта:
Офіс
Тип аукціону:
Англійський аукціон
Статус аукціону:
Аукціон не відбувся
Тип угоди:
Оренда
Розмір мінімального кроку:
100.00 ₴
Розмір гарантійного внеску:
3 875.04 ₴
Початок прийому пропозицій:
09.10.2023 13:58:06
Завершення прийому пропозицій:
08.11.2023 20:00:00
Проведення аукціону:
09.11.2023 11:00:00
Лот:
CLE001-UA-20231009-12901
№ лоту (УТК):
UTK091023_02T
Лот виставляється на торги (раз):
1
Стислий опис майна:
Пропонується до оренди офісне приміщення 1-го поверху площею 89,70 кв.м. триповерхової будівлі. Знаходиться в центральній частині міста. Добра візуалізація з дороги. Можливість передачі приміщення в суборенду. Доступ 24/7. Характеристики • Кількість поверхів – 3 • Загальна площа – 2747,60 кв.м. • Площа запропонована до оренди – 89,70 кв.м. • Водопостачання - відсутнє; • Електропостачання та теплопостачання - наявне • Земельна ділянка – 0,4105 га (договір оренди ЗД) • Стан приміщення - добрий
Адреса місцезнаходження майна:
Україна, Сумська обл., Глухів, площа Свободи, 2
Схожі пропозиції
27.12.2022
Сумська обл., м. Путивль, вул. Першотравнева, буд. 86. Оренда – офісні приміщення 1-го поверху площею 14,80 кв.м. (В)
444.00 грн
30.00 грн / м2
Офіс
Сумська обл., м. Путивль, вул. Першотравнева, буд. 86. Оренда – офісні приміщення 1-го поверху площею 14,80 кв.м. (В)
Україна, Сумська обл., м. Путивль, вул. Першотравнева, буд. 86
28.04.2023
Сумська обл., м. Білопілля, вул. Старопутивльська, буд. 47. Оренда – офісні приміщення 2-го поверху, площею 85,6 кв.м. (В)
626.59 грн
7.32 грн / м2
Офіс
Сумська обл., м. Білопілля, вул. Старопутивльська, буд. 47. Оренда – офісні приміщення 2-го поверху, площею 85,6 кв.м. (В)
Україна, Сумська обл., м. Білопілля, вул. Старопутивльська, буд. 47
07.04.2023
Сумська обл., м. Суми, вул. Нижньосироватська, буд. 64. Оренда – офісні приміщення 2-го поверху площею 31,30 кв.м. (В)
1 446.06 грн
46.20 грн / м2
Офіс
Сумська обл., м. Суми, вул. Нижньосироватська, буд. 64. Оренда – офісні приміщення 2-го поверху площею 31,30 кв.м. (В)
Україна, Сумська обл., м. Суми, вул. Нижньосироватська, буд. 64
18.04.2025
Сумська область, м. Конотоп, просп. Миру, 4. Оренда – офісне приміщення на 2-му поверсі площею 16,8 кв.м. (В)
681.74 грн
40.58 грн / м2
Офіс
Сумська область, м. Конотоп, просп. Миру, 4. Оренда – офісне приміщення на 2-му поверсі площею 16,8 кв.м. (В)
Україна, Сумська обл., м. Конотоп, просп. Миру, 4
Переглянуті пропозиції
22.04.2025
Полтавська обл., Полтавський р-н, cмт. Чутове, вул. Незалежності, 24. Оренда – приміщення 3-го поверху площею 30,60 кв.м. (В)
550.80 грн
18.00 грн / м2
Приміщення
Полтавська обл., Полтавський р-н, cмт. Чутове, вул. Незалежності, 24. Оренда – приміщення 3-го поверху площею 30,60 кв.м. (В)
Україна, Полтавська обл., Полтавський р-н, cмт. Чутове, вул. Незалежності, 24
17.03.2023
Львівська обл., м. Новояворівськ, вул. Шевченка,7. Оренда – приміщення 3-го поверху площею 314 кв.м. (В)
3 165.12 грн
10.08 грн / м2
Приміщення
Львівська обл., м. Новояворівськ, вул. Шевченка,7. Оренда – приміщення 3-го поверху площею 314 кв.м. (В)
Україна, Львівська обл., Новояворівськ, вулиця Тараса Шевченка, 7
30.07.2024
Львівська обл. м. Перемишляни вул. Топольна, 6. Оренда – приміщення гаражів площею 45,3 кв.м. (В)
8 200.66 грн
181.03 грн / м2
Приміщення
Львівська обл. м. Перемишляни вул. Топольна, 6. Оренда – приміщення гаражів площею 45,3 кв.м. (В)
Україна, Львівська обл., м. Перемишляни, вул. Топольна, 6
08.11.2024
Полтавська обл., Миргородський р-н, м. Гадяч, вулиця Полтавська, 22. Оренда – приміщення 2-го поверху загальною площею 58,50 кв.м. (В)
1 123.20 грн
19.20 грн / м2
Приміщення
Полтавська обл., Миргородський р-н, м. Гадяч, вулиця Полтавська, 22. Оренда – приміщення 2-го поверху загальною площею 58,50 кв.м. (В)
Україна, Полтавська обл., Миргородський р-н, м. Гадяч, вул. Полтавська, 22