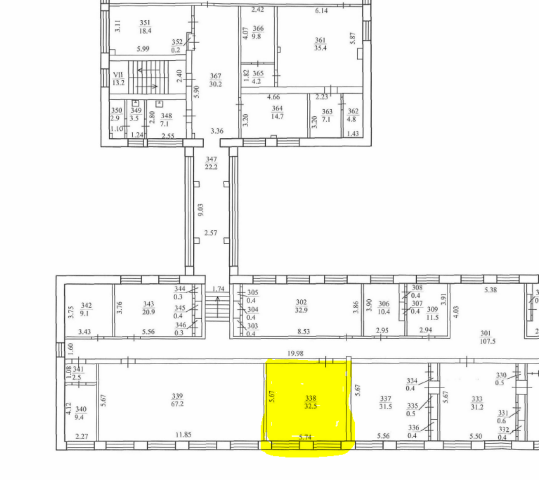
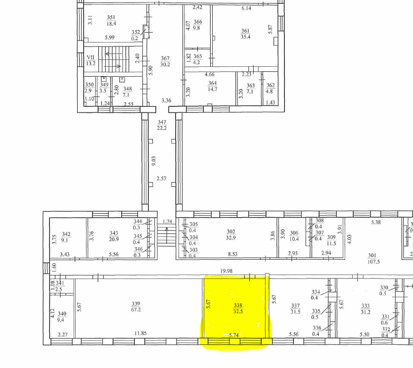
Дніпропетровська обл., м. Жовті Води, вул. Свободи, 39. Оренда – приміщення 3-го поверху площею 32,5 кв.м. (В)

487.50 грн
15.00 грн / м2
Україна, Дніпропетровська обл., Жовті Води, бульвар Свободи, 39
Перейти до аукціону на сайті
  • Інформація
  • Опис
  • Документи
Дата оголошення пропозиції:
10 жовтня 2023
Площа:
32.50 м2
Тип об’єкта:
Приміщення
Тип аукціону:
Англійський аукціон
Статус аукціону:
Аукціон не відбувся
Тип угоди:
Оренда
Розмір мінімального кроку:
15.00 ₴
Розмір гарантійного внеску:
292.50 ₴
Початок прийому пропозицій:
10.10.2023 16:50:25
Завершення прийому пропозицій:
09.11.2023 20:00:00
Проведення аукціону:
10.11.2023 11:15:00
Лот:
CLE001-UA-20231010-04723
№ лоту (УТК):
UTK011122_5T
Лот виставляється на торги (раз):
10
Стислий опис майна:
Пропонується до оренди приміщення 3-го поверху площею 32,5 кв.м. Розташування – 3-поверхова будівля (літ.А-Б-В, приміщ.№338), знаходиться в центральному районі міста. Поруч знаходяться відділення банку, високий автомобільний і пішохідний потоки. Стан приміщення задовільний, підходить для офісу, Ідеальне місце під розвиток будь-якого бізнесу. Можливість передачі приміщень в суборенду. Характеристики: • Кількість поверхів – 3 • Загальна площа – 3622,5 кв.м. • Площа запропонована до оренди – 32,5 кв.м. • Електропостачання, водопостачання, теплопостачанняцентралізоване; • Земельна ділянка – 0, 603 га (договір оренди)
Адреса місцезнаходження майна:
Україна, Дніпропетровська обл., Жовті Води, бульвар Свободи, 39
Схожі пропозиції
Дніпропетровська обл., м. Дніпро, вулиця Князя Ярослава Мудрого, 3. Оренда – приміщення 5-го поверху, площею 39,70 кв.м. (В)
1 969.91 грн
49.62 грн / м2
Приміщення
Дніпропетровська обл., м. Дніпро, вулиця Князя Ярослава Мудрого, 3. Оренда – приміщення 5-го поверху, площею 39,70 кв.м. (В)
Україна, Дніпропетровська обл., м. Дніпро, вулиця Князя Ярослава Мудрого, 3
05.10.2023
Дніпропетровська обл., м. Дніпро, вул. Січових Стрільців, 10. Оренда – приміщення 2-го поверху площею 32,10 кв.м. (В)
4 815.00 грн
150.00 грн / м2
Приміщення
Дніпропетровська обл., м. Дніпро, вул. Січових Стрільців, 10. Оренда – приміщення 2-го поверху площею 32,10 кв.м. (В)
Україна, Дніпропетровська обл., м. Дніпро, вул. Січових Стрільців, 10
Дніпропетровська обл., м. Дніпро, пр. Богдана Хмельницького, 28а. Оренда – приміщення підвалу, 2-го, 3-го та 4-го поверхів, загальною площею 1910,90 кв.м. (В)
115 800.54 грн
60.60 грн / м2
Приміщення
Дніпропетровська обл., м. Дніпро, пр. Богдана Хмельницького, 28а. Оренда – приміщення підвалу, 2-го, 3-го та 4-го поверхів, загальною площею 1910,90 кв.м. (В)
Україна, Дніпропетровська обл., м. Дніпро, пр. Богдана Хмельницького, 28а
06.06.2025
Дніпропетровська обл., м. Кривий Ріг, вул. Дніпропетровське шосе, 48. Оренда – приміщення 4-го поверху, площею 640,00 кв.м. (В)
11 520.00 грн
18.00 грн / м2
Приміщення
Дніпропетровська обл., м. Кривий Ріг, вул. Дніпропетровське шосе, 48. Оренда – приміщення 4-го поверху, площею 640,00 кв.м. (В)
Україна, Дніпропетровська обл., Кривий Ріг, Кривий Ріг
Переглянуті пропозиції
Полтавська обл., м. Миргород, вулиця Гоголя, буд. 96/9. Оренда – приміщення 3-го поверху площею 27,8 кв.м.
1 414.46 грн
50.88 грн / м2
Приміщення
Полтавська обл., м. Миргород, вулиця Гоголя, буд. 96/9. Оренда – приміщення 3-го поверху площею 27,8 кв.м.
Україна, Полтавська обл., м. Миргород, вул. Гоголя, буд. 96/9
Полтавська обл., Лубенський р-н, с. Засулля, вул. Молодіжна, буд. 20. Оренда - одноповерхова будівля
1 639.87 грн
8.64 грн / м2
Будівля
Полтавська обл., Лубенський р-н, с. Засулля, вул. Молодіжна, буд. 20. Оренда - одноповерхова будівля
Україна, Полтавська обл., Лубенський р-н, с. Засулля, вул. Молодіжна, буд. 20
14.09.2022
Київська обл., м. Бориспіль, вул. Київський шлях, 86-А. Оренда – приміщення 3-го поверху, площею 38,30 кв.м. (В)
2 343.96 грн
61.20 грн / м2
Приміщення
Київська обл., м. Бориспіль, вул. Київський шлях, 86-А. Оренда – приміщення 3-го поверху, площею 38,30 кв.м. (В)
Україна, Київська обл., Бориспіль, вулиця Київський шлях, 86а
05.04.2023
Вінницька обл., Вінницький р-н, м. Немирів, вул. Шевченка, 25. Оренда – приміщення 4-го поверху, площею 349,8 кв.м. (В)
4 466.95 грн
12.77 грн / м2
Приміщення
Вінницька обл., Вінницький р-н, м. Немирів, вул. Шевченка, 25. Оренда – приміщення 4-го поверху, площею 349,8 кв.м. (В)
Україна, Вінницька обл., Немирів, вул. Шевченка, 25