м. Харків, пр-т. Г. Сталінграду, 3. Оренда – приміщення 3-го поверху площею 344,7 кв.м. (В)

18 820.62 грн
54.60 грн / м2
Україна, Харківська обл., м. Харків, пр-т. Г. Сталінграду, 3
Перейти до аукціону на сайті
  • Інформація
  • Опис
  • Документи
Дата оголошення пропозиції:
16 жовтня 2023
Площа:
344.70 м2
Тип об’єкта:
Приміщення
Тип аукціону:
Англійський аукціон
Статус аукціону:
Аукціон не відбувся
Тип угоди:
Оренда
Розмір мінімального кроку:
300.00 ₴
Розмір гарантійного внеску:
11 292.37 ₴
Початок прийому пропозицій:
16.10.2023 16:58:33
Завершення прийому пропозицій:
15.11.2023 20:00:00
Проведення аукціону:
16.11.2023 11:55:00
Лот:
CLE001-UA-20231016-39959
№ лоту (УТК):
UTK070823_07P
Лот виставляється на торги (раз):
3
Стислий опис майна:
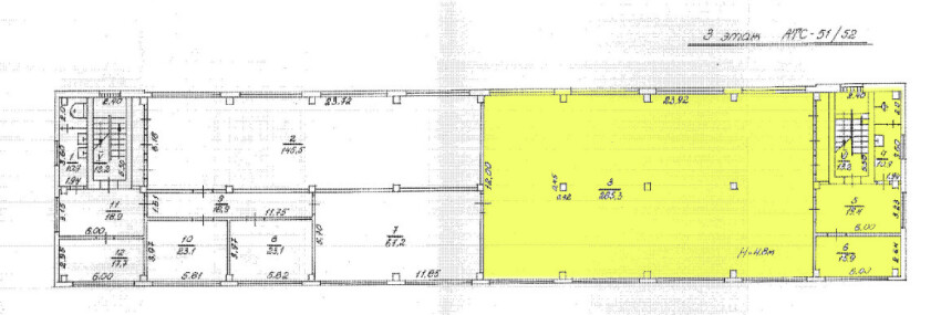
Пропонується до оренди приміщення третього поверху площею 344,7 кв.м. Будівля в спальному районі міста Харкова. 10 хв до зупинки транспорту. Характеристики: Кількість поверхів – 4. Загальна площа – 3 761,8 кв.м. Площа запропонована до оренди – 344,7 кв.м. Дозволена потужність – 20 кВт. Теплопостачання-відсутнє. Земельна ділянка – 0,6208 га.
Адреса місцезнаходження майна:
Україна, Харківська обл., м. Харків, пр-т. Г. Сталінграду, 3
Схожі пропозиції
22.04.2025
Харківська обл., Богодухівський р-н, смт. Краснокутськ, вул. Миру, 123. Оренда – приміщення 2-го поверху площею 92,90 кв.м. (В)
1 672.20 грн
18.00 грн / м2
Приміщення
Харківська обл., Богодухівський р-н, смт. Краснокутськ, вул. Миру, 123. Оренда – приміщення 2-го поверху площею 92,90 кв.м. (В)
Україна, Харківська обл., Богодухівський р-н, смт. Краснокутськ, вул. Миру, 123
15.07.2025
м. Харків, пр-т. Г. Сталінграду, 169. Оренда – приміщення 3-го поверху площею 320,9 кв.м. (В)
12 515.10 грн
39.00 грн / м2
Приміщення
м. Харків, пр-т. Г. Сталінграду, 169. Оренда – приміщення 3-го поверху площею 320,9 кв.м. (В)
Україна, Харківська обл., м. Харків, пр-т. Г. Сталінграду, 169
Харківська обл., м. Харків, вул. Нетіченська набережна, 8. Оренда – приміщення восьмого поверху площею 267,8 кв.м. (В)
12 372.36 грн
46.20 грн / м2
Приміщення
Харківська обл., м. Харків, вул. Нетіченська набережна, 8. Оренда – приміщення восьмого поверху площею 267,8 кв.м. (В)
Україна, Харківська обл., м. Харків, вул. Старокиївська, 2
15.10.2025
м. Харків, вул. Старошишківська,5а. Оренда – приміщення 1-го поверху площею 36,0 кв.м (В)
1 080.00 грн
30.00 грн / м2
Приміщення
м. Харків, вул. Старошишківська,5а. Оренда – приміщення 1-го поверху площею 36,0 кв.м (В)
Україна, Харківська обл., м. Харків, вул. Старошишківська,5а
Переглянуті пропозиції
21.10.2022
Вінницька обл., м. Вінниця, вул. О. Береста, 6. Оренда – приміщення площею 126,00 кв.м. (В)
5 821.20 грн
46.20 грн / м2
Приміщення
Вінницька обл., м. Вінниця, вул. О. Береста, 6. Оренда – приміщення площею 126,00 кв.м. (В)
Україна, Вінницька обл., Вінниця, вулиця Олексія Береста, 6