ДОВГОСТРОКОВА ОРЕНДА! Рівненська обл., м.Рівне вул. В.Чорновола,1; Оренда – приміщення 5-го поверху загальною площею 483,4 кв.м. (В)

47 305.52 грн
97.86 грн / м2
Україна, Рівненська обл., Рівне, вул. Вячеслава Чорновола, 1
Перейти до аукціону на сайті
  • Інформація
  • Опис
  • Документи
Дата оголошення пропозиції:
23 жовтня 2023
Площа:
483.40 м2
Тип об’єкта:
Приміщення
Тип аукціону:
Англійський аукціон
Статус аукціону:
Аукціон не відбувся
Тип угоди:
Оренда
Розмір мінімального кроку:
500.00 ₴
Розмір гарантійного внеску:
28 383.31 ₴
Початок прийому пропозицій:
23.10.2023 20:04:30
Завершення прийому пропозицій:
22.11.2023 20:00:00
Проведення аукціону:
23.11.2023 11:15:00
Лот:
CLE001-UA-20231023-12419
№ лоту (УТК):
UTK081222_00Т
Лот виставляється на торги (раз):
10
Стислий опис майна:
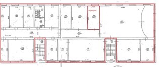
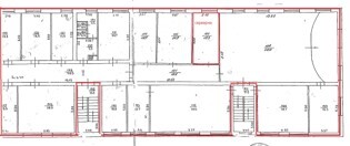
Пропонується до оренди приміщення 5-го поверху загальною площею 483,4 кв.м. Будівля знаходиться в центральній частині міста. Розвинена інфраструктура, високі автомобільний та пішохідний потоки. Поряд центральна площа та міський парк. Приміщення потребують реконструкції електромережі . Характеристики: • Кількість поверхів – 5; • Загальна площа – 2032,6 кв.м.; • Площа, запропонована до оренди – загальною площею 483,4 кв.м.; • Опалення – централізоване; • Земельна ділянка - площа 0,1652 га. (договір оренди)
Адреса місцезнаходження майна:
Україна, Рівненська обл., Рівне, вул. Вячеслава Чорновола, 1
Схожі пропозиції
Рівненська обл., м. Рівне вул. В. Чорновола, 1. Оренда – підвальні приміщення загальною площею 261,7 м.кв. (В)
22 139.82 грн
84.60 грн / м2
Приміщення
Рівненська обл., м. Рівне вул. В. Чорновола, 1. Оренда – підвальні приміщення загальною площею 261,7 м.кв. (В)
Україна, Рівненська обл., м. Рівне , вул. В. Чорновола, 1
28.02.2025
Рівненська обл., Дубнівський р-н., м. Дубно, вул. Данила Галицького, 15. Оренда – приміщення 4-го поверху площею 501,1 кв.м. (В)
6 013.20 грн
12.00 грн / м2
Приміщення
Рівненська обл., Дубнівський р-н., м. Дубно, вул. Данила Галицького, 15. Оренда – приміщення 4-го поверху площею 501,1 кв.м. (В)
Україна, Рівненська обл., Дубнівський р-н., м. Дубно, вул. Данила Галицького, 15
06.11.2020
ГОЛЛАНДСЬКИЙ АУКЦІОН. Рівненська обл., м. Острог, просп. Незалежності, 7. Оренда – приміщення 1-го та 2-го поверхів площею 145,5 кв.м. (В)
1 242.57 грн
8.54 грн / м2
Приміщення
ГОЛЛАНДСЬКИЙ АУКЦІОН. Рівненська обл., м. Острог, просп. Незалежності, 7. Оренда – приміщення 1-го та 2-го поверхів площею 145,5 кв.м. (В)
Україна, Рівненська обл., м. Острог, просп. Незалежності, 7
16.04.2024
Рівненська обл., м. Рівне, вул. В.Чорновола, 1. Оренда – приміщення 3-го поверху площею 298,00 кв.м. (В)
29 162.28 грн
97.86 грн / м2
Приміщення
Рівненська обл., м. Рівне, вул. В.Чорновола, 1. Оренда – приміщення 3-го поверху площею 298,00 кв.м. (В)
Україна, Рівненська обл., м. Рівне, вул. В.Чорновола, 1