Івано-Франківська обл., Калуський район, смт. Рожнятів, площа Єдності, 9; Оренда – приміщення 3-го поверху площею 100,8 м.кв. (В)

1 257.98 грн
12.48 грн / м2
Україна, Івано-Франківська обл., смт. Рожнятів, площа Єдності, 9
Перейти до аукціону на сайті
  • Інформація
  • Опис
  • Документи
Дата оголошення пропозиції:
23 жовтня 2023
Площа:
100.80 м2
Тип об’єкта:
Приміщення
Тип аукціону:
Англійський аукціон
Статус аукціону:
Аукціон не відбувся
Тип угоди:
Оренда
Розмір мінімального кроку:
100.00 ₴
Розмір гарантійного внеску:
754.79 ₴
Початок прийому пропозицій:
23.10.2023 20:52:28
Завершення прийому пропозицій:
22.11.2023 20:00:00
Проведення аукціону:
23.11.2023 12:45:00
Лот:
CLE001-UA-20231023-05176
№ лоту (УТК):
UTK080721_11Т
Лот виставляється на торги (раз):
10
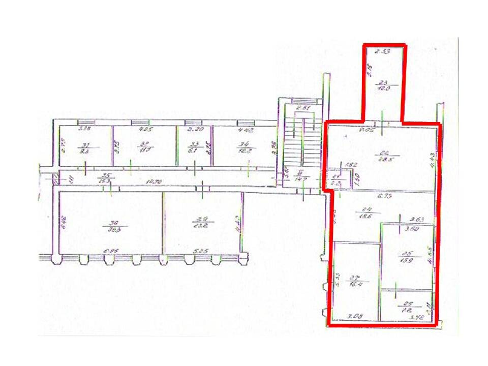
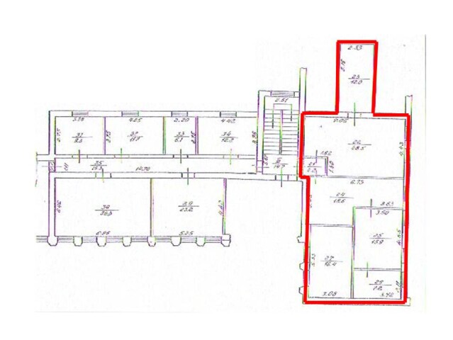
Стислий опис майна:
Пропонуються до оренди приміщення 3-го поверху площею 100,8 м.кв.. Будівля знаходиться в центральній частині населеного пункту. Високі пішохідний та транспортний потоки. Характеристики кількість поверхів – 3 опалення газове земельна ділянка – 0,1126 га (договір оренди)
Адреса місцезнаходження майна:
Україна, Івано-Франківська обл., смт. Рожнятів, площа Єдності, 9
Схожі пропозиції
07.11.2023
Івано-Франківська обл., м. Івано-Франківськ, вул. Ребета, 2 ;    Оренда – приміщення складу площею 70,2 кв.м. (В)
4 190.94 грн
59.70 грн / м2
Приміщення
Івано-Франківська обл., м. Івано-Франківськ, вул. Ребета, 2 ; Оренда – приміщення складу площею 70,2 кв.м. (В)
Україна, Івано-Франківська обл., Івано-Франківськ, вулиця Ребета, 2
Івано-Франківська обл., Косівський р-н, с. Стопчатів, вул. Центральна, 3а. Оренда приміщень 1-го поверху 169,9 кв.м.
1 957.25 грн
11.52 грн / м2
Приміщення
Івано-Франківська обл., Косівський р-н, с. Стопчатів, вул. Центральна, 3а. Оренда приміщень 1-го поверху 169,9 кв.м.
Україна, Івано-Франківська обл., с. Стопчатів, вул. Центральна, 3а
26.10.2022
Івано-Франківська обл., Калуський район, смт.Рожнятів, площа Єдності, 9, оренда – Приміщення 3-го поверху площею 100,8 м.кв. (В)
1 257.98 грн
12.48 грн / м2
Приміщення
Івано-Франківська обл., Калуський район, смт.Рожнятів, площа Єдності, 9, оренда – Приміщення 3-го поверху площею 100,8 м.кв. (В)
Україна, Івано-Франківська обл., смт. Рожнятів, площа Єдності, 9
16.01.2024
Івано-Франківська обл., м. Івано-Франківськ, вул. В.Симоненка, 1. Оренда – приміщення цокольного поверху, площею 250,7 м.кв. (В)
15 804.13 грн
63.04 грн / м2
Приміщення
Івано-Франківська обл., м. Івано-Франківськ, вул. В.Симоненка, 1. Оренда – приміщення цокольного поверху, площею 250,7 м.кв. (В)
Україна, Івано-Франківська обл., м. Івано-Франківськ, вул. В.Симоненка, 1
Переглянуті пропозиції
05.09.2023
Полтавська обл., Полтавський р-н, с. Велика Рублівка, вул. Центральна, буд.24. Оренда – Гаражі площею 48,00 кв.м. (В)
893.28 грн
18.61 грн / м2
Гараж
Полтавська обл., Полтавський р-н, с. Велика Рублівка, вул. Центральна, буд.24. Оренда – Гаражі площею 48,00 кв.м. (В)
Україна, Полтавська обл., Полтавський р-н, с. Велика Рублівка, вул. Центральна, буд.24
03.12.2024
м.Харків, вул. Амосова,13-В;  Оренда – приміщення цокольного поверху площею 312,51 кв.м. (П)
24 060.15 грн
76.99 грн / м2
Приміщення
м.Харків, вул. Амосова,13-В; Оренда – приміщення цокольного поверху площею 312,51 кв.м. (П)
Україна, Харківська обл., Харків, вулиця Амосова, 13-В
Рівненська обл., Сарненський р-н, смт. Степань, вул. Київська, 18. Оренда – приміщення 2-го поверху
1 603.01 грн
16.56 грн / м2
Приміщення
Рівненська обл., Сарненський р-н, смт. Степань, вул. Київська, 18. Оренда – приміщення 2-го поверху
Україна, Рівненська обл., Сарненський р-н, смт. Степань, вул. Київська, буд. 8
Сумська обл., м. Охтирка, вул. Перемоги, 17. Оренда – частина будівлі та склад
1 332.56 грн
11.37 грн / м2
Будівля
Сумська обл., м. Охтирка, вул. Перемоги, 17. Оренда – частина будівлі та склад
Україна, Сумська обл., м. Охтирка, вул. Перемоги, 17