Івано-Франківська обл., Калуський район, смт. Рожнятів, площа Єдності, 9; Оренда – приміщення 3-го поверху площею 109,6 м.кв. (В)

1 367.81 грн
12.48 грн / м2
Україна, Івано-Франківська обл., Рожнятів, площа Єдності, 9
Перейти до аукціону на сайті
  • Інформація
  • Опис
  • Документи
Дата оголошення пропозиції:
23 жовтня 2023
Площа:
109.60 м2
Тип об’єкта:
Приміщення
Тип аукціону:
Англійський аукціон
Статус аукціону:
Аукціон не відбувся
Тип угоди:
Оренда
Розмір мінімального кроку:
40.00 ₴
Розмір гарантійного внеску:
820.68 ₴
Початок прийому пропозицій:
23.10.2023 20:54:54
Завершення прийому пропозицій:
22.11.2023 20:00:00
Проведення аукціону:
23.11.2023 12:00:00
Лот:
CLE001-UA-20231023-04412
№ лоту (УТК):
UTK070721_10Т
Лот виставляється на торги (раз):
10
Стислий опис майна:
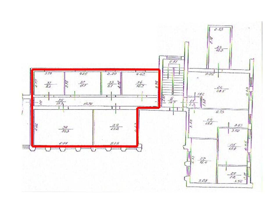
Пропонуються до оренди приміщення 3-го поверху площею 109,6 м.кв. Будівля знаходиться в центральній частині населеного пункту. Високі пішохідний та транспортний потоки. Характеристики: • кількість поверхів – 3 • опалення газове • земельна ділянка – 0,1126 га (договір оренди)
Адреса місцезнаходження майна:
Україна, Івано-Франківська обл., Рожнятів, площа Єдності, 9
Схожі пропозиції
11.11.2022
м. Івано-Франківськ, вул. Ребета, 2. Оренда – приміщення складу площею 118,0 кв.м. (В)
7 653.48 грн
64.86 грн / м2
Приміщення
м. Івано-Франківськ, вул. Ребета, 2. Оренда – приміщення складу площею 118,0 кв.м. (В)
Україна, Івано-Франківська обл., м. Івано-Франківськ, вул. Ребета, 2
Івано-Франківська обл., Івано-Франківський р-н, с.Росільна, вул. Шевченка, 145а. Оренда – Нежитлове приміщення І-го поверху, площею 33,4 м.кв. (В)
500.33 грн
14.98 грн / м2
Приміщення
Івано-Франківська обл., Івано-Франківський р-н, с.Росільна, вул. Шевченка, 145а. Оренда – Нежитлове приміщення І-го поверху, площею 33,4 м.кв. (В)
Україна, Івано-Франківська обл., Івано-Франківський р-н, с.Росільна, вул. Шевченка, 145а
11.08.2022
Івано-Франківська обл., Івано-Франківський р-н, м. Рогатин, вул. Галицька, 73. Оренда – Приміщення 1-го поверху площею 42,9 кв.м. (В)
500.21 грн
11.66 грн / м2
Приміщення
Івано-Франківська обл., Івано-Франківський р-н, м. Рогатин, вул. Галицька, 73. Оренда – Приміщення 1-го поверху площею 42,9 кв.м. (В)
Україна, Івано-Франківська обл., Івано-Франківський р-н, м. Рогатин, вул. Галицька, 73
Івано-Франківська обл., смт. Рожнятів, площа Єдності, 9. Оренда – Приміщення 3-го поверху 100,8 кв.м.
1 572.48 грн
15.60 грн / м2
Приміщення
Івано-Франківська обл., смт. Рожнятів, площа Єдності, 9. Оренда – Приміщення 3-го поверху 100,8 кв.м.
Україна, Івано-Франківська обл., смт. Рожнятів, площа Єдності, 9
Переглянуті пропозиції
02.09.2025
Полтавська обл., Миргородський р-н., смт. Шишаки, вул. Корніліча, буд.10. Оренда – приміщення 2-го поверху площею 32,00 кв.м. (В)
500.80 грн
15.65 грн / м2
Приміщення
Полтавська обл., Миргородський р-н., смт. Шишаки, вул. Корніліча, буд.10. Оренда – приміщення 2-го поверху площею 32,00 кв.м. (В)
Україна, Полтавська обл., Миргородський р-н., смт. Шишаки, вул. Корніліча, буд.10
Вінницька обл., Вінницький р-н, м. Гнівань, вул. Соборна, 62. Оренда – приміщення 2-го поверху площею 48,70 кв.м. (В)
818.16 грн
16.80 грн / м2
Приміщення
Вінницька обл., Вінницький р-н, м. Гнівань, вул. Соборна, 62. Оренда – приміщення 2-го поверху площею 48,70 кв.м. (В)
Україна, Вінницька обл., Вінницький р-н, м. Гнівань, вул. Соборна, 62
22.04.2025
м. Чернігів, вул. Кільцева,11. Оренда – частина комплексу виробничих будівель площею 1339,7 кв.м (В)
40 191.00 грн
30.00 грн / м2
Будівля
м. Чернігів, вул. Кільцева,11. Оренда – частина комплексу виробничих будівель площею 1339,7 кв.м (В)
Україна, Чернігівська обл., м. Чернігів, вул. Кільцева,11
21.08.2024
Сумська обл., м. Суми, вул. Іллінська, буд. 2. Оренда – офісні приміщення 3-го поверху площею 411,00 кв. м. (В)
24 138.03 грн
58.73 грн / м2
Офіс
Сумська обл., м. Суми, вул. Іллінська, буд. 2. Оренда – офісні приміщення 3-го поверху площею 411,00 кв. м. (В)
Україна, Сумська обл., м. Суми, вул. Іллінська, буд. 2