м.Чернігів, вул. Елеваторна, 6а; Оренда – приміщення 1го та 2го поверху площею 382,7 кв.м. (В)

18 139.98 грн
47.40 грн / м2
Україна, Чернігівська обл., Чернігів, Елеваторна вулиця, 6
Перейти до аукціону на сайті
  • Інформація
  • Опис
  • Документи
Дата оголошення пропозиції:
31 жовтня 2023
Площа:
382.70 м2
Тип об’єкта:
Приміщення
Тип аукціону:
Англійський аукціон
Статус аукціону:
Аукціон не відбувся
Тип угоди:
Оренда
Розмір мінімального кроку:
150.00 ₴
Розмір гарантійного внеску:
10 883.99 ₴
Початок прийому пропозицій:
31.10.2023 12:06:22
Завершення прийому пропозицій:
29.11.2023 20:00:00
Проведення аукціону:
30.11.2023 12:50:00
Лот:
CLE001-UA-20231031-66552
№ лоту (УТК):
UTK201022_10T
Лот виставляється на торги (раз):
10
Стислий опис майна:
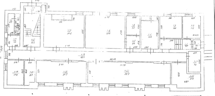
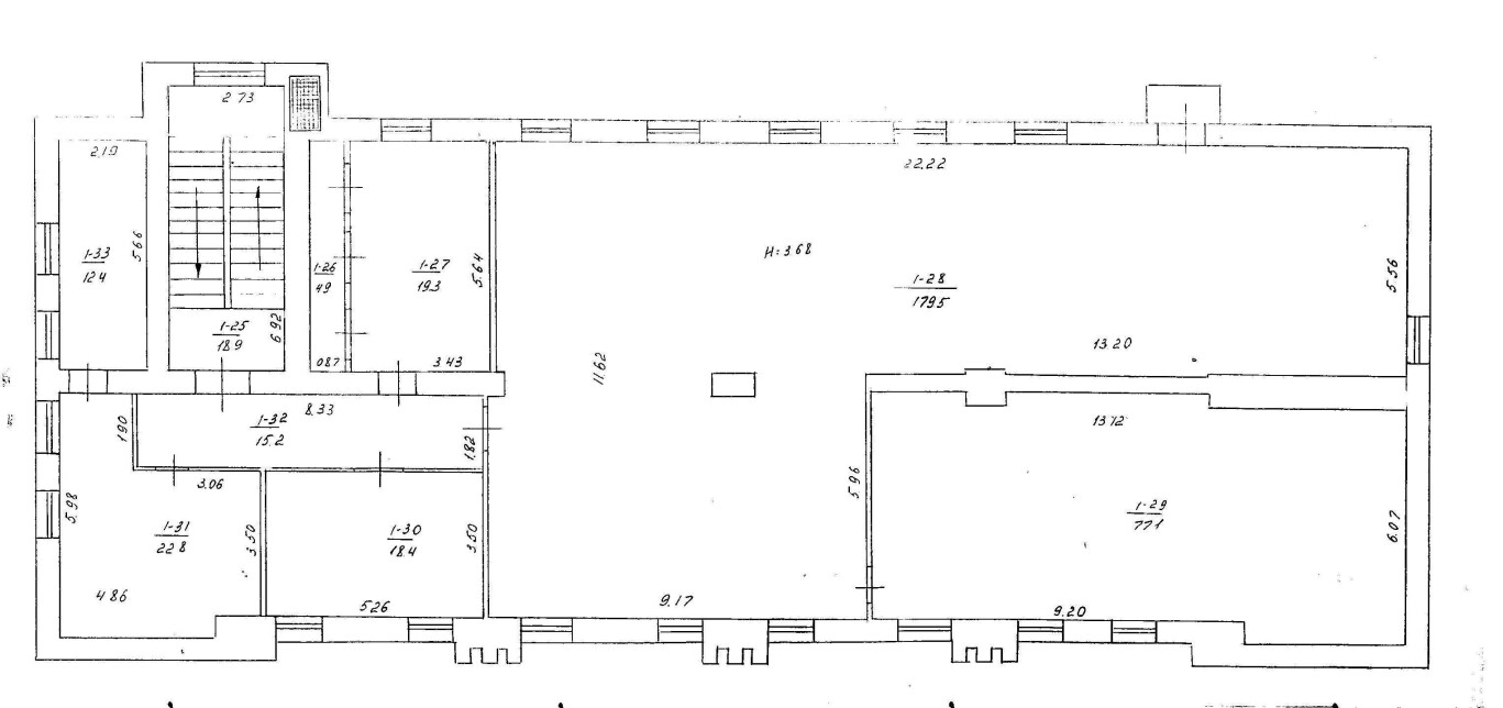
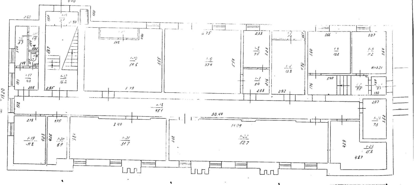
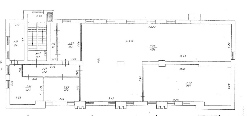
Пропонується до оренди приміщення на 1 та 2 поверхах площею 382,7 кв.м.. Будівля знаходиться на околиці в промисловій частині міста. Характеристики: • кількість поверхів – 2 • Опалення- відсутне • земельна ділянка – 0,0740 га (договір оренди) • дозволена потужність 15 кВт • в будівлі пошкоджені вікна
Адреса місцезнаходження майна:
Україна, Чернігівська обл., Чернігів, Елеваторна вулиця, 6
Схожі пропозиції
27.09.2024
Чернігівська обл., м. Чернігів, вул. 1 Травня, 175. Оренда – складські приміщення площею 832,6 кв.м (В)
39 465.24 грн
47.40 грн / м2
Приміщення
Чернігівська обл., м. Чернігів, вул. 1 Травня, 175. Оренда – складські приміщення площею 832,6 кв.м (В)
Україна, Чернігівська обл., м. Чернігів, вул. 1 Травня, 175
15.10.2025
Чернігівська обл., с-ще Остер, вул. Збанацького, 21. Оренда – приміщення 2 поверху площею 272,50 кв.м (В)
5 665.28 грн
20.79 грн / м2
Приміщення
Чернігівська обл., с-ще Остер, вул. Збанацького, 21. Оренда – приміщення 2 поверху площею 272,50 кв.м (В)
Україна, Чернігівська обл., с-ще Остер, вул. Збанацького, 21
01.06.2023
Чернігівська обл., м. Чернігів, пр-т. Миру, 28. Оренда – приміщення 2-го поверху площею 43,6 кв.м. (В)
6 504.68 грн
149.19 грн / м2
Приміщення
Чернігівська обл., м. Чернігів, пр-т. Миру, 28. Оренда – приміщення 2-го поверху площею 43,6 кв.м. (В)
Україна, Чернігівська обл., м. Чернігів, проспект Миру, 28
01.08.2023
Чернігівська обл., м. Новгород-Сіверський, вул. Вокзальна, 9а. Оренда – нежитлове приміщення 1-го поверху, площею 44,75 кв.м. (В)
501.20 грн
11.20 грн / м2
Приміщення
Чернігівська обл., м. Новгород-Сіверський, вул. Вокзальна, 9а. Оренда – нежитлове приміщення 1-го поверху, площею 44,75 кв.м. (В)
Україна, Чернігівська обл., м. Новгород-Сіверський, вулиця Вокзальна, 9А
Переглянуті пропозиції
Львівська обл., Буський р-н, м. Буськ, вул. Заводська, 3Б. Оренда – будівля площею 403,20 кв.м. (В)
7 338.24 грн
18.20 грн / м2
Будівля
Львівська обл., Буський р-н, м. Буськ, вул. Заводська, 3Б. Оренда – будівля площею 403,20 кв.м. (В)
Україна, Львівська обл., м. Буськ, вул. Заводська, 3Б
23.02.2024
Львівська обл., с. Березівка, вул. Центральна, 26. Оренда – приміщення одноповерхової будівлі площею 24,90 кв. м. (В)
298.80 грн
12.00 грн / м2
Приміщення
Львівська обл., с. Березівка, вул. Центральна, 26. Оренда – приміщення одноповерхової будівлі площею 24,90 кв. м. (В)
Україна, Львівська обл., с. Березівка, вул. Центральна, 26