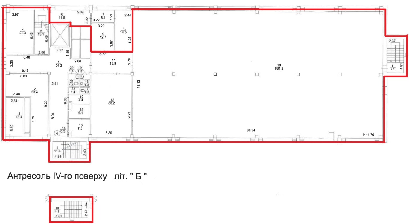
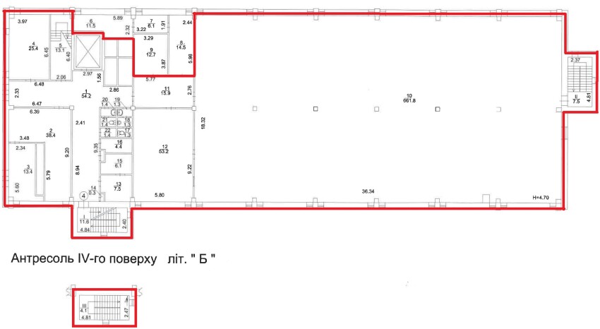
ДОВГОСТРОКОВА ОРЕНДА! м. Київ, вул. Салютна, 5а, літ. «Б»; Оренда – приміщення 3-го та 4-го поверхів площею 992,8 кв.м. (В)

122 720.01 грн
123.61 грн / м2
Україна, м.Київ, Київ, вулиця Салютна, 5А
Перейти до аукціону на сайті
  • Інформація
  • Опис
  • Документи
Дата оголошення пропозиції:
02 листопада 2023
Площа:
992.80 м2
Тип об’єкта:
Приміщення
Тип аукціону:
Англійський аукціон
Статус аукціону:
Аукціон не відбувся
Тип угоди:
Оренда
Розмір мінімального кроку:
1 500.00 ₴
Розмір гарантійного внеску:
73 632.00 ₴
Початок прийому пропозицій:
02.11.2023 14:50:31
Завершення прийому пропозицій:
04.12.2023 20:00:00
Проведення аукціону:
05.12.2023 12:10:00
Лот:
CLE001-UA-20231102-47144
№ лоту (УТК):
UTK040422_06T
Лот виставляється на торги (раз):
10
Стислий опис майна:
Пропонуються до оренди приміщення 3-го та 4-го поверху, літ. «Б», площею 992,8 кв.м . Будівля розташована в Шевченківському районі міста Києва, місцевість Нивки. Поруч розвинена інфраструктура, зупинки маршрутного транспорту, супермаркети, бізнес-центри, фінансові заклади, 5 хв. від ст. м. «Нивки». Вхід з двору. Доступ 24/7. Характеристики • кількість поверхів – 4; • сан. вузол, каналізація – присутні; • площа будівлі – літ. «Б» - 4892,1 м2; • опалення централізоване (міське); • земельна ділянка – 0,6317 га;
Адреса місцезнаходження майна:
Україна, м.Київ, Київ, вулиця Салютна, 5А
Схожі пропозиції
20.02.2024
м. Київ, вул. Антоновича, 40;  Оренда–Будівля, площею 253,0 кв.м. (В)
55 670.12 грн
220.04 грн / м2
Приміщення
м. Київ, вул. Антоновича, 40; Оренда–Будівля, площею 253,0 кв.м. (В)
Україна, м.Київ, Київ, вул. Антоновича, 40
26.12.2024
ДОВГОСТРОКОВА ОРЕНДА!  м. Київ, вул. Василя Макуха (Шевцова Івана),5; Оренда – приміщення 3-го поверху площею 905,3 кв.м. (В)
132 137.59 грн
145.96 грн / м2
Приміщення
ДОВГОСТРОКОВА ОРЕНДА! м. Київ, вул. Василя Макуха (Шевцова Івана),5; Оренда – приміщення 3-го поверху площею 905,3 кв.м. (В)
Україна, м.Київ, Київ, вул. Василя Макуха (Шевцова Івана), 5
м. Київ, вул. Антоновича, 40, оренда – приміщення 1-го поверху, площею 66,60 кв.м. (В)
37 511.12 грн
563.23 грн / м2
Приміщення
м. Київ, вул. Антоновича, 40, оренда – приміщення 1-го поверху, площею 66,60 кв.м. (В)
Україна, м.Київ, Київ, вул. Антоновича, 40
Переглянуті пропозиції
22.04.2025
Полтавська обл., Миргородський р-н, смт. Велика Багачка, вулиця Чекалових, 17. Оренда – приміщення 2-го поверху площею 152,83 кв.м. (В)
4 973.09 грн
22.84 грн / м2
Приміщення
Полтавська обл., Миргородський р-н, смт. Велика Багачка, вулиця Чекалових, 17. Оренда – приміщення 2-го поверху площею 152,83 кв.м. (В)
Україна, Полтавська обл., Миргородський р-н, смт. Велика Багачка, вулиця Чекалових, 17
29.07.2025
Полтавська обл., м. Зіньків, вулиця Воздвиженська, 36. Оренда –приміщення 3-го поверху загальною площею 74,12 кв.м. (В)
3 477.71 грн
46.92 грн / м2
Приміщення
Полтавська обл., м. Зіньків, вулиця Воздвиженська, 36. Оренда –приміщення 3-го поверху загальною площею 74,12 кв.м. (В)
Україна, Полтавська обл., Зіньків, вулиця Воздвиженська, 36
17.11.2023
Полтавська обл., Кременчуцький р-н, с. Погреби, вул. Шевченка, буд.72. Оренда – Будівля площею 64,90 кв.м. (В)
1 321.36 грн
20.36 грн / м2
Будівля
Полтавська обл., Кременчуцький р-н, с. Погреби, вул. Шевченка, буд.72. Оренда – Будівля площею 64,90 кв.м. (В)
Україна, Полтавська обл., Кременчуцький р-н, с. Погреби, вул. Шевченка, буд.72
01.10.2024
Рівненська обл., Вараський р-н. смт. Зарічне, вул. Центральна, 6а. Оренда – приміщення 1 поверху площею 53,40 м. кв. (В)
3 748.68 грн
70.20 грн / м2
Приміщення
Рівненська обл., Вараський р-н. смт. Зарічне, вул. Центральна, 6а. Оренда – приміщення 1 поверху площею 53,40 м. кв. (В)
Україна, Рівненська обл., Вараський р-н. смт. Зарічне, вул. Центральна, 6а