Рівненська обл., Рівненський р-н, с. Моквин, вул. Шевченка, 3. Оренда – виробничі приміщення загальною площею 144,7 м.кв. (В)

2 144.45 грн
14.82 грн / м2
Україна, Рівненська обл., Рівненський р-н, с. Моквин, вул. Шевченка, 3
Перейти до аукціону на сайті
  • Інформація
  • Опис
  • Документи
Дата оголошення пропозиції:
27 листопада 2023
Площа:
144.70 м2
Тип об’єкта:
Приміщення
Тип аукціону:
Англійський аукціон
Статус аукціону:
Аукціон не відбувся
Тип угоди:
Оренда
Розмір мінімального кроку:
100.00 ₴
Розмір гарантійного внеску:
1 286.67 ₴
Початок прийому пропозицій:
27.11.2023 15:29:11
Завершення прийому пропозицій:
27.12.2023 20:00:00
Проведення аукціону:
28.12.2023 11:20:00
Лот:
CLE001-UA-20231127-93052
№ лоту (УТК):
UTK160821_06P
Лот виставляється на торги (раз):
10
Стислий опис майна:
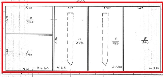
Пропонуються до оренди виробничі приміщення загальною площею 144,7 м.кв. ( 1 поверх) Будівлі знаходяться в центрі села, інфраструктура досить розвинена - поряд магазини, сільська рада. Можливість передачі приміщень в суборенду. Можливість внутрішніх перепланувань. Характеристики: Кількість поверхів – 1; Загальна площа – 239,2 м.кв.; Площа, запропонована до оренди – 144,7 м.кв.; Опалення – відсутнє; Земельна ділянка - площа 0,0830 га.
Адреса місцезнаходження майна:
Україна, Рівненська обл., Рівненський р-н, с. Моквин, вул. Шевченка, 3
Схожі пропозиції
03.04.2024
Рівненська обл., Рівненський р-н, с. Пустомити, вул. Радянська, 41. Оренда – виробничі приміщення площею 21,80 кв.м. (В)
375.18 грн
17.21 грн / м2
Приміщення
Рівненська обл., Рівненський р-н, с. Пустомити, вул. Радянська, 41. Оренда – виробничі приміщення площею 21,80 кв.м. (В)
Україна, Рівненська обл., Рівненський р-н, с. Пустомити, вул. Радянська, 41
17.11.2022
Рівненська обл., м. Вараш, м-н Незалежності, 4. Оренда – приміщення 2 поверху, площею 290,5 м.кв. ( В )
5 810.00 грн
20.00 грн / м2
Приміщення
Рівненська обл., м. Вараш, м-н Незалежності, 4. Оренда – приміщення 2 поверху, площею 290,5 м.кв. ( В )
Україна, Рівненська обл., Вараш, майдан Незалежності, 4
21.07.2023
Рівненська обл., м. Рівне, вул. Вишиванки (Орлова), 37   Оренда - приміщення підвалу площею 89,5 кв.м. (П)
10 131.40 грн
113.20 грн / м2
Приміщення
Рівненська обл., м. Рівне, вул. Вишиванки (Орлова), 37 Оренда - приміщення підвалу площею 89,5 кв.м. (П)
Україна, Рівненська обл., Рівне, вул. Вишиванки (Орлова), 37
21.10.2025
Рівненська обл., Рівненський р-н., с. Вітковичі, вул. Ковальська, 1. Оренда – частина приміщення одноповерхової будівлі, площею 10,8 кв.м. (В)
507.60 грн
47.00 грн / м2
Приміщення
Рівненська обл., Рівненський р-н., с. Вітковичі, вул. Ковальська, 1. Оренда – частина приміщення одноповерхової будівлі, площею 10,8 кв.м. (В)
Україна, Рівненська обл., Рівненський р-н., с. Вітковичі, вул. Ковальська, 1
Переглянуті пропозиції
14.09.2022
Сумська обл., Сумський р-н., с. Річки, вул. Центральна, буд. 6. Оренда – приміщення 2-го поверху площею 20,90 кв. м
404.62 грн
19.36 грн / м2
Приміщення
Сумська обл., Сумський р-н., с. Річки, вул. Центральна, буд. 6. Оренда – приміщення 2-го поверху площею 20,90 кв. м
Україна, Сумська обл., Річки, вул. Центральна, буд. 6
19.01.2023
Одеська обл., м. Одеса, вул. Генерала Петрова, 30/2. Оренда – приміщення гаражу, майстерні загальною площею 79,20 кв.м та 2 парко-місця (В)
3 659.04 грн
46.20 грн / м2
Приміщення
Одеська обл., м. Одеса, вул. Генерала Петрова, 30/2. Оренда – приміщення гаражу, майстерні загальною площею 79,20 кв.м та 2 парко-місця (В)
Україна, Одеська обл., м. Одеса, вул. Генерала Петрова, 30/2
15.07.2025
Сумська обл., Сумський р-н, с. Супрунівка, вул. Центральна, буд. 15. Оренда – нежитлове приміщення площею 26,00 кв. м. (В)
546.78 грн
21.03 грн / м2
Приміщення
Сумська обл., Сумський р-н, с. Супрунівка, вул. Центральна, буд. 15. Оренда – нежитлове приміщення площею 26,00 кв. м. (В)
Україна, Сумська обл., Супрунівка, Супрунівка, вул. Центральна, буд. 15
28.12.2023
Івано-Франківська обл., м. Івано-Франківськ, вул. В.Симоненка,1;   Оренда – приміщення 3-го поверху, площею 800,2 м.кв (В)
50 444.61 грн
63.04 грн / м2
Приміщення
Івано-Франківська обл., м. Івано-Франківськ, вул. В.Симоненка,1; Оренда – приміщення 3-го поверху, площею 800,2 м.кв (В)
Україна, Івано-Франківська обл., Івано-Франківськ, вул. Василя Симоненка,1