ДОВГОСТРОКОВА ОРЕНДА! Київська обл., м.Обухів, вул. Трипільська (Будьоного), 53; Оренда–Торговий павільйон, площею 176,5 кв.м. (В)

9 848.70 грн
55.80 грн / м2
Україна, Київська обл., м. Обухів, вулиця Трипільська, 53
Перейти до аукціону на сайті
  • Інформація
  • Опис
  • Документи
Дата оголошення пропозиції:
08 грудня 2023
Площа:
176.50 м2
Тип об’єкта:
Приміщення
Тип аукціону:
Англійський аукціон
Статус аукціону:
Аукціон не відбувся
Тип угоди:
Оренда
Розмір мінімального кроку:
150.00 ₴
Розмір гарантійного внеску:
5 909.22 ₴
Початок прийому пропозицій:
08.12.2023 13:59:36
Завершення прийому пропозицій:
11.01.2024 20:00:00
Проведення аукціону:
12.01.2024 11:30:00
Лот:
CLE001-UA-20231208-57410
№ лоту (УТК):
UTK240621_17T
Лот виставляється на торги (раз):
10
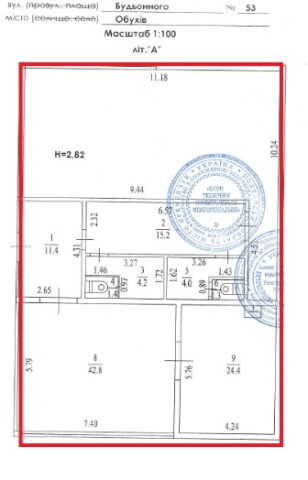
Стислий опис майна:
Пропонується до оренди будівля торгового павільйону, площею 176,5 кв.м. Розташування будівлі 3 км від центру м. Обухів. Безпосередній доступ на кільцеву магістраль м. Обухів. Доступ 24/7. Характеристики: • загальна площа будівлі – 176,5 м2; • кількість поверхів – 1; • опалення – відсутнє; • водопостачання – необхідно провести роботи з відновлення мережі.
Адреса місцезнаходження майна:
Україна, Київська обл., м. Обухів, вулиця Трипільська, 53
Схожі пропозиції
31.05.2023
Київська обл., Білоцерківський р-н, м. Тараща, вул. Шевченка, 37, літ. «А-4» (В). Оренда – приміщення 2-го поверху, площею 190,1 м. кв.
2 828.69 грн
14.88 грн / м2
Приміщення
Київська обл., Білоцерківський р-н, м. Тараща, вул. Шевченка, 37, літ. «А-4» (В). Оренда – приміщення 2-го поверху, площею 190,1 м. кв.
Україна, Київська обл., Тараща, вул. Шевченка, 37, літ. «А-4»
09.07.2025
Київська обл., Броварський р-н, м. Березань, вул. Героїв Небесної Сотні, 12. Оренда – приміщення на 2-му поверсі, площею 11,00 кв.м (В)
500.06 грн
45.46 грн / м2
Приміщення
Київська обл., Броварський р-н, м. Березань, вул. Героїв Небесної Сотні, 12. Оренда – приміщення на 2-му поверсі, площею 11,00 кв.м (В)
Україна, Київська обл., Березань, 07541, Київська обл., Броварський р-н, м. Березань, вул. Героїв Небесної Сотні, 12
13.05.2025
Київська обл., Вишгородський р-н, с-ще Димер, вул. Шевченка, 7, літ. «А». Оренда – група приміщень на 2-му поверсі, загальною площею – 111,70 кв.м (В)
8 571.86 грн
76.74 грн / м2
Приміщення
Київська обл., Вишгородський р-н, с-ще Димер, вул. Шевченка, 7, літ. «А». Оренда – група приміщень на 2-му поверсі, загальною площею – 111,70 кв.м (В)
Україна, Київська обл., Димер, 07330, Київська обл., Вишгородський р-н, с-ще Димер, вул. Шевченка, 7, літ. «А»