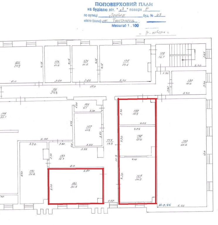
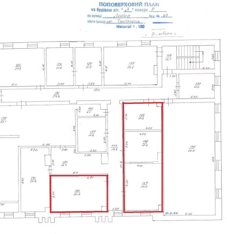
Вінницька обл., Гайсинський р-н., м. Тростянець, вул. Соборна, 47. Оренда – приміщення 3 поверху площею 66,20 кв.м. (В)

331.00 грн
5.00 грн / м2
Україна, Вінницька обл., Гайсинський р-н., м. Тростянець, вул. Соборна, 47
Перейти до аукціону на сайті
  • Інформація
  • Опис
  • Документи
Дата оголошення пропозиції:
12 грудня 2023
Площа:
66.20 м2
Тип об’єкта:
Приміщення
Тип аукціону:
Англійський аукціон
Статус аукціону:
Аукціон не відбувся
Тип угоди:
Оренда
Розмір мінімального кроку:
10.00 ₴
Розмір гарантійного внеску:
198.60 ₴
Початок прийому пропозицій:
12.12.2023 12:16:27
Завершення прийому пропозицій:
11.01.2024 20:00:00
Проведення аукціону:
12.01.2024 11:50:00
Лот:
CLE001-UA-20231212-80265
№ лоту (УТК):
UTK251021_01P
Лот виставляється на торги (раз):
10
Стислий опис майна:
Надається в оренду приміщення 3 поверху площею 66,2 кв.м. Будівля знаходиться в центрі м. Тростянець, поруч супермаркети, Міськ.рада, банки, пошта. Характеристики: Кількість поверхів – 3 Загальна площа – 1803,30 кв.м. Площа запропонована до оренди – 66,20 кв.м. Електро, водопостачання.
Адреса місцезнаходження майна:
Україна, Вінницька обл., Гайсинський р-н., м. Тростянець, вул. Соборна, 47
Схожі пропозиції
Вінницька обл., м. Вінниця, вул. Соборна, 8. Оренда – приміщення 2-го поверху 20.9 кв.м.
2 006.40 грн
96.00 грн / м2
Приміщення
Вінницька обл., м. Вінниця, вул. Соборна, 8. Оренда – приміщення 2-го поверху 20.9 кв.м.
Україна, Вінницька обл., м. Вінниця, вул. Соборна, 8
Вінницька обл., смт. Томашпіль, вул. Криворучка, 1, оренда – приміщення 3 поверху площею 248,2 кв.м. (В)
987.84 грн
3.98 грн / м2
Приміщення
Вінницька обл., смт. Томашпіль, вул. Криворучка, 1, оренда – приміщення 3 поверху площею 248,2 кв.м. (В)
Україна, Вінницька обл., Томашпіль, вул. Криворучка, 1
10.05.2023
Вінницька обл., Могилів-Подільський р-н, с. Козлів, вул. Незалежності, 21. Оренда – приміщення 1-го поверху площею 37,8 кв.м. (В)
577.96 грн
15.29 грн / м2
Приміщення
Вінницька обл., Могилів-Подільський р-н, с. Козлів, вул. Незалежності, 21. Оренда – приміщення 1-го поверху площею 37,8 кв.м. (В)
Україна, Вінницька обл., Козлівка, вул. Незалежності, 21
31.03.2023
Вінницька обл., Тульчинський р-н, смт. Вапнярка, вул. Грушевського, 5. Оренда – приміщення 2 поверху площею 38,4 кв.м. (В)
534.53 грн
13.92 грн / м2
Приміщення
Вінницька обл., Тульчинський р-н, смт. Вапнярка, вул. Грушевського, 5. Оренда – приміщення 2 поверху площею 38,4 кв.м. (В)
Україна, Вінницька обл., Тульчинський р-н, смт. Вапнярка, вул. Грушевського, 5
Переглянуті пропозиції
27.12.2024
Львівська обл., м. Турка, вул. Шевченка,2. Оренда – приміщення 2-го поверху площею 216,10 кв.м. (В)
3 111.84 грн
14.40 грн / м2
Приміщення
Львівська обл., м. Турка, вул. Шевченка,2. Оренда – приміщення 2-го поверху площею 216,10 кв.м. (В)
Україна, Львівська обл., м. Турка, вул. Шевченка, 2
21.01.2025
м. Харків,  пр-т  Ювілейний, 66;   Оренда – приміщення 2-го поверху площею 10,9 кв.м (В)
586.20 грн
53.78 грн / м2
Приміщення
м. Харків, пр-т Ювілейний, 66; Оренда – приміщення 2-го поверху площею 10,9 кв.м (В)
Україна, Харківська обл., Харків, проспект Ювілейний, 66
Одеська обл., м. Подільськ, вул. Соборна, буд.№72. Оренда – приміщення 3-го поверху площею 19,70 кв.м. (В)
500.18 грн
25.39 грн / м2
Приміщення
Одеська обл., м. Подільськ, вул. Соборна, буд.№72. Оренда – приміщення 3-го поверху площею 19,70 кв.м. (В)
Україна, Одеська обл., м. Подільськ, вул. Соборна, буд.№72
08.04.2025
Івано-Франківська обл., Івано-Франківський р-н, м.Тлумач, вул. Шевченка, 20А/1. Оренда – приміщення 1-поверхової будівлі гаражів, площею 121,9 м.кв (В)
6 536.28 грн
53.62 грн / м2
Приміщення
Івано-Франківська обл., Івано-Франківський р-н, м.Тлумач, вул. Шевченка, 20А/1. Оренда – приміщення 1-поверхової будівлі гаражів, площею 121,9 м.кв (В)
Україна, Івано-Франківська обл., Івано-Франківський р-н, м.Тлумач, вул. Шевченка, 20А/1