Рівненська обл., м. Рівне, вул. Соборна, 271. Оренда – приміщення 2-го поверху площею 430,5 кв.м. (В)

30 410.52 грн
70.64 грн / м2
Україна, Рівненська обл., м. Рівне, вул. Соборна, 271
Перейти до аукціону на сайті
  • Інформація
  • Опис
  • Документи
Дата оголошення пропозиції:
12 грудня 2023
Площа:
430.50 м2
Тип об’єкта:
Приміщення
Тип аукціону:
Англійський аукціон
Статус аукціону:
Аукціон не відбувся
Тип угоди:
Оренда
Розмір мінімального кроку:
1 000.00 ₴
Розмір гарантійного внеску:
18 246.31 ₴
Початок прийому пропозицій:
12.12.2023 15:15:40
Завершення прийому пропозицій:
15.01.2024 20:00:00
Проведення аукціону:
16.01.2024 12:55:00
Лот:
CLE001-UA-20231212-32748
№ лоту (УТК):
UTK270522_06P
Лот виставляється на торги (раз):
10
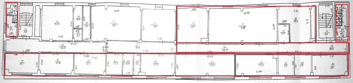
Стислий опис майна:
Пропонуються до оренди приміщення 2-го поверху загальною площею 430,5 кв.м. Будівля знаходиться на околиці міста. Розвинена інфраструктура, досить високі автомобільний та пішохідний потоки. Поряд парк , стоянка для автомобілів . Приміщення потребують реконструкції електромережі. Характеристики: Кількість поверхів – 4 ; Загальна площа – 2647 кв.м.; Площа, запропонована до оренди – 430,5 кв.м.; Опалення – централізоване; Земельна ділянка - площа 0,482 га. (договір оренди)
Адреса місцезнаходження майна:
Україна, Рівненська обл., м. Рівне, вул. Соборна, 271
Схожі пропозиції
21.04.2023
Рівненська обл., Вараський р-н. смт. Зарічне, вул. Центральна, 6а. Оренда – приміщення 3 поверху площею 80,8 м. кв. (В)
1 512.58 грн
18.72 грн / м2
Приміщення
Рівненська обл., Вараський р-н. смт. Зарічне, вул. Центральна, 6а. Оренда – приміщення 3 поверху площею 80,8 м. кв. (В)
Україна, Рівненська обл., Вараський р-н. смт. Зарічне, вул. Центральна, 6а
25.05.2023
Рівненська обл., м. Рівне вул. Орлова, 37. Оренда – приміщення 4го поверху площею 326,3 м. кв. (В)
15 075.06 грн
46.20 грн / м2
Приміщення
Рівненська обл., м. Рівне вул. Орлова, 37. Оренда – приміщення 4го поверху площею 326,3 м. кв. (В)
Україна, Рівненська обл., м. Рівне, вул. Орлова, 37
Рівненська обл., м. Рівне вул. Орлова, 37. Оренда – приміщення 4го поверху площею 326,3 м. кв. (В)
17 920.40 грн
54.92 грн / м2
Приміщення
Рівненська обл., м. Рівне вул. Орлова, 37. Оренда – приміщення 4го поверху площею 326,3 м. кв. (В)
Україна, Рівненська обл., м. Рівне , Рівне вул. Орлова, 37
Рівненська обл., м. Вараш, м-н. Незалежності, 4. Оренда – приміщення 1-го поверху площею 141,70 кв.м. (В)
8 161.92 грн
57.60 грн / м2
Приміщення
Рівненська обл., м. Вараш, м-н. Незалежності, 4. Оренда – приміщення 1-го поверху площею 141,70 кв.м. (В)
Україна, Рівненська обл., м. Вараш, м-н. Незалежності, 4