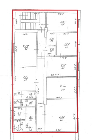
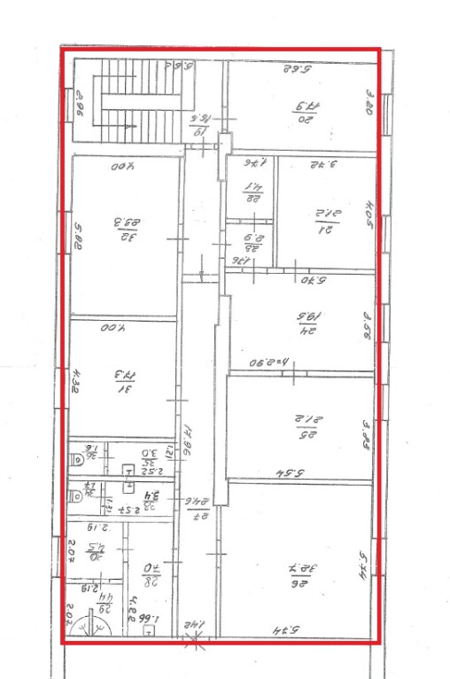
Рівненська обл., м. Рівне, вул. Транспортна, 14.Оренда – приміщення 1-го та 2-го поверху площею 296,4 м. кв. (П)

14 049.36 грн
47.40 грн / м2
Україна, Рівненська обл., м. Рівне, вул. Транспортна, 14
Перейти до аукціону на сайті
  • Інформація
  • Опис
  • Документи
Дата оголошення пропозиції:
15 грудня 2023
Площа:
296.40 м2
Тип об’єкта:
Приміщення
Тип аукціону:
Англійський аукціон
Статус аукціону:
Аукціон не відбувся
Тип угоди:
Оренда
Розмір мінімального кроку:
500.00 ₴
Розмір гарантійного внеску:
8 429.62 ₴
Початок прийому пропозицій:
15.12.2023 14:39:15
Завершення прийому пропозицій:
17.01.2024 20:00:00
Проведення аукціону:
18.01.2024 12:30:00
Лот:
CLE001-UA-20231215-59512
№ лоту (УТК):
UTK201023_28P
Лот виставляється на торги (раз):
2
Стислий опис майна:
Пропонується до оренди приміщення 1 поверху площею 296,4 м.кв. Будівлі знаходиться в східній частині міста (район 12 школи). Щільність транспортних та пішохідних потоків середня. Територія огороджена та впорядкована. Характеристики: Кількість поверхів – 3 ; Загальна площа – 3742,9 м.кв.; Площа, запропонована до оренди – 296,4 м. кв.; Земельна ділянка - площа 0,6348 га.
Адреса місцезнаходження майна:
Україна, Рівненська обл., м. Рівне, вул. Транспортна, 14
Схожі пропозиції
Рівненська обл., Рівненський р-н., м. Здолбунів, вул. Б.Хмельницького, 7. Оренда – приміщення підвалу, 2 поверху та надвірної будівлі загальною площею 661,4 кв.м. (В)
2 784.49 грн
4.21 грн / м2
Приміщення
Рівненська обл., Рівненський р-н., м. Здолбунів, вул. Б.Хмельницького, 7. Оренда – приміщення підвалу, 2 поверху та надвірної будівлі загальною площею 661,4 кв.м. (В)
Україна, Рівненська обл., Рівненський р-н., м. Здолбунів, вул. Б.Хмельницького, 7
10.06.2025
Рівненська обл., м. Рівне вул. В. Чорновола, 1. Оренда – приміщення 5-го поверху загальною площею 103,50м.кв. ( В)
10 121.27 грн
97.79 грн / м2
Приміщення
Рівненська обл., м. Рівне вул. В. Чорновола, 1. Оренда – приміщення 5-го поверху загальною площею 103,50м.кв. ( В)
Україна, Рівненська обл., Рівне, 33028 Рівненська обл., м. Рівне, вул. В. Чорновола, 1
28.06.2023
Рівненська обл., м. Рівне, вул. В.Чорновола, 1. Оренда – приміщення 3-го поверху площею 284,3 кв.м. (В)
33 783.37 грн
118.83 грн / м2
Приміщення
Рівненська обл., м. Рівне, вул. В.Чорновола, 1. Оренда – приміщення 3-го поверху площею 284,3 кв.м. (В)
Україна, Рівненська обл., м. Рівне, вул. В.Чорновола, 1
24.11.2023
Рівненська обл., Рівненський р-н., м. Здолбунів, вул. Б.Хмельницького, 7. Оренда – приміщення підвалу, 2 поверху та надвірної будівлі загальною площею 661,4 кв.м. (В)
8 459.31 грн
12.79 грн / м2
Приміщення
Рівненська обл., Рівненський р-н., м. Здолбунів, вул. Б.Хмельницького, 7. Оренда – приміщення підвалу, 2 поверху та надвірної будівлі загальною площею 661,4 кв.м. (В)
Україна, Рівненська обл., Рівненський р-н., м. Здолбунів, вул. Б.Хмельницького, 7
Переглянуті пропозиції
20.11.2024
Львівська область, с. Батьків, вул. Центральна, 28. Оренда – приміщення 1-го поверху площею 21,20 кв.м. (В)
318.00 грн
3.71 грн / м2
Приміщення
Львівська область, с. Батьків, вул. Центральна, 28. Оренда – приміщення 1-го поверху площею 21,20 кв.м. (В)
Україна, Львівська обл., с. Батьків, вул. Центральна, 28