Дніпропетровська обл., м. Кривий Ріг, вул. Героїв АТО, 30. Оренда – приміщення підвалу площею 154,50 кв.м. (В)

7 324.85 грн
47.41 грн / м2
Україна, Дніпропетровська обл., м. Кривий Ріг, вул. Героїв АТО, 30
Перейти до аукціону на сайті
  • Інформація
  • Опис
  • Документи
Дата оголошення пропозиції:
29 грудня 2023
Площа:
154.50 м2
Тип об’єкта:
Приміщення
Тип аукціону:
Англійський аукціон
Статус аукціону:
Аукціон не відбувся
Тип угоди:
Оренда
Розмір мінімального кроку:
600.00 ₴
Розмір гарантійного внеску:
4 394.91 ₴
Початок прийому пропозицій:
29.12.2023 17:00:46
Завершення прийому пропозицій:
29.01.2024 20:00:00
Проведення аукціону:
30.01.2024 12:40:00
Лот:
CLE001-UA-20231229-16038
№ лоту (УТК):
UTK010923_02P
Лот виставляється на торги (раз):
4
Стислий опис майна:
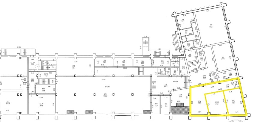
Пропонується до оренди приміщення підвалу з окремим входом площею 154,50 кв.м (приміщення №273, №№273а-273в). Розташування – 3-4-поверхова будівля (літ.А-4-5) знаходиться в центральному районі міста. Поруч знаходяться відділення банку, високий автомобільний і пішохідний потоки. Стан приміщення задовільний, підходить для офісу, Ідеальне місце під розвиток будь-якого бізнесу. Можливість передачі приміщень в суборенду. Характеристики: Кількість поверхів – 4-5 Загальна площа – 13040,10 кв.м Площа запропонована до оренди – 154,50 кв.м Електропостачання, теплопостачання, водопостачання централізоване; Площа земельної ділянки – 0,4712 га (договір оренди) Ресурсні податки – 8,32 грн за 1 кв.м
Адреса місцезнаходження майна:
Україна, Дніпропетровська обл., м. Кривий Ріг, вул. Героїв АТО, 30
Схожі пропозиції
09.04.2024
Дніпропетровська обл., м. Кривий Ріг, вул. Водоп`янова, 1а;  Оренда – приміщення 2-го поверху, площею 569,4 кв.м. (В)
5 124.60 грн
9.00 грн / м2
Приміщення
Дніпропетровська обл., м. Кривий Ріг, вул. Водоп`янова, 1а; Оренда – приміщення 2-го поверху, площею 569,4 кв.м. (В)
Україна, Дніпропетровська обл., Кривий Ріг, вулиця Водоп'янова, 1а
13.09.2023
Дніпропетровська обл., м. Дніпро, вул. Героїв, 14. Оренда – приміщення 2-го поверху площею 33,70 кв.м. (В)
3 370.00 грн
100.00 грн / м2
Приміщення
Дніпропетровська обл., м. Дніпро, вул. Героїв, 14. Оренда – приміщення 2-го поверху площею 33,70 кв.м. (В)
Україна, Дніпропетровська обл., м. Дніпро, вул. Героїв, 14
18.10.2024
Дніпропетровська обл., м. Кривий Ріг, вул. Героїв АТО, 30. Оренда – приміщення підвалу площею 154,50 кв.м. (В)
7 324.85 грн
47.41 грн / м2
Приміщення
Дніпропетровська обл., м. Кривий Ріг, вул. Героїв АТО, 30. Оренда – приміщення підвалу площею 154,50 кв.м. (В)
Україна, Дніпропетровська обл., м. Кривий Ріг, вул. Героїв АТО, 30
Дніпропетровська обл., м. Кривий Ріг, вул. Героїв АТО, 30. Оренда – приміщення 1-го поверху площею 45,3 кв.м.(В)
1 415.63 грн
31.25 грн / м2
Приміщення
Дніпропетровська обл., м. Кривий Ріг, вул. Героїв АТО, 30. Оренда – приміщення 1-го поверху площею 45,3 кв.м.(В)
Україна, Дніпропетровська обл., м. Кривий Ріг, вул. Героїв АТО, 30
Переглянуті пропозиції
27.09.2024
Полтавська обл., Лубенський р-н, с.Новоаврамівка, вул.Центральна, буд.14;   Оренда–будівля площею 62,1 кв.м. (В)
632.80 грн
10.19 грн / м2
Приміщення
Полтавська обл., Лубенський р-н, с.Новоаврамівка, вул.Центральна, буд.14; Оренда–будівля площею 62,1 кв.м. (В)
Україна, Полтавська обл., с. Новоаврамівка, вул. Центральна, буд. 14
21.02.2023
Довгострокова оренда. м. Київ, вул. Горького (Антоновича), 40. Оренда – приміщення 1-го поверху, площею 538,5 кв. м. (В)
Полтавська обл., Лубенський р-н, с. Засулля, вул. Молодіжна, буд.20. Оренда – одноповерхова будівля площею 189,80 кв.м. (В)
502.97 грн
2.65 грн / м2
Будівля
Полтавська обл., Лубенський р-н, с. Засулля, вул. Молодіжна, буд.20. Оренда – одноповерхова будівля площею 189,80 кв.м. (В)
Україна, Полтавська обл., Лубенський р-н, с. Засулля, вул. Молодіжна, буд.20
16.11.2023
Полтавська обл., Полтавський р-н, cмт. Чутове, вул. Незалежності, 24. Оренда – приміщення 3-го поверху площею 30,60 кв.м. (В)
1 276.63 грн
41.72 грн / м2
Приміщення
Полтавська обл., Полтавський р-н, cмт. Чутове, вул. Незалежності, 24. Оренда – приміщення 3-го поверху площею 30,60 кв.м. (В)
Україна, Полтавська обл., Полтавський р-н, cмт. Чутове, вул. Незалежності, 24