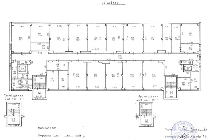
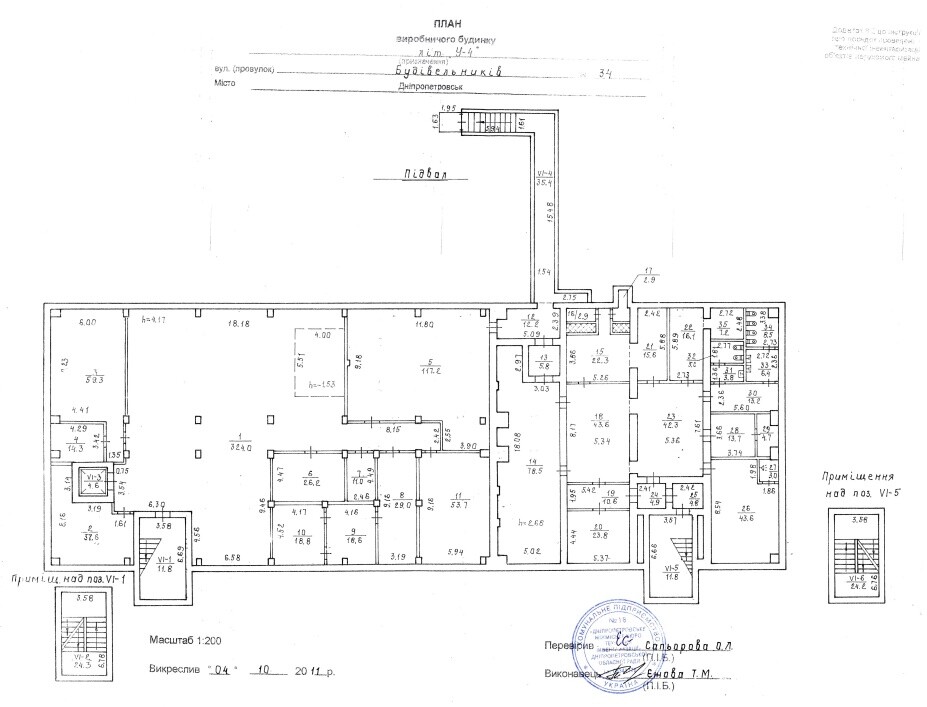
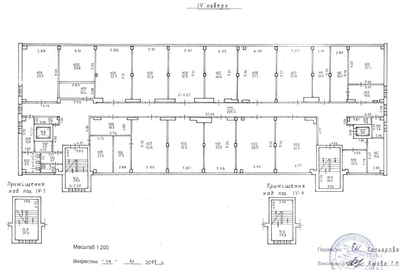
ДОВГОСТРОКОВА ОРЕНДА! Дніпропетровська обл., м. Дніпро, вул. Будівельників, 34. Оренда – нежитлова будівля площею 6273,70 кв.м (В)

297 373.38 грн
47.40 грн / м2
Україна, Дніпропетровська обл., м. Дніпро, вул. Будівельників, 34
Перейти до аукціону на сайті
  • Інформація
  • Опис
  • Документи
Дата оголошення пропозиції:
29 грудня 2023
Площа:
6273.70 м2
Тип об’єкта:
Будівля
Тип аукціону:
Англійський аукціон
Статус аукціону:
Аукціон не відбувся
Тип угоди:
Оренда
Розмір мінімального кроку:
3 000.00 ₴
Розмір гарантійного внеску:
178 424.03 ₴
Початок прийому пропозицій:
29.12.2023 18:54:52
Завершення прийому пропозицій:
29.01.2024 20:00:00
Проведення аукціону:
30.01.2024 12:10:00
Лот:
CLE001-UA-20231229-53194
№ лоту (УТК):
UTK171123_06P
Лот виставляється на торги (раз):
2
Стислий опис майна:
Пропонується до оренди нежитлова будівля площею 6273,70 кв.м. Розташування - будівля знаходиться в Чечелівському районі. Поруч знаходяться стадіон, завод, магазини. Стан приміщення – потребує ремонту. Вхід в приміщення спільний. Ідеальне місце під розвиток будь-якого бізнесу. Характеристики: Кількість поверхів – 4 Загальна площа – 6273,70 кв.м. Площа запропонована до оренди – 6273,70 кв.м. Земельна ділянка – 0,3525 га Ресурсні податки – 2,07 грн за 1 кв.м Комунікації - законсервовано
Адреса місцезнаходження майна:
Україна, Дніпропетровська обл., м. Дніпро, вул. Будівельників, 34
Схожі пропозиції
26.11.2024
Дніпропетровська область, м. Дніпро, вул. Кармалюка, 6а. Оренда – одноповерхова промислова будівля площею 219,70 кв.м. (В)
12 920.56 грн
58.81 грн / м2
Будівля
Дніпропетровська область, м. Дніпро, вул. Кармалюка, 6а. Оренда – одноповерхова промислова будівля площею 219,70 кв.м. (В)
Україна, Дніпропетровська обл., м. Дніпро, вул. Кармалюка, 6а
25.04.2025
Дніпропетровська область, м. Дніпро, вул. Кармалюка, 6а. Оренда – одноповерхова промислова будівля площею 219,70 кв.м. (В)
14 500.20 грн
66.00 грн / м2
Будівля
Дніпропетровська область, м. Дніпро, вул. Кармалюка, 6а. Оренда – одноповерхова промислова будівля площею 219,70 кв.м. (В)
Україна, Дніпропетровська обл., м. Дніпро, вул. Кармалюка, 6а
10.11.2023
Дніпропетровська обл, смт. Петриківка, пр. Петра Калнишевського, 52. Оренда – нежитлова будівля загальною площею 131,3 кв.м (В)
1 562.47 грн
11.90 грн / м2
Будівля
Дніпропетровська обл, смт. Петриківка, пр. Петра Калнишевського, 52. Оренда – нежитлова будівля загальною площею 131,3 кв.м (В)
Україна, Дніпропетровська обл., смт. Петриківка, пр. Петра Калнишевського, 52
03.09.2025
Дніпропетровська обл, м.П’ятихатки, вул. Театральна (Мірошниченка), 107. Оренда – нежитлова будівля з підвалом, загальною площею 145,6 кв.м (В)
2 912.00 грн
20.00 грн / м2
Будівля
Дніпропетровська обл, м.П’ятихатки, вул. Театральна (Мірошниченка), 107. Оренда – нежитлова будівля з підвалом, загальною площею 145,6 кв.м (В)
Україна, Дніпропетровська обл., м. П’ятихатки, вул. Театральна (Мірошниченка), 107
Переглянуті пропозиції
21.07.2023
Рівненська обл., Вараський р-н, с. Мульчиці, вул. Центральна, 16. Оренда – нежитлові приміщення 25,3 кв.м. (П)
1 346.72 грн
53.23 грн / м2
Приміщення
Рівненська обл., Вараський р-н, с. Мульчиці, вул. Центральна, 16. Оренда – нежитлові приміщення 25,3 кв.м. (П)
Україна, Рівненська обл., Вараський р-н, с. Мульчиці, вул. Центральна, 16
21.10.2025
Рівненська обл., Вараський р-н, с. Більська Воля, вул. Шкільна, 14. Оренда – нежитлові приміщення площею 62,8 кв.м. (В)
753.60 грн
12.00 грн / м2
Приміщення
Рівненська обл., Вараський р-н, с. Більська Воля, вул. Шкільна, 14. Оренда – нежитлові приміщення площею 62,8 кв.м. (В)
Україна, Рівненська обл., Більська Воля, вулиця Шкільна, 14