Сумська обл., Сумський р-н., с. Миропілля, вул. Сумська (Леніна), буд. 52; Оренда – нежитлова будівля з підвалом та дизельною площею 233,2 кв.м. (В)

2 234.06 грн
9.58 грн / м2
Україна, Сумська обл., Миропілля, вул. Сумська (Леніна), буд. 52
Перейти до аукціону на сайті
  • Інформація
  • Опис
  • Документи
Дата оголошення пропозиції:
12 січня 2024
Площа:
233.20 м2
Тип об’єкта:
Будівля
Тип аукціону:
Англійський аукціон
Статус аукціону:
Аукціон не відбувся
Тип угоди:
Оренда
Розмір мінімального кроку:
50.00 ₴
Розмір гарантійного внеску:
1 340.43 ₴
Початок прийому пропозицій:
12.01.2024 16:40:06
Завершення прийому пропозицій:
13.02.2024 20:00:00
Проведення аукціону:
14.02.2024 11:20:00
Лот:
CLE001-UA-20240112-25647
№ лоту (УТК):
UTK200721_15Т
Лот виставляється на торги (раз):
10
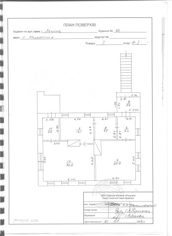
Стислий опис майна:
Пропонується до оренди нежитлове приміщення з підвалом та дизельною площею 233,2 кв.м. Знаходиться в прицентральній частині села в приватній забудові житлових будинків. Потрібно відновлення систем водопостачання, теплопостачання, електропостачання. Стан приміщень аварійний. Характеристики • кількість поверхів – 1; • Загальна площа – 233,2 кв.м.; • Площа запропонована до оренди – 233,2 кв.м.; • Опалення, водопостачання, електропостачання – відсутнє; • земельна ділянка – 0,1063 га (договір оренди ЗД); • стан приміщення – аварійний.
Адреса місцезнаходження майна:
Україна, Сумська обл., Миропілля, вул. Сумська (Леніна), буд. 52
Схожі пропозиції
10.10.2023
Сумська обл., м. Суми, вул. Івана Сірка, буд. 9. Оренда – частина нежитлової будівлі 2-го поверху площею 566,00 кв.м. (В)
26 828.40 грн
47.40 грн / м2
Будівля
Сумська обл., м. Суми, вул. Івана Сірка, буд. 9. Оренда – частина нежитлової будівлі 2-го поверху площею 566,00 кв.м. (В)
Україна, Сумська обл., м. Суми, вул. Івана Сірка, буд. 9
27.10.2023
Сумська обл., Шосткинський р-н, с. Макове, вул. Озерна, буд.1;  Оренда – частина будівлі площею 101,3 кв.м. (В)
506.50 грн
5.00 грн / м2
Будівля
Сумська обл., Шосткинський р-н, с. Макове, вул. Озерна, буд.1; Оренда – частина будівлі площею 101,3 кв.м. (В)
Україна, Сумська обл., с. Макове, вул. Озерна, буд. 1
Сумська обл., м. Глухів, пров. Сергеєва-Ценського, 13. Оренда – будівля площею 164,6 кв.м.
646.88 грн
3.93 грн / м2
Будівля
Сумська обл., м. Глухів, пров. Сергеєва-Ценського, 13. Оренда – будівля площею 164,6 кв.м.
Україна, Сумська обл., м. Глухів, пров. Сергеєва-Ценського, 13
24.11.2022
Сумська обл., м. Суми, вул. Івана Сірка, буд. 9. Оренда – частина 3-го поверху нежитлової будівлі площею 403,90 кв.м. (В)
18 660.18 грн
46.20 грн / м2
Будівля
Сумська обл., м. Суми, вул. Івана Сірка, буд. 9. Оренда – частина 3-го поверху нежитлової будівлі площею 403,90 кв.м. (В)
Україна, Сумська обл., м. Суми, вул. Івана Сірка, буд. 9
Переглянуті пропозиції
Харківський район, c. Липці, вул. Пушкінська, 82. Оренда – приміщення 2-го поверху площею 44,00 кв.м.
2 376.00 грн
54.00 грн / м2
Приміщення
Харківський район, c. Липці, вул. Пушкінська, 82. Оренда – приміщення 2-го поверху площею 44,00 кв.м.
Україна, Харківська обл., Харківський район, c. Липці, вул. Пушкінська, 82
28.09.2023
Рівненська обл., Варашський р-н, с. Дібрівськ, вул.Центральна, 1. Оренда – приміщення 1 поверху площею 25,5 кв. м. (В)
250.50 грн
9.82 грн / м2
Приміщення
Рівненська обл., Варашський р-н, с. Дібрівськ, вул.Центральна, 1. Оренда – приміщення 1 поверху площею 25,5 кв. м. (В)
Україна, Рівненська обл., Варашський р-н, с. Дібрівськ, вул.Центральна, 1