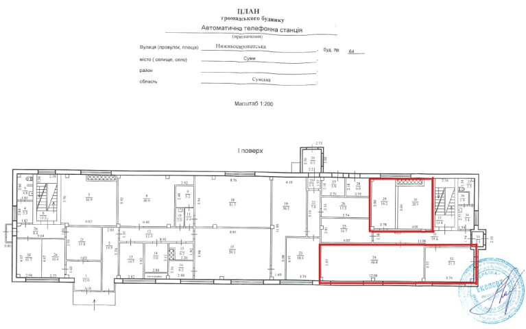
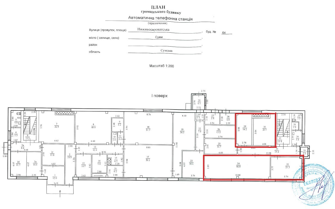
Сумська обл., м. Суми, вул. Нижньосироватська, буд. 64. Оренда – приміщення 1-го поверху площею 104,40 кв.м. (В)

4 948.56 грн
47.40 грн / м2
Україна, Сумська обл., м. Суми, вул. Нижньосироватська, буд. 64
Перейти до аукціону на сайті
  • Інформація
  • Опис
  • Документи
Дата оголошення пропозиції:
15 січня 2024
Площа:
104.40 м2
Тип об’єкта:
Приміщення
Тип аукціону:
Англійський аукціон
Статус аукціону:
Аукціон не відбувся
Тип угоди:
Оренда
Розмір мінімального кроку:
200.00 ₴
Розмір гарантійного внеску:
2 969.14 ₴
Початок прийому пропозицій:
15.01.2024 10:36:32
Завершення прийому пропозицій:
13.02.2024 20:00:00
Проведення аукціону:
14.02.2024 11:55:00
Лот:
CLE001-UA-20240115-45045
№ лоту (УТК):
UTK060922_09P
Лот виставляється на торги (раз):
10
Стислий опис майна:
Пропонуються до оренди приміщення 1-го поверху триповерхової будівлі площею 104,40 кв. м. Будівля знаходиться на околиці міста. Можливість передачі приміщень в суборенду. Наявні всі комунікації. Доступ вільний 24/7. Характеристики: Кількість поверхів – 3; Загальна площа – 1894,10 кв. м.; Площа запропонована до оренди – 104,40 кв. м.; Опалення, електропостачання – наявні; Водопостачання – відсутнє (є можливість користуватись санвузлом загального користування); Земельна ділянка – 0,3944 га (договір оренди)
Адреса місцезнаходження майна:
Україна, Сумська обл., м. Суми, вул. Нижньосироватська, буд. 64
Схожі пропозиції
02.09.2025
Сумська обл., Шосткинський р-н., смт. Свеса, вул. Грушевського (Леніна), буд. 4. Оренда – нежитлове приміщення площею 27,50 кв.м. (В)
500.50 грн
18.20 грн / м2
Приміщення
Сумська обл., Шосткинський р-н., смт. Свеса, вул. Грушевського (Леніна), буд. 4. Оренда – нежитлове приміщення площею 27,50 кв.м. (В)
Україна, Сумська обл., Свеса, Свеса, вул. Грушевського (Леніна), буд. 4
17.06.2020
Сумська обл., м. Глухів, пл. Свободи, 2. Оренда – частина підвального приміщення
1 011.41 грн
9.12 грн / м2
Приміщення
Сумська обл., м. Глухів, пл. Свободи, 2. Оренда – частина підвального приміщення
Україна, Сумська обл., м. Глухів, пл. Свободи, 2
22.04.2025
Сумська обл., м. Суми, вул. Нижньосироватська, 64;   Оренда – приміщення складу площею 42,6 кв. м. (В)
1 278.00 грн
30.00 грн / м2
Приміщення
Сумська обл., м. Суми, вул. Нижньосироватська, 64; Оренда – приміщення складу площею 42,6 кв. м. (В)
Україна, Сумська обл., Суми, вул.Нижньосироватська буд., 64
27.08.2024
Сумська обл., Роменський район, с-ще. Недригайлів, вул. Незалежності, буд. 8. Оренда – приміщення 3-го поверху площею 38,70 кв. м. (В)
715.18 грн
18.48 грн / м2
Приміщення
Сумська обл., Роменський район, с-ще. Недригайлів, вул. Незалежності, буд. 8. Оренда – приміщення 3-го поверху площею 38,70 кв. м. (В)
Україна, Сумська обл., Роменський район, смт. Недригайлів, вул. Незалежності, буд. 8