Полтавська обл., Миргородський р-н., смт. Велика Багачка, вул. Чекалових, 17. Оренда – Приміщення 1-го поверху, загальною площею 113,90 кв.м. (В)

3 510.40 грн
30.82 грн / м2
Україна, Полтавська обл., Миргородський р-н., смт. Велика Багачка, вул. Чекалових, 17
Перейти до аукціону на сайті
  • Інформація
  • Опис
  • Документи
Дата оголошення пропозиції:
15 січня 2024
Площа:
113.90 м2
Тип об’єкта:
Приміщення
Тип аукціону:
Англійський аукціон
Статус аукціону:
Аукціон не відбувся
Тип угоди:
Оренда
Розмір мінімального кроку:
50.00 ₴
Розмір гарантійного внеску:
2 106.24 ₴
Початок прийому пропозицій:
15.01.2024 16:03:04
Завершення прийому пропозицій:
13.02.2024 20:00:00
Проведення аукціону:
14.02.2024 12:50:00
Лот:
CLE001-UA-20240115-50290
№ лоту (УТК):
UTK080722_06P
Лот виставляється на торги (раз):
10
Стислий опис майна:
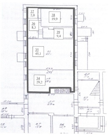
Пропонується до оренди приміщення 1-го поверху, загальною площею 113,90 кв.м., будівля знаходиться в центральній частині смт.Велика Багачка. Характеристики кількість поверхів – 2 загальна площа – 856,40 кв.м.; площа запропонована до оренди 113,90 кв.м.; опалення – наявне; електропостачання – дозволена потужність до 3 кВт; земельна ділянка – 0, 2926 га
Адреса місцезнаходження майна:
Україна, Полтавська обл., Миргородський р-н., смт. Велика Багачка, вул. Чекалових, 17
Схожі пропозиції
21.01.2025
Полтавська обл., Лубенський р-н, с.Новоаврамівка, вул.Центральна, буд.14;   Оренда–будівля площею 62,1 кв.м. (В)
632.80 грн
10.19 грн / м2
Приміщення
Полтавська обл., Лубенський р-н, с.Новоаврамівка, вул.Центральна, буд.14; Оренда–будівля площею 62,1 кв.м. (В)
Україна, Полтавська обл., с. Новоаврамівка, вул. Центральна, буд. 14
Полтавська обл., м. Миргород, вулиця Гоголя, буд. 96/9. Оренда – приміщення 3-го поверху площею 27,8 кв.м.
1 414.46 грн
50.88 грн / м2
Приміщення
Полтавська обл., м. Миргород, вулиця Гоголя, буд. 96/9. Оренда – приміщення 3-го поверху площею 27,8 кв.м.
Україна, Полтавська обл., м. Миргород, вул. Гоголя, буд. 96/9
24.01.2024
Полтавська обл., Полтавський р-н, м. Полтава, вулиця Соборності, 33. Оренда – приміщення 3-го поверху площею 174,50 кв.м. (В)
16 582.74 грн
95.03 грн / м2
Приміщення
Полтавська обл., Полтавський р-н, м. Полтава, вулиця Соборності, 33. Оренда – приміщення 3-го поверху площею 174,50 кв.м. (В)
Україна, Полтавська обл., Полтавський р-н, м. Полтава, вул. Соборності, 33
Полтавська обл., м. Полтава, вул. Загородня, буд. 30. Оренда – приміщення 2-го поверху
335.87 грн
20.48 грн / м2
Приміщення
Полтавська обл., м. Полтава, вул. Загородня, буд. 30. Оренда – приміщення 2-го поверху
Україна, Полтавська обл., м. Полтава, вул. Загородня, буд. 30
Переглянуті пропозиції
27.09.2024
Сумська обл., м. Глухів, пров. Сергеєва-Ценського, буд. 13;   Оренда – тех.будівля площею 164,6 кв.м. (В)
984.31 грн
5.98 грн / м2
Будівля
Сумська обл., м. Глухів, пров. Сергеєва-Ценського, буд. 13; Оренда – тех.будівля площею 164,6 кв.м. (В)
Україна, Сумська обл., Глухів, пров. Сергеєва-Ценського, 13
04.02.2025
Львівська обл., м. Городок, вул. Львівська, 16;  Оренда – приміщення 4-го поверху площею 156,6 кв. м. (В)
1 006.94 грн
6.43 грн / м2
Приміщення
Львівська обл., м. Городок, вул. Львівська, 16; Оренда – приміщення 4-го поверху площею 156,6 кв. м. (В)
Україна, Львівська обл., Городок, Львівська вулиця, 16
17.03.2023
Дніпропетровська обл., м. Синельникове, вул. Богми, 4. Оренда – приміщення гаражу площею 30,7 кв.м. (В)
626.28 грн
20.40 грн / м2
Приміщення
Дніпропетровська обл., м. Синельникове, вул. Богми, 4. Оренда – приміщення гаражу площею 30,7 кв.м. (В)
Україна, Дніпропетровська обл., Синельникове, вулиця Богми, 4
01.09.2023
Дніпропетровська обл., смт Софіївка, бул. Шевченка, 17А. Оренда – приміщення гаражу площею 33,00 кв.м. (В)
429.00 грн
13.00 грн / м2
Приміщення
Дніпропетровська обл., смт Софіївка, бул. Шевченка, 17А. Оренда – приміщення гаражу площею 33,00 кв.м. (В)
Україна, Дніпропетровська обл., смт Софіївка, ул. Шевченка, 17А