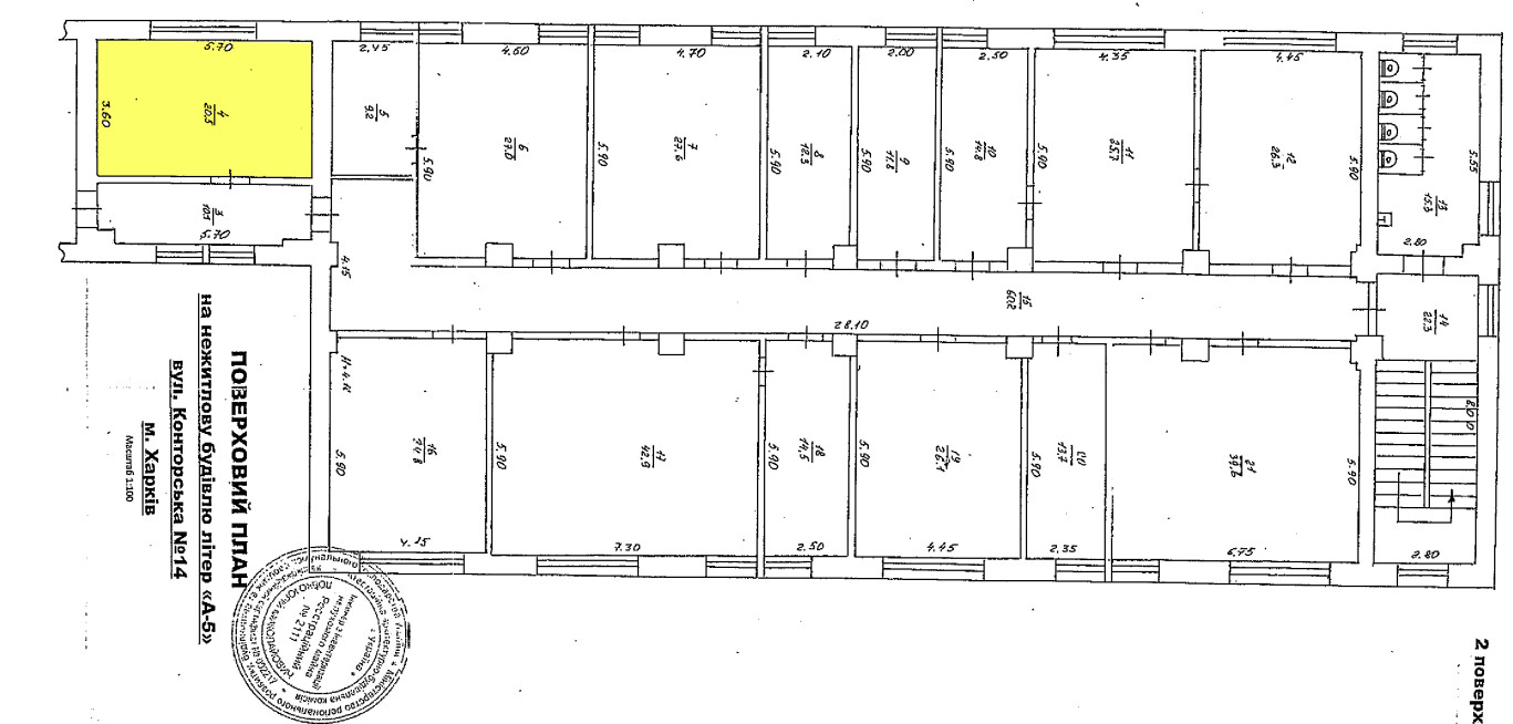
м. Харків, вул. Конторська,14.Оренда – приміщення 2-го поверху площею 20,5 кв.м (В)

1 420.65 грн
69.30 грн / м2
Україна, Харківська обл., м. Харків, вул. Конторська,14
Перейти до аукціону на сайті
  • Інформація
  • Опис
  • Документи
Дата оголошення пропозиції:
15 січня 2024
Площа:
20.50 м2
Тип об’єкта:
Приміщення
Тип аукціону:
Англійський аукціон
Статус аукціону:
Аукціон не відбувся
Тип угоди:
Оренда
Розмір мінімального кроку:
50.00 ₴
Розмір гарантійного внеску:
852.39 ₴
Початок прийому пропозицій:
15.01.2024 16:35:40
Завершення прийому пропозицій:
13.02.2024 20:00:00
Проведення аукціону:
14.02.2024 11:50:00
Лот:
CLE001-UA-20240115-92479
№ лоту (УТК):
UTK070723_09P
Лот виставляється на торги (раз):
6
Стислий опис майна:
Пропонується до оренди приміщення 4-го поверху площею 20,5 кв.м. Будівля в центрі міста Харкова. 15 хв до метро Центральний ринок. Характеристики: Кількість поверхів – 4; Загальна площа – 5611,00 кв.м_ Площа запропонована до оренди -20,5 кв.м Дозволена потужність – 3 кВт Теплопостачання-централізоване Земельна ділянка – 0,5169 га
Адреса місцезнаходження майна:
Україна, Харківська обл., м. Харків, вул. Конторська,14
Схожі пропозиції
16.11.2023
Харківська обл., Харківський р-н, смт. Безлюдівка, вул. Зміївська, 55;  Оренда- приміщення будівлі площею 202,40 кв.м. (В)
4 979.04 грн
24.60 грн / м2
Приміщення
Харківська обл., Харківський р-н, смт. Безлюдівка, вул. Зміївська, 55; Оренда- приміщення будівлі площею 202,40 кв.м. (В)
Україна, Харківська обл., Безлюдівка, вулиця Зміївська, 55
21.08.2024
Харківська обл., м. Харків, пр-т Олександрівський, 83. Оренда – приміщеня на 5-му поверсі загальною площею 118,00 кв.м. (В)
6 448.26 грн
54.65 грн / м2
Приміщення
Харківська обл., м. Харків, пр-т Олександрівський, 83. Оренда – приміщеня на 5-му поверсі загальною площею 118,00 кв.м. (В)
Україна, Харківська обл., м. Харків, пр-т Олександрівський, 83
Харківська обл., Чугуївський р-н, смт. Старий Салтів, вул. Перемоги, 20. Оренда – приміщення 2-го поверху будівлі А-2, площею 46,50 кв.м. (В)
732.84 грн
15.76 грн / м2
Приміщення
Харківська обл., Чугуївський р-н, смт. Старий Салтів, вул. Перемоги, 20. Оренда – приміщення 2-го поверху будівлі А-2, площею 46,50 кв.м. (В)
Україна, Харківська обл., смт. Старий Салтів, вул. Перемоги, 20
30.04.2024
м. Харків, вул.Сумгаїтська, 9а. Оренда – приміщення 1-го поверху, площею 67,1 кв.м  (В)
5 749.13 грн
85.68 грн / м2
Приміщення
м. Харків, вул.Сумгаїтська, 9а. Оренда – приміщення 1-го поверху, площею 67,1 кв.м (В)
Україна, Харківська обл., м. Харків, вул. Сумгаїтська, 9а
Переглянуті пропозиції
13.05.2025
Івано-Франківська обл., Івано-Франківський р-н, м.Тлумач, вул. Шевченка, 20А/1. Оренда – приміщення 1-поверхової будівлі гаражів, площею 121,9 м.кв (В)
5 556.20 грн
45.58 грн / м2
Приміщення
Івано-Франківська обл., Івано-Франківський р-н, м.Тлумач, вул. Шевченка, 20А/1. Оренда – приміщення 1-поверхової будівлі гаражів, площею 121,9 м.кв (В)
Україна, Івано-Франківська обл., Івано-Франківський р-н, м.Тлумач, вул. Шевченка, 20А/1
24.11.2023
Рівненська обл., м. Рівне, вул. Боярка, 54 а, б. Оренда – комплекс будівель площею 620,1 м. кв. (В)
29 392.74 грн
47.40 грн / м2
Будівля
Рівненська обл., м. Рівне, вул. Боярка, 54 а, б. Оренда – комплекс будівель площею 620,1 м. кв. (В)
Україна, Рівненська обл., м. Рівне, вул. Боярка, 54 а, б
21.08.2024
Полтавська обл., Полтавський р-н, cмт. Чутове, вул. Незалежності, 24. Оренда – приміщення 3-го поверху площею 30,60 кв.м. (В)
729.50 грн
23.84 грн / м2
Приміщення
Полтавська обл., Полтавський р-н, cмт. Чутове, вул. Незалежності, 24. Оренда – приміщення 3-го поверху площею 30,60 кв.м. (В)
Україна, Полтавська обл., Полтавський р-н, cмт. Чутове, вул. Незалежності, 24
21.03.2024
Чернігівська обл., м. Чернігів, проспект Миру, 35Б. Оренда – офісні приміщення 1 та 2 поверхів загальною площею 242,8 кв.м. (В)
18 865.56 грн
77.70 грн / м2
Офіс
Чернігівська обл., м. Чернігів, проспект Миру, 35Б. Оренда – офісні приміщення 1 та 2 поверхів загальною площею 242,8 кв.м. (В)
Україна, Чернігівська обл., м. Чернігів, проспект Миру, 35Б