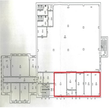
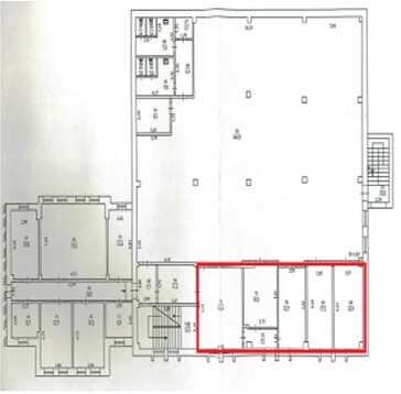
Львівська обл., м. Стрий, вул. Поштова, 5. Оренда – приміщення 3-го поверху площею 114,60 кв. м. (В)

2 062.80 грн
18.00 грн / м2
Україна, Львівська обл., м. Стрий, вул. Поштова, 5, вул. Поштова, 5
Перейти до аукціону на сайті
  • Інформація
  • Опис
  • Документи
Дата оголошення пропозиції:
22 січня 2024
Площа:
114.60 м2
Тип об’єкта:
Приміщення
Тип аукціону:
Англійський аукціон
Статус аукціону:
Аукціон не відбувся
Тип угоди:
Оренда
Розмір мінімального кроку:
60.00 ₴
Розмір гарантійного внеску:
1 237.68 ₴
Початок прийому пропозицій:
22.01.2024 15:24:46
Завершення прийому пропозицій:
22.02.2024 20:00:00
Проведення аукціону:
23.02.2024 12:40:00
Лот:
CLE001-UA-20240122-23015
№ лоту (УТК):
UTK150721_03P
Лот виставляється на торги (раз):
10
Стислий опис майна:
Пропонуються до оренди приміщення 3-го поверху площею 114,60 кв. м.. Будівля знаходиться в центральній частині міста, розвинена інфраструктура, високі автомобільний та пішохідний потоки. Поруч знаходиться відділення Нової пошти, відділення банків, магазини, супермаркети. Характеристики: кількість поверхів – 3; Централізоване газове опалення, водопостачання та водовідведення; Вільна до використання електропостачання – 15 кВт; земельна ділянка –0,1374га (договір оренди)
Адреса місцезнаходження майна:
Україна, Львівська обл., м. Стрий, вул. Поштова, 5, вул. Поштова, 5
Схожі пропозиції
30.03.2023
Львівська обл., с. Березівка, вул. Центральна, 26. Оренда – приміщення одноповерхової будівлі площею 24,90 кв. м. (В)
500.24 грн
20.09 грн / м2
Приміщення
Львівська обл., с. Березівка, вул. Центральна, 26. Оренда – приміщення одноповерхової будівлі площею 24,90 кв. м. (В)
Україна, Львівська обл., с. Березівка, вул. Центральна, 26
22.01.2025
Львівська обл., м. Кам’янка-Бузька, вул. Грушевського, 15;  Оренда – приміщення 1-го поверху площею 14,20 кв. м. (В)
2 517.09 грн
177.26 грн / м2
Приміщення
Львівська обл., м. Кам’янка-Бузька, вул. Грушевського, 15; Оренда – приміщення 1-го поверху площею 14,20 кв. м. (В)
Україна, Львівська обл., Кам’янка-Бузька, вул. Грушевського, 15
Львівська обл., м. Жидачів, пл. Свободи, 8. Оренда – приміщення 2-го поверху площею 14,10 кв. м. (В)
558.36 грн
39.60 грн / м2
Приміщення
Львівська обл., м. Жидачів, пл. Свободи, 8. Оренда – приміщення 2-го поверху площею 14,10 кв. м. (В)
Україна, Львівська обл., м. Жидачів, пл. Свободи, 8
09.05.2023
Львівська обл., м. Борислав, вул. Д.Галицького,32. Оренда – приміщення 2-го поверху площею 145,02 кв.м. (В)
2 669.82 грн
18.41 грн / м2
Приміщення
Львівська обл., м. Борислав, вул. Д.Галицького,32. Оренда – приміщення 2-го поверху площею 145,02 кв.м. (В)
Україна, Львівська обл., м. Борислав, вул. Д.Галицького,32
Переглянуті пропозиції
28.06.2024
Сумська обл., Роменський район, смт. Недригайлів, вул. Незалежності, буд. 8;  Оренда – приміщення 2-го поверху площею 9,00 кв. м. (В)
504.00 грн
56.00 грн / м2
Приміщення
Сумська обл., Роменський район, смт. Недригайлів, вул. Незалежності, буд. 8; Оренда – приміщення 2-го поверху площею 9,00 кв. м. (В)
Україна, Сумська обл., Недригайлів, вулиця Незалежності, 8
Львівська обл., Турківський р-н, м. Турка, вул. Міцкевича, 59а. Оренда –  майновий комплекс площею 625,3 кв.м. (В)
8 741.69 грн
13.98 грн / м2
Комплекс
Львівська обл., Турківський р-н, м. Турка, вул. Міцкевича, 59а. Оренда – майновий комплекс площею 625,3 кв.м. (В)
Україна, Львівська обл., м. Турка, вул. Міцкевича, 59а
15.10.2025
Чернігівська обл., с-ще Варва, вул. Шевченка, 39. Оренда – приміщення 2-го поверху площею 212,80 кв.м ( В)
4 894.40 грн
23.00 грн / м2
Приміщення
Чернігівська обл., с-ще Варва, вул. Шевченка, 39. Оренда – приміщення 2-го поверху площею 212,80 кв.м ( В)
Україна, Чернігівська обл., Варва, вул. Шевченка, 39
21.02.2024
Харківська обл., м. Харків, вул. Коцарська, 45, літер «А-4»;  Оренда – приміщення на 2-му поверсі загальною площею 27,60 кв.м. (В)
2 119.68 грн
76.80 грн / м2
Приміщення
Харківська обл., м. Харків, вул. Коцарська, 45, літер «А-4»; Оренда – приміщення на 2-му поверсі загальною площею 27,60 кв.м. (В)
Україна, Харківська обл., Харків, вулиця Коцарська, 45