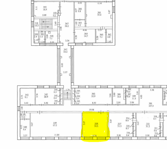
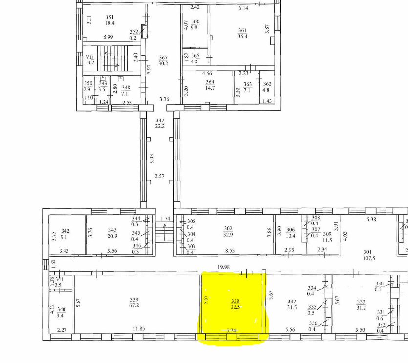
Дніпропетровська обл., м. Жовті Води, вул. Свободи, 39; Оренда – приміщення 3-го поверху площею 32,5 кв.м. (В)

487.50 грн
15.00 грн / м2
Україна, Дніпропетровська обл., Жовті Води, бульвар Свободи, 39
Перейти до аукціону на сайті
  • Інформація
  • Опис
  • Документи
Дата оголошення пропозиції:
25 січня 2024
Площа:
32.50 м2
Тип об’єкта:
Приміщення
Тип аукціону:
Англійський аукціон
Статус аукціону:
Аукціон не відбувся
Тип угоди:
Оренда
Розмір мінімального кроку:
15.00 ₴
Розмір гарантійного внеску:
292.50 ₴
Початок прийому пропозицій:
25.01.2024 14:25:31
Завершення прийому пропозицій:
28.02.2024 20:00:00
Проведення аукціону:
29.02.2024 12:05:00
Лот:
CLE001-UA-20240125-19919
№ лоту (УТК):
UTK011122_5T
Лот виставляється на торги (раз):
10
Стислий опис майна:
Пропонується до оренди приміщення 3-го поверху площею 32,5 кв.м. Розташування – 3-поверхова будівля (літ.А-Б-В, приміщ.№338), знаходиться в центральному районі міста. Поруч знаходяться відділення банку, високий автомобільний і пішохідний потоки. Стан приміщення задовільний, підходить для офісу, Ідеальне місце під розвиток будь-якого бізнесу. Можливість передачі приміщень в суборенду. Характеристики: • Кількість поверхів – 3 • Загальна площа – 3622,5 кв.м. • Площа запропонована до оренди – 32,5 кв.м. • Електропостачання, водопостачання, теплопостачанняцентралізоване; • Земельна ділянка – 0, 603 га (договір оренди)
Адреса місцезнаходження майна:
Україна, Дніпропетровська обл., Жовті Води, бульвар Свободи, 39
Схожі пропозиції
21.11.2025
Довгострокова оренда! Дніпропетровська обл., м. Дніпро, вул. Князя Ярослава Мудрого, 3. Оренда – приміщення 3-го поверху площею 491,6 кв.м. (В)
40 158.80 грн
81.69 грн / м2
Приміщення
Довгострокова оренда! Дніпропетровська обл., м. Дніпро, вул. Князя Ярослава Мудрого, 3. Оренда – приміщення 3-го поверху площею 491,6 кв.м. (В)
Україна, Дніпропетровська обл., Дніпро, 49000, Дніпропетровська обл., м. Дніпро, вул. Князя Ярослава Мудрого, 3
01.12.2022
Дніпропетровська обл., м. Кривий Ріг, вул. Дніпропетровське шосе, 48. Оренда – приміщення 4-го поверху, площею 640,0 кв.м. (В)
15 923.20 грн
24.88 грн / м2
Приміщення
Дніпропетровська обл., м. Кривий Ріг, вул. Дніпропетровське шосе, 48. Оренда – приміщення 4-го поверху, площею 640,0 кв.м. (В)
Україна, Дніпропетровська обл., Кривий Ріг, вулиця Дніпровське шосе, 48
12.08.2022
Дніпропетровська обл., м. Кривий Ріг, вул. Дніпропетровське шосе, 48. Оренда – приміщення 4-го поверху, площею 640,0 кв.м. (В)
7 155.20 грн
11.18 грн / м2
Приміщення
Дніпропетровська обл., м. Кривий Ріг, вул. Дніпропетровське шосе, 48. Оренда – приміщення 4-го поверху, площею 640,0 кв.м. (В)
Україна, Дніпропетровська обл., Кривий Ріг, вул. Дніпропетровське шосе, 48
Дніпропетровська обл., м. Дніпро, бульвар Рубіновий, буд.18. Оренда приміщення 1-го, 2-го, 3-го, 4-го, 5-го поверхів площею 3 801,8 кв.м.(В)
37 637.82 грн
9.90 грн / м2
Приміщення
Дніпропетровська обл., м. Дніпро, бульвар Рубіновий, буд.18. Оренда приміщення 1-го, 2-го, 3-го, 4-го, 5-го поверхів площею 3 801,8 кв.м.(В)
Україна, Дніпропетровська обл., м. Дніпро, бульвар Рубіновий, буд.18
Переглянуті пропозиції
28.09.2023
Львівська область, с. Батьків, вул. Центральна, 28. Оренда – приміщення 1-го поверху площею 21,20 кв.м. (В)
318.00 грн
3.71 грн / м2
Приміщення
Львівська область, с. Батьків, вул. Центральна, 28. Оренда – приміщення 1-го поверху площею 21,20 кв.м. (В)
Україна, Львівська обл., с. Батьків, вул. Центральна, 28
09.09.2025
м. Київ, вул. Дегтярівська, 28А, літ. «А» (Шевченківський р-н). Оренда – приміщення на 1-му поверсі, площею – 35,20 кв.м (В)
4 536.58 грн
128.88 грн / м2
Приміщення
м. Київ, вул. Дегтярівська, 28А, літ. «А» (Шевченківський р-н). Оренда – приміщення на 1-му поверсі, площею – 35,20 кв.м (В)
Україна, м.Київ, Київ, 04119, м. Київ, вул. Дегтярівська, 28А, літ. «А» (Шевченківський р-н